455 Burnside Street, Saugeen Shores, Ontario N0H 2C3

Listed for:
$749,900
3 beds
1 baths
Listed 363 days ago
House for rent: 455 Burnside Street, Saugeen Shores, Ontario N0H 2C3

View all 3 photos

About

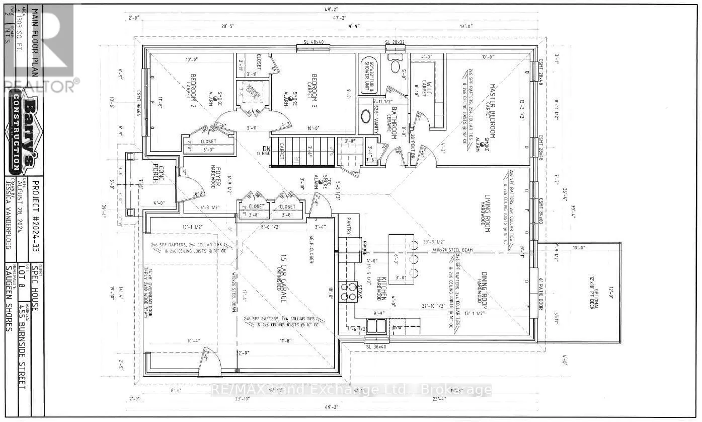
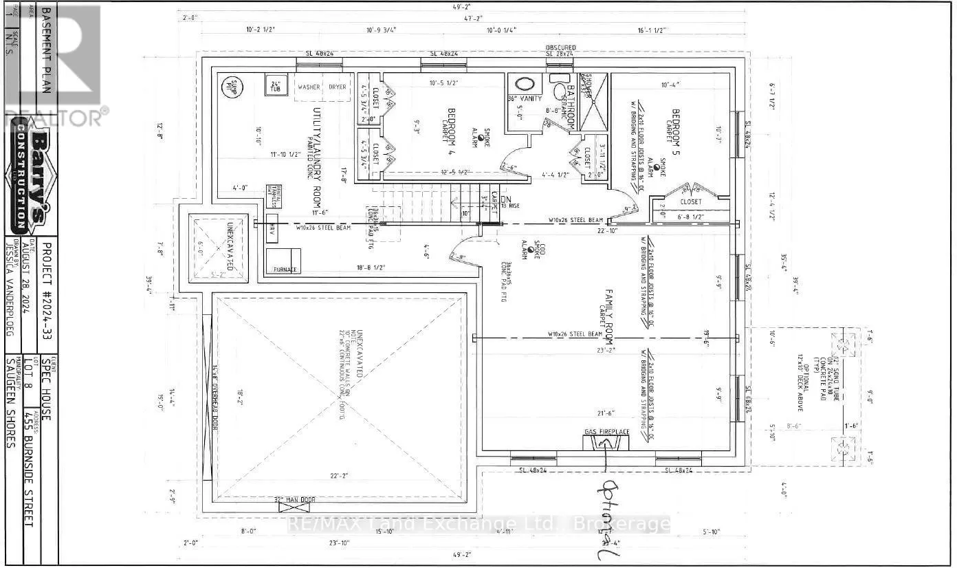
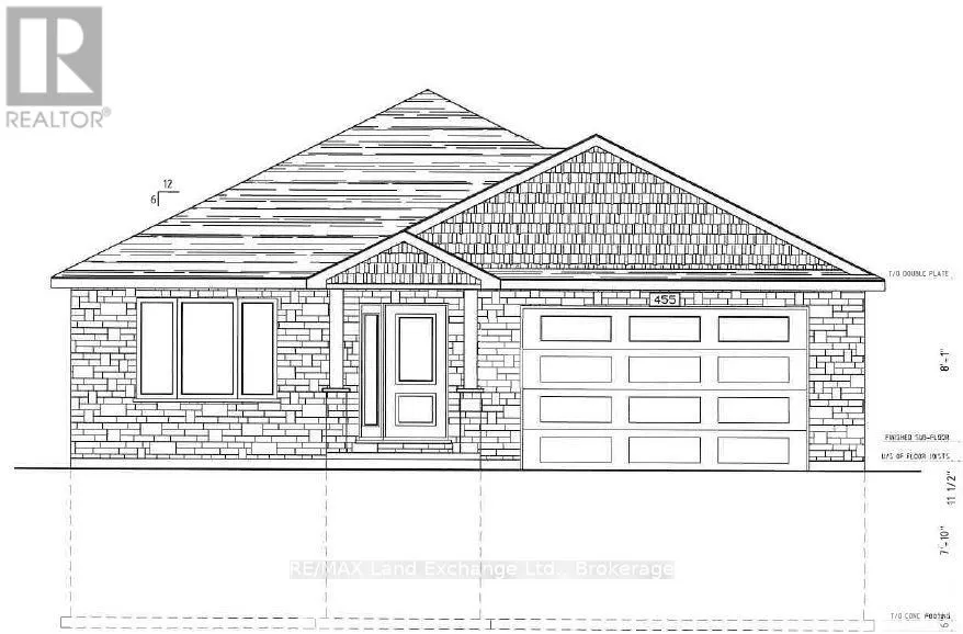
Cross Streets: Ridge Street. ** Directions: Burnside Street North Side Between Ridge & Ivings. Prime location at 455 Burnside Street in Port Elgin. Welcome to your new home; brand new brick bungalow 1303 sqft offering a perfect blend of comfort & convenience. Featuring 3 cozy bedrooms with ample closet space; perfect for family living or guests. Welcoming living room with large windows allowing natural light to flood the space. Functional kitchen with 6ft island and pantry. Full unspoiled basement can be finished for an additional $40000.00 including HST doubling your square footage. Exterior finishes include a double concrete drive and sodded yard. Central air and gas forced air furnace make heating and cooling a breeze. HST is included in the list price provided the Buyer qualifies for the rebate and assigns it to the Builder on closing. Prices subject to change without notice. (id:27476)

Property Highlights

MLS® Number
X12071873
Type
Single Family
Community Name
Saugeen Shores
Ownership Type
Freehold
Land Size
47.5 x 108.1 FT
Parking Space Total
3

Building

Building Type
House
Storeys
1.00
Square Footage
1100 - 1500 sqft
Bathrooms Total
1
Bedrooms Above Ground
3
Bedrooms Total
3
Amenities
Beach
Exterior Finish
Brick
Fireplace Present
No
Basement Type
Full (Unfinished)
Basement Features
Building Heating Type
Forced air
Heating Fuel
Natural gas
Building Cooling Type
Central air conditioning, Air exchanger

Utilities

Water
Municipal water
Utility Sewer
Sanitary sewer

Room Layout

Bedroom 2
Main level
3.05 m x 3.35 m
Bedroom 3
Main level
3.05 m x 2.95 m
Primary Bedroom
Main level
4.05 m x 3.05 m
Living room
Main level
4.88 m x 3.33 m
Dining room
Main level
3.99 m x 2.74 m
Kitchen
Main level
3.02 m x 4.42 m
Foyer
Main level
1.1 m x 2.1 m
Laundry room
Main level
0.91 m x 0.91 m

Location

Learn more about this property
Listing provided by:
RE/MAX Land Exchange Ltd.
MLS® number:
X12071873
Agent:
Debbie Duplantis
*Indicates required field
Name is required
Email is required
Please enter a valid phone number (e.g., 416-111-1111).