378 Frances Street, Saugeen Shores, Ontario N0H 2C3

Listed for:
$1,050,000
4 beds
3 baths
Listed 154 days ago
House for rent: 378 Frances Street, Saugeen Shores, Ontario N0H 2C3

View all 6 photos

Learn more about this property
Listing provided by:
RE/MAX Land Exchange Ltd.
MLS® number:
X12077409
Agent:
Debbie Duplantis
*Indicates required field
Name is required
Email is required
Please enter a valid phone number (e.g., 416-111-1111).

About

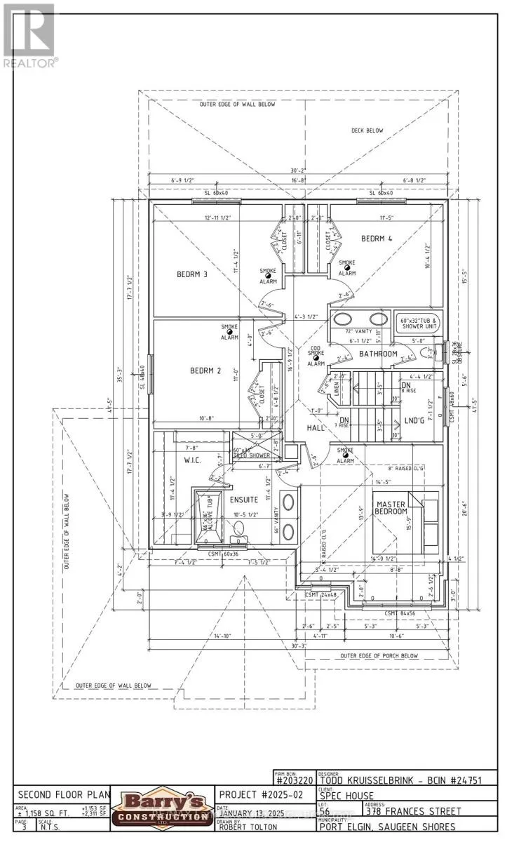
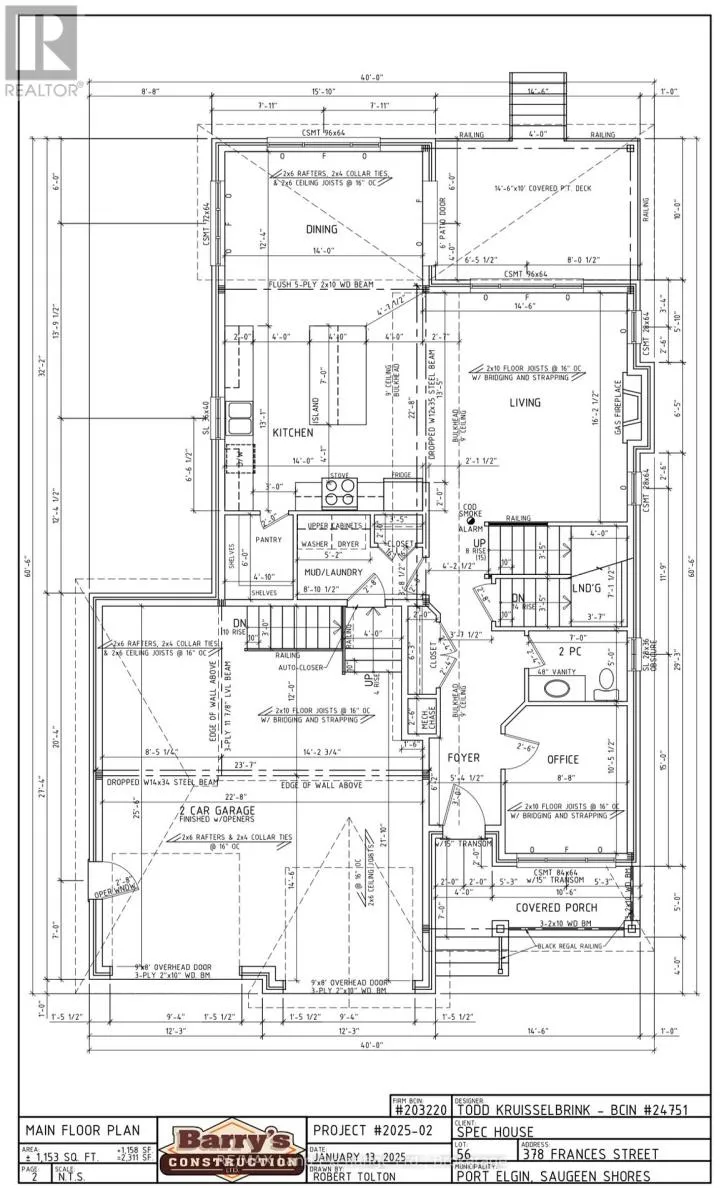
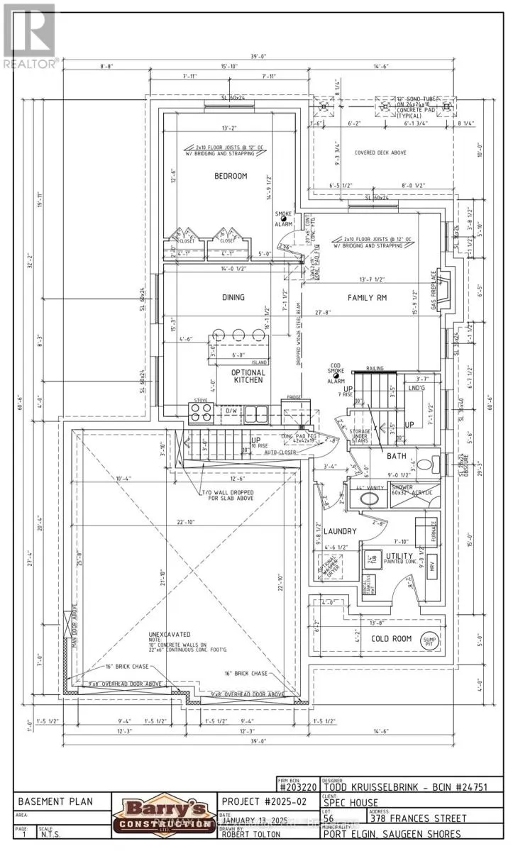
Cross Streets: Frances between Ivings & Ridge. ** Directions: Ivings Drive East to Ridge Street turn left to Frances turn right. This 2311 sqft 4 bedroom is currently under construction at 378 Frances Street in Port Elgin. The main floor features a den right inside the front door for those working from home; a large kitchen with 7ft island and walk in pantry measuring 6 x 4'10, covered 14'6 x 10 deck providing shade from the sunny southern exposure, living room with gas fireplace, powder room and dining area. Upstairs there are 4 spacious bedrooms a 5pc main bath with a separate shower / toilet room, luxury primary with a 5pc ensuite including tiled shower, soaker tub & 2 sinks and a walk-in closet. The basement is unfinished but finishing options are available. For an additional $40,000 it will be finished to include a family room, 1 or 2 bedrooms (your choice) and full bath. Option 2 is a legal separate secondary suite with separate kitchen and entrance for $85,000. HST is included in the list price provided the Buyer qualifies for the rebate and assigns it to the Builder on closing. Prices subject to change without notice. (id:27476)

Property Highlights

MLS® Number
X12077409
Type
Single Family
Community Name
Saugeen Shores
Ownership Type
Freehold
Land Size
49.2 x 122.3 FT
Parking Space Total
6

Building

Building Type
House
Storeys
2.00
Square Footage
2000 - 2500 sqft
Bathrooms Total
3
Bedrooms Above Ground
4
Bedrooms Total
4
Amenities
Fireplace(s) Beach
Exterior Finish
Brick, Vinyl siding
Fireplace Present
Yes
Basement Type
N/A, N/A (Unfinished)
Basement Features
Walk-up
Building Heating Type
Forced air
Heating Fuel
Natural gas
Building Cooling Type
Central air conditioning, Air exchanger

Utilities

Water
Municipal water
Utility Sewer
Sanitary sewer

Room Layout

Primary Bedroom
Second level
4.26 m x 4.26 m
Bedroom 2
Second level
3.35 m x 3.25 m
Bedroom 3
Second level
3.45 m x 3.94 m
Bedroom 4
Second level
3.15 m x 3.48 m
Foyer
Main level
2.13 m x 1.63 m
Kitchen
Main level
3.99 m x 4.27 m
Living room
Main level
4.94 m x 4.41 m
Dining room
Main level
4.27 m x 3.75 m
Laundry room
Main level
2.69 m x 1.75 m
Den
Main level
3.17 m x 2.64 m
Pantry
Main level
1.83 m x 1.47 m

Location