656 Devonshire Road, Saugeen Shores, Ontario N0H 2C3

Listed for:
$899,900
4 beds
3 baths
Listed 160 days ago
House for rent: 656 Devonshire Road, Saugeen Shores, Ontario N0H 2C3

View all 3 photos

Learn more about this property
Listing provided by:
RE/MAX Land Exchange Ltd.
MLS® number:
X12110957
Agent:
Debbie Duplantis
*Indicates required field
Name is required
Email is required
Please enter a valid phone number (e.g., 416-111-1111).

About

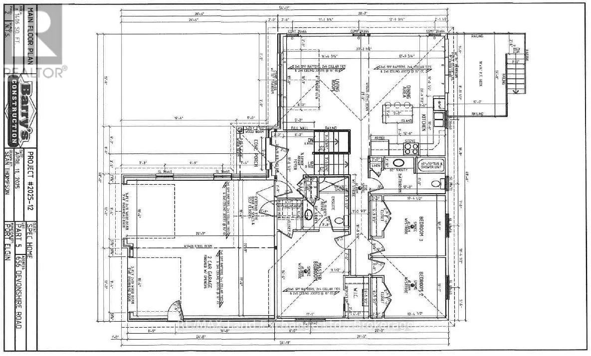
Cross Streets: Wellington & Goderich. ** Directions: Goderich Street (Hwy 21) North turn Right onto Devonshire Road to sign on right. On a lot measuring 56ft x 182 ft, this 1406 sqft, 3 + 2 bedroom, 3 bath home is under construction. The location is 656 Devonshire Road in Port Elgin just a short walk to the rail trail, Food Basics, and the new Saugeen Shores Aquatic Center. The main floor is open concept with 9ft ceilings, vinyl plank and ceramic flooring, walkout to a 10 x 14 deck, Quartz kitchen counter tops and spacious entrance foyer. The basement will be finished and include a family room with gas fireplace, 2 bedrooms, 3pc bath, laundry / utility room with access to the 2 car garage measuring 22'8 x 24'. The yard will be completely sodded and a concrete drive will be in place. HST is included in the list price provided the Buyer qualifies for the rebate and assigns it to the Builder on closing. Prices subject to change without notice. (id:27476)

Property Highlights

MLS® Number
X12110957
Type
Single Family
Community Name
Saugeen Shores
Ownership Type
Freehold
Land Size
56 x 182 FT
Parking Space Total
6

Building

Building Type
House
Storeys
1.00
Square Footage
1100 - 1500 sqft
Bathrooms Total
3
Bedrooms Above Ground
3
Bedrooms Total
4
Amenities
Fireplace(s)
Exterior Finish
Brick, Vinyl siding
Fireplace Present
Yes
Basement Type
N/A (Finished), N/A
Basement Features
Walk-up
Building Heating Type
Forced air
Heating Fuel
Natural gas
Building Cooling Type
Central air conditioning, Air exchanger

Utilities

Water
Municipal water
Utility Sewer
Sanitary sewer

Room Layout

Laundry room
Basement
3.61 m x 2.49 m
Family room
Basement
7.9 m x 4.57 m
Bedroom 4
Basement
3.56 m x 3.58 m
Bedroom 5
Basement
3.53 m x 3.58 m
Foyer
Main level
3.35 m x 1.57 m
Living room
Main level
4.37 m x 7.78 m
Dining room
Main level
3.89 m x 3.05 m
Kitchen
Main level
3.89 m x 3.05 m
Primary Bedroom
Main level
4.42 m x 3.38 m
Bedroom 2
Main level
3.15 m x 3.07 m
Bedroom 3
Main level
3.15 m x 3.07 m

Location

Street Spotlight - For sale