411 Ivings Drive, Saugeen Shores, Ontario N0H 2C1

Listed for:
$669,900
4 beds
3 baths
Listed 182 days ago
Row / Townhouse for rent: 411 Ivings Drive, Saugeen Shores, Ontario N0H 2C1

View all 4 photos

About

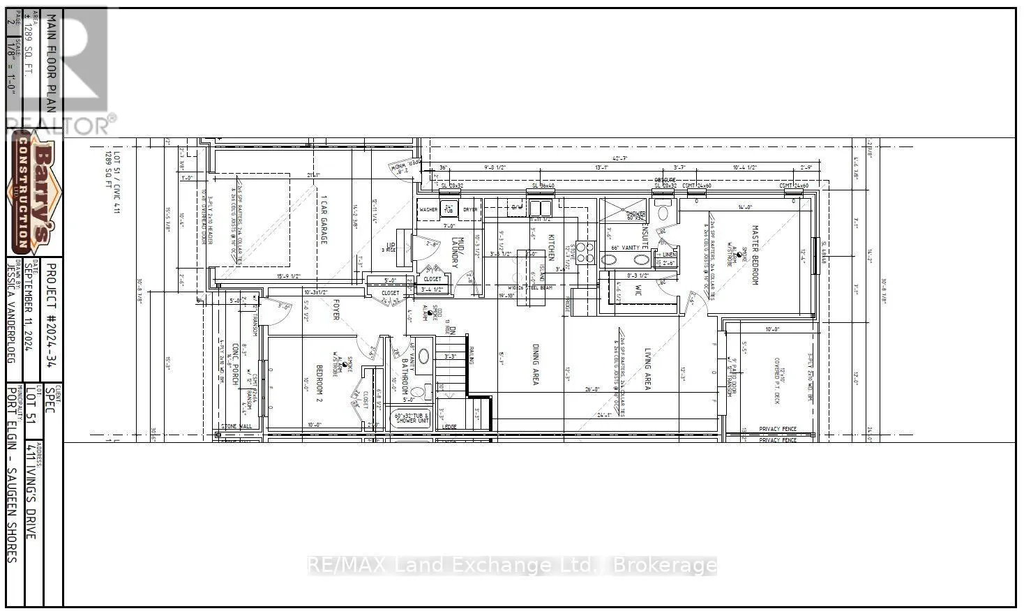
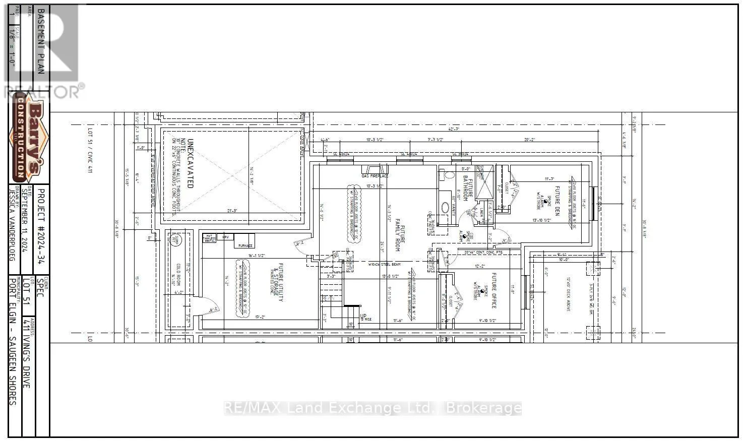
Cross Streets: Ivings Dr & Hwy 21. ** Directions: From Hwy 21 turn west on Ivings Dr. Under construction, this 1289 sqft freehold bungalow townhome at 411 Ivings Dr, Port Elgin is expected to be move-in ready in approximately 90 days. The main floor offers a bright open-concept layout featuring a spacious kitchen, dining area, and living room with walkout to a 12' x 10' covered deck. Includes 2 bedrooms, 2 full bathrooms, and a laundry room with inside entry to garage. The fully finished basement adds 2 more bedrooms, a full bathroom, and a large family room, offering nearly double the living space. Features Include: Quartz kitchen countertops, Hardwood & ceramic flooring throughout main floor, 9' ceilings, Gas fireplace, Hardwood staircase to basement, Sodded yard & concrete driveway. HST is in addition to the asking price. The Builder will co operate with the Buyers to secure the HST rebate provided it is approved by the Government and the Buyer is entitled to it. Prices subject to change without notice (id:27476)

Property Highlights

MLS® Number
X12232570
Type
Single Family
Community Name
Saugeen Shores
Ownership Type
Freehold
Land Size
30.6 x 108 FT
Parking Space Total
2

Building

Building Type
Row / Townhouse
Storeys
1.00
Square Footage
1100 - 1500 sqft
Bathrooms Total
3
Bedrooms Above Ground
2
Bedrooms Total
4
Amenities
Fireplace(s) Schools, Park
Exterior Finish
Stone, Vinyl siding
Fireplace Present
Yes
Basement Type
N/A (Partially finished)
Basement Features
Building Heating Type
Forced air
Heating Fuel
Natural gas
Building Cooling Type
Central air conditioning, Air exchanger

Utilities

Water
Municipal water
Utility Sewer
Sanitary sewer

Room Layout

Utility room
Basement
4.9 m x 4.32 m
Bedroom 3
Basement
3.51 m x 3.53 m
Bedroom 4
Basement
3.56 m x 3.71 m
Family room
Basement
7.39 m x 5.16 m
Foyer
Main level
1.52 m x 3.12 m
Bedroom 2
Main level
3.05 m x 3.05 m
Mud room
Main level
2.13 m x 3.12 m
Dining room
Main level
4.75 m x 3.63 m
Kitchen
Main level
3.63 m x 3.84 m
Living room
Main level
3.73 m x 4.27 m
Primary Bedroom
Main level
3.76 m x 4.27 m

Location

Learn more about this property
Listing provided by:
RE/MAX Land Exchange Ltd.
MLS® number:
X12232570
Agent:
Hayden Duplantis
*Indicates required field
Name is required
Email is required
Please enter a valid phone number (e.g., 416-111-1111).

Street Spotlight - For sale