360 Rosner Drive, Saugeen Shores, Ontario N0H 2C8

Listed for:
$739,900
3 beds
3 baths
Listed 165 days ago
Row / Townhouse for rent: 360 Rosner Drive, Saugeen Shores, Ontario N0H 2C8

View all 7 photos

About

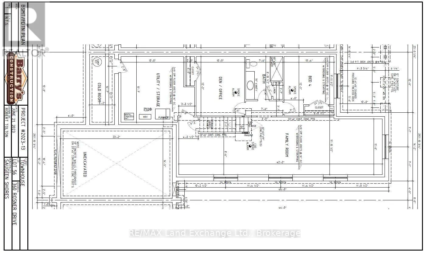
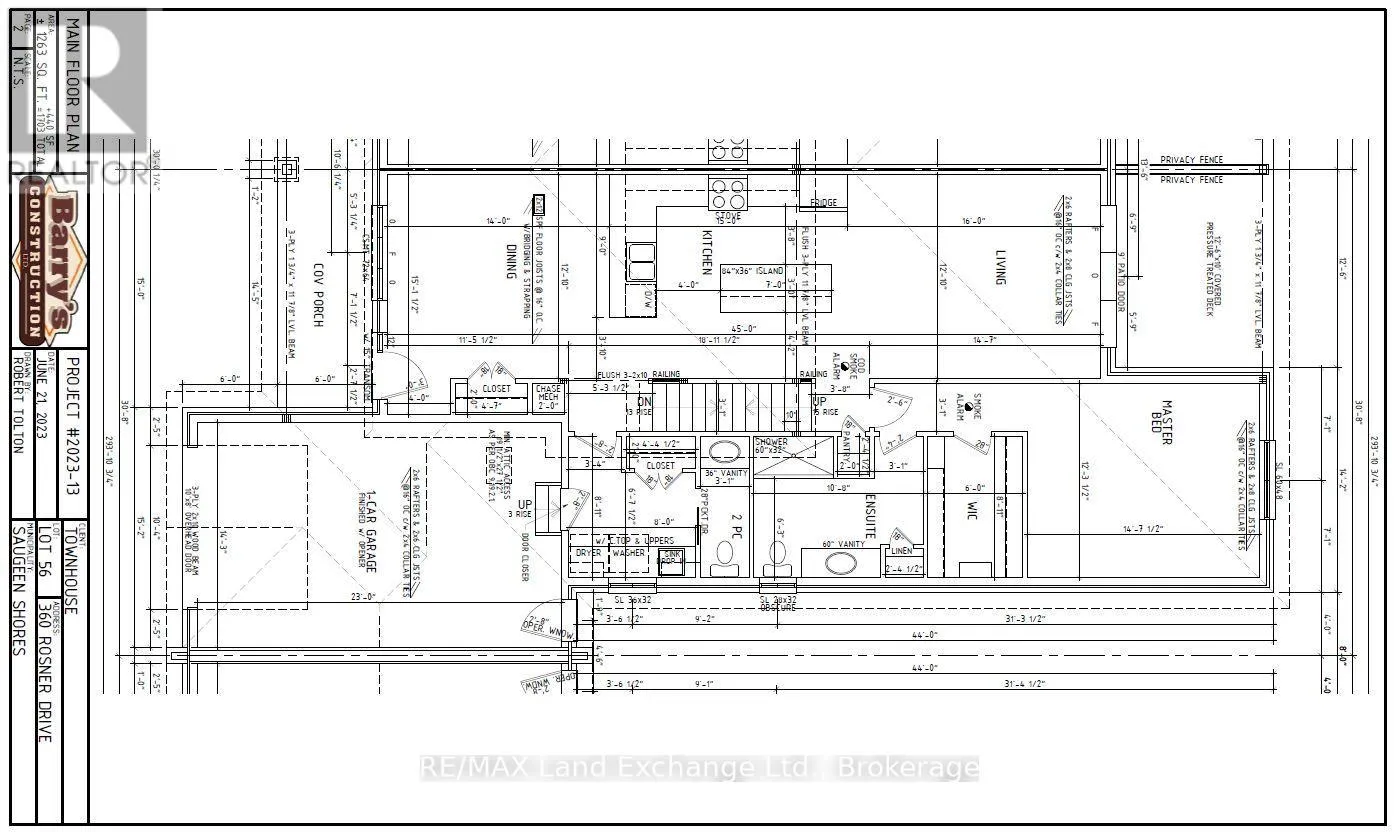
Cross Streets: Rosner Drive south side between Highland and Bruce. ** Directions: Turn West of Bruce St. The exterior is complete for this brand new 2 storey freehold townhome at 360 Rosner Drive in Port Elgin. This model is 1703 sqft with a full unfinished basement that can be finished for an additional $30,000 including HST. The basement would include a family room with gas fireplace, full bath, den and 4th bedroom. The main floor will feature 9ft ceilings, Quartz counters in the kitchen, hardwood and ceramic flooring, 9ft patio doors to a covered back deck measuring 10 x 12'6, primary bedroom with ensuite and laundry. Upstairs there are 2 bedrooms and a 4pc bath. The yard will be entirely sodded and the driveway is concrete. HST is included in the asking price provided the Buyer qualifies for the rebate and assigns it to the Seller on closing. Interior colour selections maybe available for those that act early. Prices subject to change without notice (id:27476)

Property Highlights

MLS® Number
X12286503
Type
Single Family
Community Name
Saugeen Shores
Ownership Type
Freehold
Land Size
30 x 138 FT|under 1/2 acre
Parking Space Total
2

Building

Building Type
Row / Townhouse
Storeys
2.00
Square Footage
1500 - 2000 sqft
Bathrooms Total
3
Bedrooms Above Ground
3
Bedrooms Total
3
Amenities
Schools
Exterior Finish
Stone, Vinyl siding
Fireplace Present
No
Basement Type
Full (Unfinished)
Basement Features
Building Heating Type
Forced air
Heating Fuel
Natural gas
Building Cooling Type
None, Air exchanger

Utilities

Water
Municipal water
Utility Sewer
Sanitary sewer

Room Layout

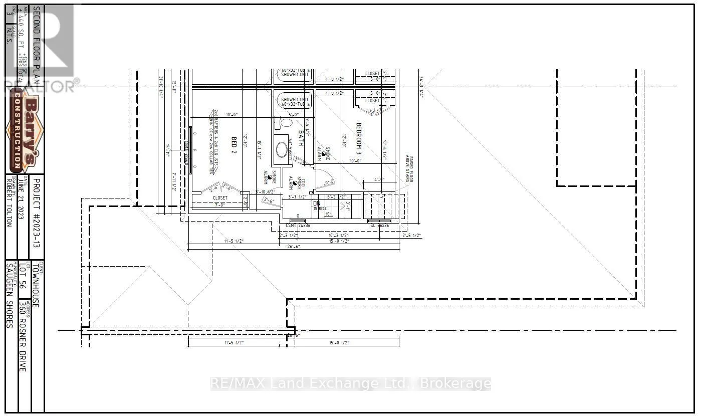
Bedroom 2
Second level
3.2 m x 3.05 m
Bedroom 3
Second level
3.05 m x 3.91 m
Dining room
Main level
4.27 m x 2.87 m
Kitchen
Main level
4.57 m x 2.74 m
Living room
Main level
4.88 m x 3.91 m
Primary Bedroom
Main level
3.73 m x 4.44 m
Laundry room
Main level
2.01 m x 2.44 m

Location

Learn more about this property
Listing provided by:
RE/MAX Land Exchange Ltd.
MLS® number:
X12286503
Agent:
Hayden Duplantis
*Indicates required field
Name is required
Email is required
Please enter a valid phone number (e.g., 416-111-1111).