296 Ridge Street, Saugeen Shores, Ontario N0H 2C3

Listed for:
$969,900
4 beds
3 baths
Listed 82 days ago
House for rent: 296 Ridge Street, Saugeen Shores, Ontario N0H 2C3

View all 3 photos

About

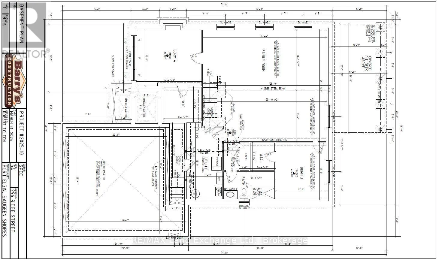
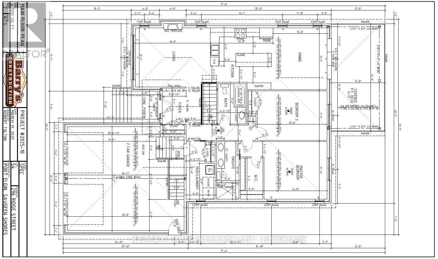
Cross Streets: Ivings Drive. ** Directions: Just south of the corner of Ivings & Ridge. Framing is complete on this brand new 1550sqft home at 296 Ridge Street in Port Elgin; that when finished will feature 4 bedrooms and 3 full baths. The location is central to the beach and shopping. The basement will be fully finished and include a family room, 2 bedrooms, 3pc bath and utility room with walkup to the 2 car garage. Standard features included hardwood and ceramic throughout the main floor, 12ft ceiling in the foyer, 9ft ceilings thoughout the remainder of the main floor, hardwood staircase to the basement, Quartz counters in the kitchen, tiled shower in the ensuite bath,walkout to a partially covered deck, gas forced air heating with central air, gas fireplace in the living room, concrete drive, sodded yard and more. HST is included in the list price provided the Buyer qualifies for the rebate and assigns it to the Builder on closing. Prices subject to change without notice, colour selections maybe available for those that act early. (id:27476)

Property Highlights

MLS® Number
X12337497
Type
Single Family
Community Name
Saugeen Shores
Ownership Type
Freehold
Land Size
55.3 x 119 FT
Parking Space Total
4

Building

Building Type
House
Storeys
1.00
Square Footage
1500 - 2000 sqft
Bathrooms Total
3
Bedrooms Above Ground
2
Bedrooms Total
4
Amenities
Fireplace(s) Beach, Schools
Exterior Finish
Stone
Fireplace Present
Yes
Basement Type
N/A (Finished), N/A
Basement Features
Walk-up
Building Heating Type
Forced air
Heating Fuel
Natural gas
Building Cooling Type
Central air conditioning, Air exchanger

Utilities

Water
Municipal water
Utility Sewer
Sanitary sewer

Room Layout

Bedroom 4
Basement
3.37 m x 3.78 m
Utility room
Basement
4.8 m x 2.41 m
Family room
Basement
7.26 m x 7.34 m
Bedroom 3
Basement
4.31 m x 3.75 m
Foyer
Main level
2.61 m x 2.46 m
Living room
Main level
4.44 m x 4.01 m
Kitchen
Main level
3.7 m x 4.19 m
Dining room
Main level
2.99 m x 3.68 m
Eating area
Main level
4.19 m x 1.8 m
Bedroom 2
Main level
4.72 m x 3.35 m
Primary Bedroom
Main level
4.26 m x 3.91 m
Laundry room
Main level
3.91 m x 1.98 m

Location

Learn more about this property
Listing provided by:
RE/MAX Land Exchange Ltd.
MLS® number:
X12337497
Agent:
Debbie Duplantis
*Indicates required field
Name is required
Email is required
Please enter a valid phone number (e.g., 416-111-1111).

Street Spotlight - For sale