Part 1 Plan 3r-10841 Turner Street, Saugeen Shores, Ontario N0H 2L0

Listed for:
$289,900
0 beds
0 baths
Listed 52 days ago
Part 1 Plan 3r-10841 Turner Street, Saugeen Shores, Ontario N0H 2L0

View all 6 photos

Learn more about this property
Listing provided by:
Wilfred McIntee & Co Limited
MLS® number:
X12547474
Agent:
Dan Graham
*Indicates required field
Name is required
Email is required
Please enter a valid phone number (e.g., 416-111-1111).

About

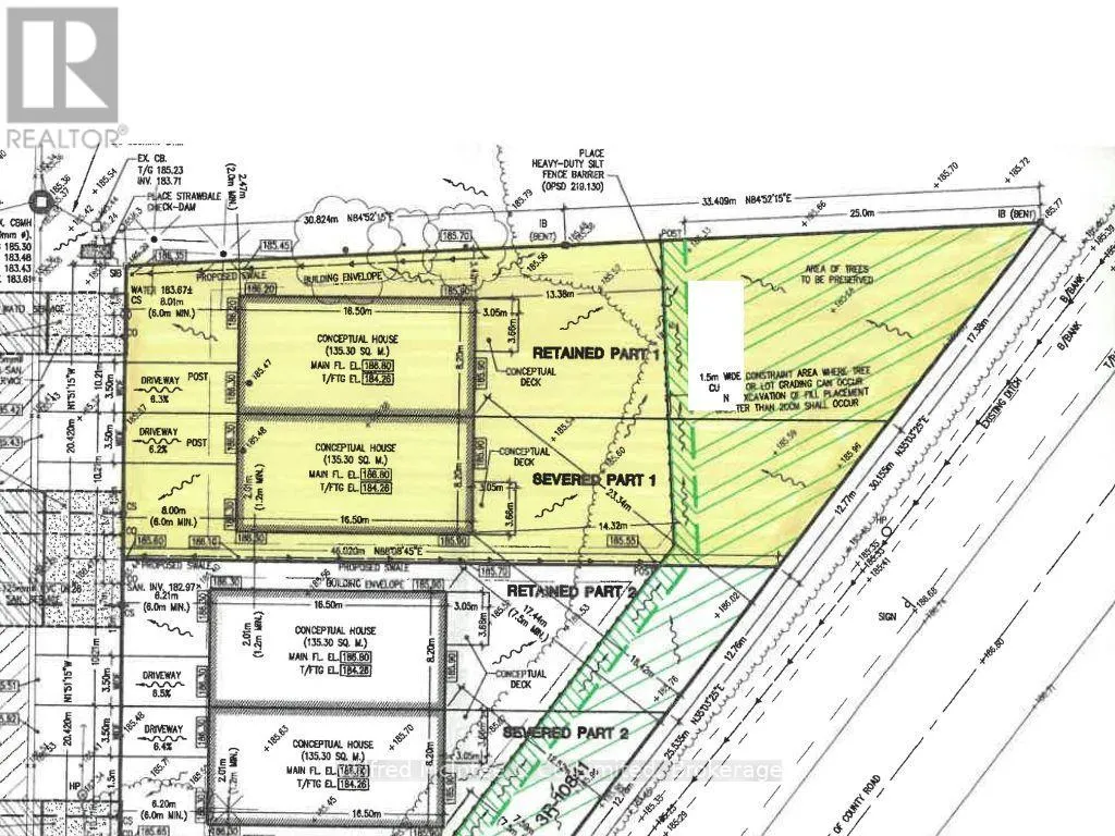
Cross Streets: Bruce Road 13 & Turner Street. ** Directions: From Highway 21 go North on Bruce Road 13 then left onto Turner Street, property on right side. One of two unique building opportunities in Southampton's desirable north end. This fully serviced vacant lot is primed for a pair of semi-detached homes, just a short stroll from Lake Huron access. Only minutes from the grocery store, golf course, boat launch, the scenic Saugeen River, and Southampton's main beach, and charming downtown core not far away. The 67 ft frontage along Turner Street offers depths of 210 ft (north boundary) and 150 ft (south boundary). The proposed building envelope supports two efficient semi-detached residences with an overall footprint of 1456sqft each, while a thoughtful tree retention plan along the rear preserves mature greenery for privacy and natural appeal. Water, sewer, natural gas, and hydro are at the roadside with development fees already paid-streamlining the process for your build. Ideal for builders, investors, or families: build then live in one and rent/sell the other, build and sell both, or create a multi-generational retreat. The adjacent lot to the South is also for sale and ready for another pair of semi's. HST is in addition to the price. (id:27476)

Property Highlights

MLS® Number
X12547474
Type
Vacant Land
Community Name
Saugeen Shores
Land Size
67 x 151 FT ; Lot depth is shorter South lot line|under 1/2 acre

Building

Amenities
Hospital, Schools
Fireplace Present
No
Basement Type
Basement Features
Building Heating Type
Heating Fuel
Building Cooling Type

Utilities

Water
Municipal water
Utility Sewer
Sanitary sewer

Location