243 Stickel Street, Saugeen Shores, Ontario N0H 2C1

Listed for:
$649,900
5 beds
3 baths
Listed 10 days ago
Row / Townhouse for rent: 243 Stickel Street, Saugeen Shores, Ontario N0H 2C1

View all 31 photos

About

Cross Streets: Stickel St/Ivings Dr. ** Directions: Goderich St to Ivings Dr to Stickel St. Welcome home to 243 Stickel Street. This thoughtfully designed 3+2 bedroom freehold townhouse with an attached garage offers comfortable, low maintenance living for retirees looking to simplify life or first-time buyers ready to put down roots. The bright main level features hardwood floors, fantastic natural light and a functional kitchen that flows seamlessly into the living space. A convenient walkout patio door provides easy access to the backyard, ideal for relaxing or entertaining. The fully finished basement adds excellent versatility with two additional bedrooms and flexible living space great for guests, hobbies or a home office. With two full bathrooms and a convenient powder room, the layout supports both everyday comfort and long term growth. Outside enjoy a fully fenced yard, concrete driveway, and stone patio all designed for easy upkeep. Ideally located close to the beach, shops, schools, parks and downtown Port Elgin, this home offers a relaxed lifestyle with everything you need nearby. Whether you're entering the market for the first time or downsizing without compromise, this home is a wonderful place to start your next chapter (id:27476)

Property Highlights

MLS® Number
X12761924
Type
Single Family
Community Name
Saugeen Shores
Ownership Type
Freehold
Land Size
47.5 x 111.1 FT
Parking Space Total
6

Building

Building Type
Row / Townhouse
Storeys
1.00
Square Footage
1100 - 1500 sqft
Bathrooms Total
3
Bedrooms Above Ground
3
Bedrooms Total
5
Amenities
Fireplace(s) Beach, Marina, Schools
Exterior Finish
Brick, Vinyl siding
Fireplace Present
Yes
Basement Type
Full (Finished)
Basement Features
Building Heating Type
Forced air
Heating Fuel
Natural gas
Building Cooling Type
Central air conditioning, Air exchanger, Ventilation system

Utilities

Water
Municipal water
Utility Sewer
Sanitary sewer

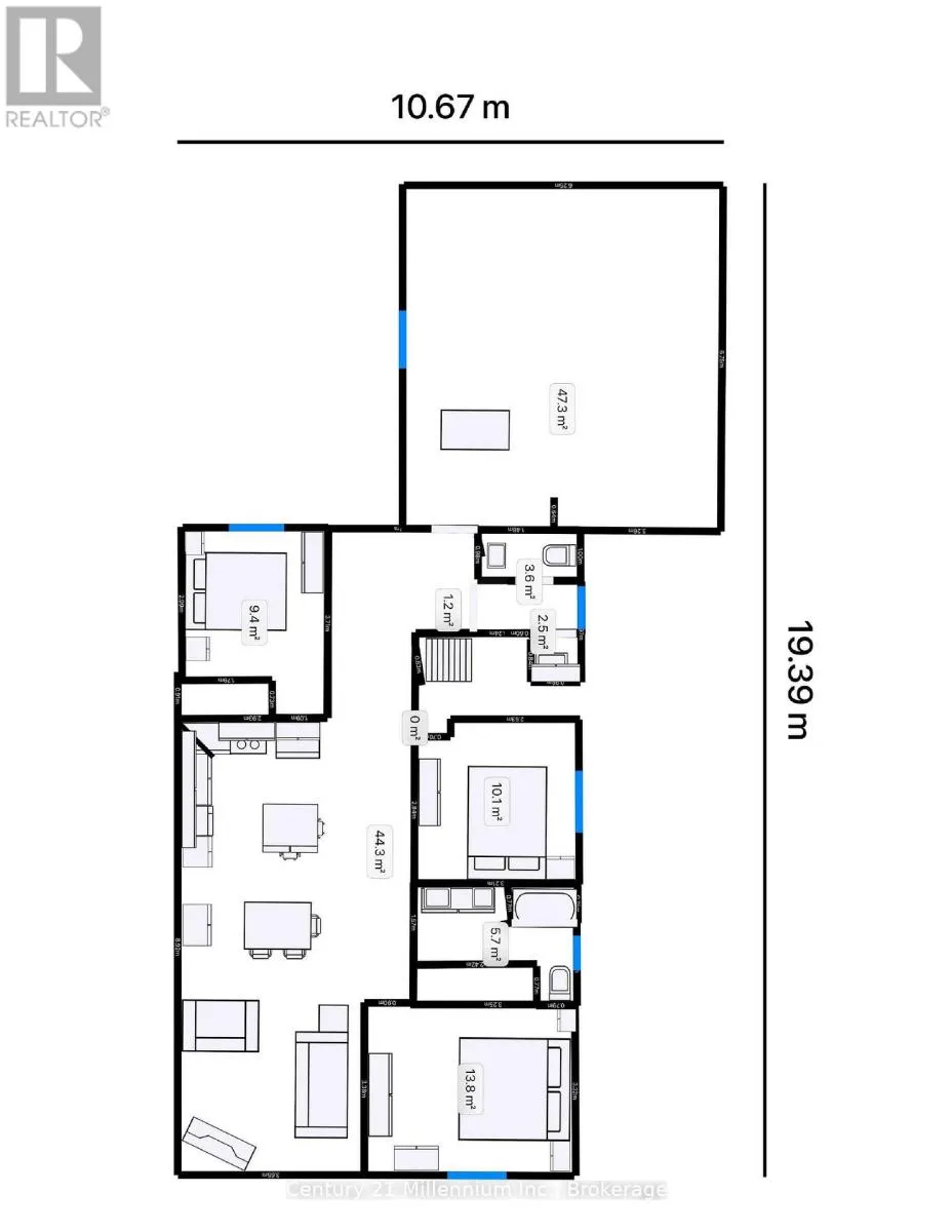
Room Layout

Kitchen
Main level
3.04 m x 3.96 m
Dining room
Main level
2.59 m x 3.96 m
Living room
Main level
3.7 m x 3.6 m
Primary Bedroom
Main level
3.32 m x 4.26 m
Bedroom 2
Main level
3.17 m x 3.27 m
Bedroom 3
Main level
2.92 m x 3.2 m

Location

Learn more about this property
Listing provided by:
Century 21 Millennium Inc.
MLS® number:
X12761924
Agent:
Andrew Kennedy
*Indicates required field
Name is required
Email is required
Please enter a valid phone number (e.g., 416-111-1111).