72 Ottawa Avenue, Saugeen Shores, Ontario N0H 2L0

Listed for:
$998,900
4 beds
3 baths
Listed 31 days ago
House for rent: 72 Ottawa Avenue, Saugeen Shores, Ontario N0H 2L0

View all 44 photos

About

Cross Streets: Bruce Rd 13 and Ottawa Ave. ** Directions: From Highway #21, west on Bruce Rd 13, right on Ottawa Ave, property on the left side. This craftsman-style farmhouse is move-in ready and loaded with upgrades throughout. Built in 2018, the home offers thoughtful design with a self-contained 1-bedroom apartment. It's a perfect layout for a family, an income property or multigenerational living. The spacious house measures 1893 square feet above grade, and the basement is 1391 sq ft. The 50' x 150' property offers both serenity and convenience, just a short walk to the shores of Lake Huron and backs onto a strip of land zoned EP (environmental protection). The ground level has an impressive foyer and mudroom with entry to the garage. The main floor has a fabulous kitchen with a large pantry and an island perfect for casual dining. The open-concept dining and living room features a vaulted ceiling, providing ample space for families who love to host and entertain. Beautiful white oak hardwood floors are throughout the main house. The large patio door leads to a covered deck for seasonal relaxation. There are two large bedrooms on the main floor, a 4-piece bathroom featuring a tiled tub. The primary suite is located on the second level for a luxurious retreat, featuring a vaulted ceiling, a walk-in closet and a 5-piece spa-like bathroom. The basement is divided into two sections: a separate one-bedroom apartment with kitchen/living room, in-suite laundry, and a private entrance from the garage; and the second section is designated for the main house, which has a laundry/utility room and gym/family room. The apartment has separate heating/cooling controls and ductwork. This beautiful home is located in a peaceful, well-established neighbourhood with all the amenities of town just minutes away. Explore the 3D tour and book an appointment to appreciate it in person. (id:27476)

Property Highlights

MLS® Number
X12836282
Type
Single Family
Community Name
Saugeen Shores
Ownership Type
Freehold
Land Size
50 x 150 FT
Parking Space Total
6

Building

Building Type
House
Square Footage
1500 - 2000 sqft
Bathrooms Total
3
Bedrooms Above Ground
3
Bedrooms Total
4
Amenities
Fireplace(s) Beach, Golf Nearby, Hospital
Exterior Finish
Wood, Vinyl siding
Fireplace Present
Yes
Basement Type
N/A, N/A, Full, N/A (Finished)
Basement Features
Apartment in basement, Separate entrance
Building Heating Type
Forced air
Heating Fuel
Natural gas
Building Cooling Type
Central air conditioning, Air exchanger

Utilities

Water
Municipal water
Utility Sewer
Sanitary sewer

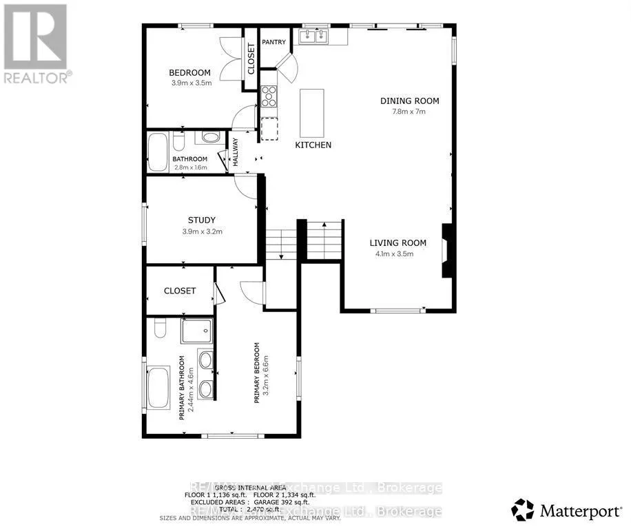
Room Layout

Primary Bedroom
Second level
3.2 m x 6.6 m
Laundry room
Basement
1.8 m x 3.2 m
Family room
Basement
3.6 m x 4.2 m
Kitchen
Basement
4.37 m x 4.68 m
Bedroom 4
Basement
4.7 m x 3.58 m
Utility room
Basement
3.5 m x 3.2 m
Kitchen
Main level
7.8 m x 7 m
Living room
Main level
4.1 m x 3.5 m
Bedroom 2
Main level
3.9 m x 3.2 m
Bedroom 3
Main level
3.9 m x 3.5 m
Mud room
Ground level
2.7 m x 2.4 m
Foyer
Ground level
3.3 m x 1.6 m

Location

Learn more about this property
Listing provided by:
RE/MAX Land Exchange Ltd.
MLS® number:
X12836282
Agent:
Susan Terry
*Indicates required field
Name is required
Email is required
Please enter a valid phone number (e.g., 416-111-1111).

Community Spotlight: Homes For sale in Your Neighborhood