131 Downes Road, Seguin, Ontario P2A 2W8

Listed for:
$949,000
3 beds
2 baths
Listed 3 days ago
House for rent: 131 Downes Road, Seguin, Ontario P2A 2W8

View all 47 photos

About

Cross Streets: 400, 141, Horseshoe Lake Rd, Lioness Rd, Downes Rd. ** Directions: Hwy 400 to Hwy 141, left to Horseshoe Lake Rd, right to Lioness Lake Rd to Downes Road to 131. DESIRABLE HORSESHOE LAKE! 4 SEASON WATERFRONT COTTAGE RETREAT! Nestled on 1.68 Acres of Privacy, Great swimming, boating (for miles), fishing, paddle boarding, kayaking, Conveniently located Just 10 mins south of Parry Sound, This Updated 3-bedroom, 2-bath cottage is being offered Turnkey! Desirable bright open plan, Wall of windows & walkouts to fabulous wrap around deck; made for relaxing & entertaining, Light & bright drywalled interior, Updated kitchen & baths, Warm hardwood flooring, Walk out lower level is unfinished & ideal for future living space, Access door for great storage, snowmobiles or atv's, Family & guests will delight in the LAKESIDE BUNKIE featuring sauna, shower & composting toilet, Excellent area for hiking, biking, ATVing, snowmobiling, Short drive to Horseshoe Pines Marina, Restaurants, Amenities in Humphrey Village, Community centre, Library. Note: Cottage is 4-season; End section of Downes Rd is seasonal but has been privately maintained year-round in the past, Modest $200 annual road fee, Mins to hwy 400 for easy access to the GTA, Cottage Life Awaits! (id:27476)

Property Highlights

MLS® Number
X12861672
Type
Single Family
Community Name
Seguin
Ownership Type
Freehold
Land Size
122 x 300 FT|1/2 - 1.99 acres
Parking Space Total
6

Building

Building Type
House
Storeys
1.00
Square Footage
1100 - 1500 sqft
Bathrooms Total
2
Bedrooms Above Ground
3
Bedrooms Total
3
Amenities
Golf Nearby, Hospital
Exterior Finish
Wood
Fireplace Present
Yes
Basement Type
N/A, N/A (Unfinished)
Basement Features
Walk out
Building Heating Type
Baseboard heaters
Heating Fuel
Electric
Building Cooling Type
None

Utilities

Water
Lake/River Water Intake
Utility Sewer
Septic System

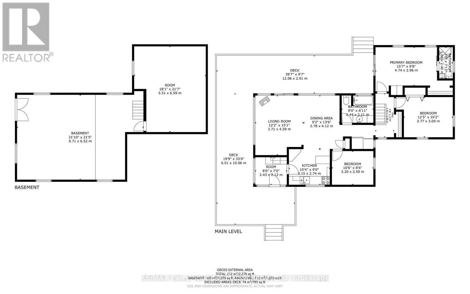
Room Layout

Utility room
Lower level
9.71 m x 6.52 m
Other
Lower level
6.59 m x 5.51 m
Living room
Main level
4.59 m x 3.71 m
Dining room
Main level
4.12 m x 2.78 m
Kitchen
Main level
3.15 m x 2.74 m
Primary Bedroom
Main level
5.75 m x 3.6 m
Bathroom
Main level
2.4 m x 1.06 m
Bedroom
Main level
4.35 m x 3.25 m
Bedroom
Main level
3.05 m x 2.65 m
Bathroom
Main level
2.44 m x 2.11 m
Laundry room
Main level
2.5 m x 1.2 m
Foyer
Main level
3.36 m x 1.43 m

Location

Learn more about this property
Listing provided by:
RE/MAX Parry Sound Muskoka Realty Ltd
MLS® number:
X12861672
Agent:
Holly Cascanette
*Indicates required field
Name is required
Email is required
Please enter a valid phone number (e.g., 416-111-1111).

Community Spotlight: Homes For sale in Your Neighborhood