32a Sterner Drive, Seguin, Ontario P2A 0B2

Listed for:
$1,239,000
4 beds
2 baths
Listed 8 days ago
House for rent: 32a Sterner Drive, Seguin, Ontario P2A 0B2

View all 47 photos

About

Cross Streets: Otter Lake Rd & James Bay Junction S. ** Directions: Otter Lake Rd to Sterner to 34A. DESIRABLE OTTER LAKE! HOME or COTTAGE! 305 ft WATERFRONT! CUSTOM BUILT LAKE HOUSE only 15 Years New! 3 + 1 bedrooms, 2 baths, Open concept plan with captivating vaulted ceilings, Hardwood floors, Walk out to private sundeck with glass rails, Ironstone Slate Metal roofing system 2023, High efficiency propane gas furnace, Convenient main floor bedroom & bath, Upper level boasts 2 bedrooms (1 offers walkout to a deck), Semi ensuite bath, Bright walkout lower level is ideal for guests and families, Featuring guest room/den, Rec room with walkout to lakeside, Rough in for 3rd bath, PRIVATE LOCATION on 1.31 Acres, Year round road access, Preferred lake system; Little Otter offers direct access to Big Otter, Full service marina, Resort Tappattoo, Miles of boating & fishing enjoyment, Great swimming right off the dock, Excellent docking system for your boats & relaxing lakeside. Don't miss this 4 season Lake House/Retreat! (id:27476)

Property Highlights

MLS® Number
X12914546
Type
Single Family
Community Name
Seguin
Ownership Type
Freehold
Land Size
305 x 1082 FT|1/2 - 1.99 acres
Parking Space Total
4

Building

Building Type
House
Storeys
2.00
Square Footage
1100 - 1500 sqft
Bathrooms Total
2
Bedrooms Above Ground
3
Bedrooms Total
4
Amenities
Beach, Golf Nearby, Hospital, Park
Exterior Finish
Wood
Fireplace Present
Yes
Basement Type
N/A (Finished)
Basement Features
Walk out
Building Heating Type
Forced air
Heating Fuel
Propane
Building Cooling Type
None

Utilities

Water
Drilled Well
Utility Sewer
Septic System

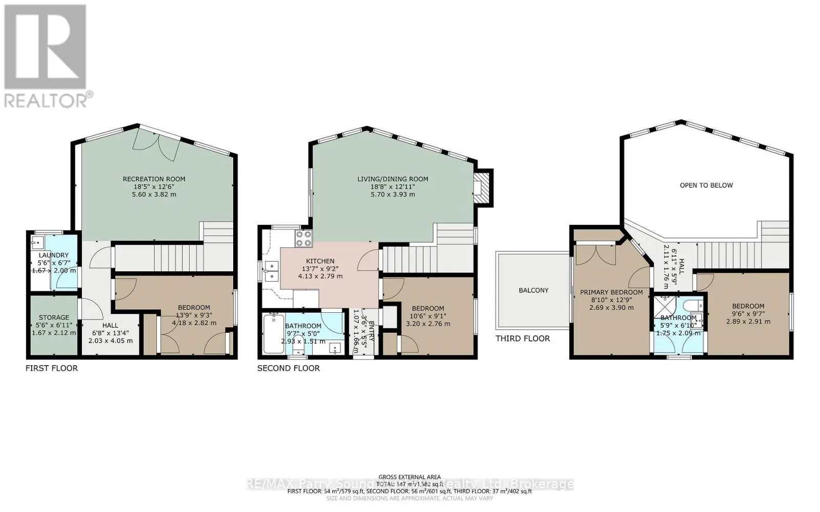
Room Layout

Primary Bedroom
Second level
3.9 m x 2.69 m
Bathroom
Second level
2.09 m x 1.75 m
Bedroom
Second level
2.91 m x 2.89 m
Laundry room
Lower level
2 m x 1.67 m
Utility room
Lower level
2.12 m x 1.67 m
Recreational, Games room
Lower level
5.6 m x 3.82 m
Bedroom
Lower level
4.18 m x 2.8 m
Living room
Main level
5.7 m x 3.93 m
Kitchen
Main level
4.13 m x 2.79 m
Bedroom
Main level
3.2 m x 2.76 m
Bathroom
Main level
2.93 m x 1.91 m
Foyer
Main level
1.66 m x 1.07 m

Location

Learn more about this property
Listing provided by:
RE/MAX Parry Sound Muskoka Realty Ltd
MLS® number:
X12914546
Agent:
Holly Cascanette
*Indicates required field
Name is required
Email is required
Please enter a valid phone number (e.g., 416-111-1111).

Community Spotlight: Homes For sale in Your Neighborhood