2488 Irish Line, Severn, Ontario L0K 1E0

Listed for:
$1,060,000
3 beds
2 baths
Listed 149 days ago
House for rent: 2488 Irish Line, Severn, Ontario L0K 1E0

View all 38 photos

About

Cross Streets: Upper Big Chute and Irish Line. ** Directions: from Coldwater North East on Upper Big Chute Rd, Left on Irish Line to sign on Left. Welcome to 2488 Irish Line, Severn with just over 185 acres of natural beauty with endless potential! Approximately 10 acres are cleared in the front of the property and 2 more acres cleared at the back by the pond. This property is ideal for a hobby farm, while the expansive back acreage with trails makes this property a dream for hunters, ATV'g, or simply enjoying the outdoors. The property includes a 3-bedroom, 2-bathroom home ready for your TLC or the perfect spot to build your dream residence. A 200 ft drilled well, septic system, and detached oversized garage measuring approximately 22X24 with electricity are already in place. Enjoy abundant wildlife, a quiet school bus route, and proximity to McClean Lake, with connections to the Severn River and Big Chute. Conveniently located just 30 minutes to Orillia or Midland, and only 1.5 hours to Toronto, this rare offering provides privacy, recreation, and endless opportunity in sought-after Severn. (id:27476)

Property Highlights

MLS® Number
S12396271
Type
Single Family
Community Name
Coldwater
Ownership Type
Freehold
Land Size
1993 x 4386.4 FT|100+ acres
Parking Space Total
9

Building

Building Type
House
Storeys
1.50
Square Footage
700 - 1100 sqft
Bathrooms Total
2
Bedrooms Above Ground
3
Bedrooms Total
3
Fireplace Present
No
Basement Type
Crawl space
Basement Features
Building Heating Type
Heat Pump, Not known
Heating Fuel
Electric, Natural gas
Building Cooling Type
Central air conditioning

Utilities

Water
Drilled Well
Utility Sewer
Septic System

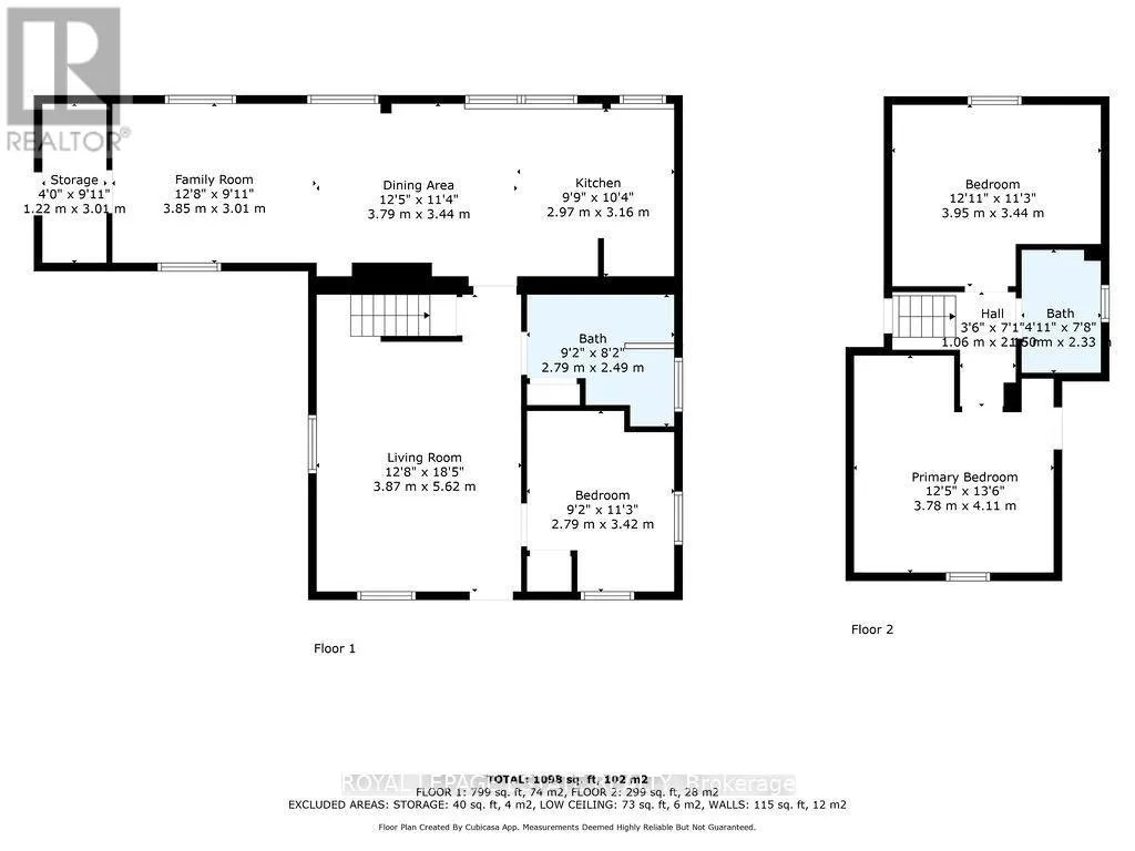
Room Layout

Bedroom
Second level
3.78 m x 4.11 m
Bedroom 3
Second level
3.95 m x 3.44 m
Bathroom
Second level
5 m x 2.33 m
Living room
Main level
3.87 m x 5.62 m
Kitchen
Main level
2.97 m x 3.16 m
Dining room
Main level
3.79 m x 3.44 m
Family room
Main level
3.85 m x 3.01 m
Bedroom 2
Main level
2.79 m x 3.42 m
Bathroom
Main level
2.79 m x 2.49 m

Location

Learn more about this property
Listing provided by:
ROYAL LEPAGE ESTATE REALTY
MLS® number:
S12396271
Agent:
Corinna Taylor
*Indicates required field
Name is required
Email is required
Please enter a valid phone number (e.g., 416-111-1111).