2060 Avery Lane, Severn, Ontario L3V 6H2

Listed for:
$749,900
3 beds
2 baths
Listed 20 days ago
House for rent: 2060 Avery Lane, Severn, Ontario L3V 6H2

View all 24 photos

About

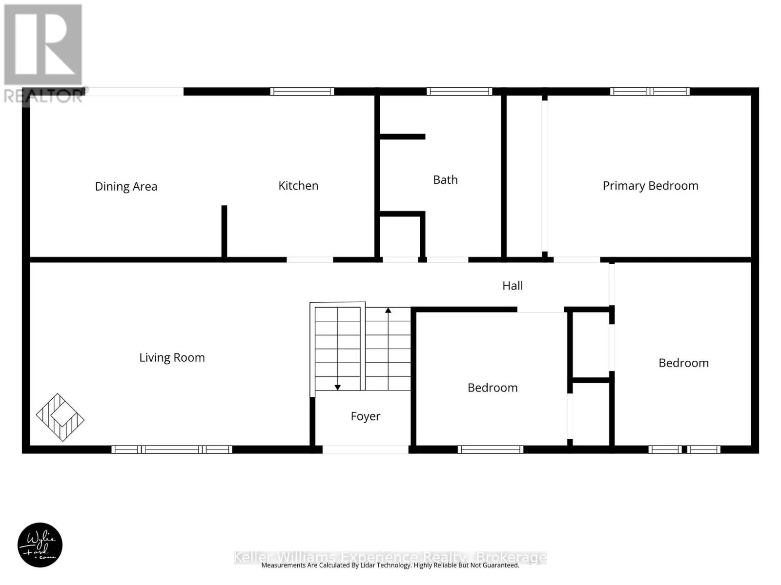
Cross Streets: Hwy 12 & Townline. ** Directions: From Orillia: Hwy 12 past Prices Corners, turn right onto Town Line, Right onto Avery Lane, house is on the Left. Welcome to sought-after Marchmont in Severn - a true 5-star location offering the perfect balance of peaceful living just 5 minutes from the City of Orillia, Rotary Place, Lakehead University, West Ridge amenities, and beautiful Bass Lake. With over 1,700 sq ft of finished living space, this tastefully updated 3-bedroom home (with potential for a 4th) offers 2 full updated bathrooms and incredible flexibility for growing families, retirees, or multi-generational living. The bright eat-in kitchen with warm wood cabinetry overlooks the fully fenced backyard and walks out to a large covered deck - ideal for entertaining or relaxing in every season. A separate garage entrance provides excellent in-law capability and convenient ground-level access. The finished lower level features a cozy fireplace - perfect for winter evenings - and offers space to easily create a 4th bedroom or additional living area. The oversized covered deck presents future potential for a Muskoka room conversion. Enjoy the practicality of a mudroom off the inside entry from the garage, offering ample space for busy households. Mature trees surround the property, creating privacy and shade on this established lot. Directly across the road, you'll find a newly finished basketball/pickleball court and park - perfect for families and anyone looking to stay active. Comfortable, versatile, and full of potential - this is the one you've been waiting for. Come see it for yourself! *No interior photos due to privacy - the home shows well!* (id:27476)

Property Highlights

MLS® Number
S12806774
Type
Single Family
Community Name
Marchmont
Ownership Type
Freehold
Land Size
100 x 150 FT
Parking Space Total
5

Building

Building Type
House
Storeys
1.00
Square Footage
700 - 1100 sqft
Bathrooms Total
2
Bedrooms Above Ground
3
Bedrooms Total
3
Amenities
Schools, Ski area
Exterior Finish
Stucco, Stone
Fireplace Present
Yes
Basement Type
N/A (Finished), Full, N/A
Basement Features
Separate entrance
Building Heating Type
Forced air
Heating Fuel
Natural gas
Building Cooling Type
None

Utilities

Water
Drilled Well
Utility Sewer
Septic System

Location

Learn more about this property
Listing provided by:
Keller Williams Experience Realty
MLS® number:
S12806774
Agent:
Sarah J. Stevens
*Indicates required field
Name is required
Email is required
Please enter a valid phone number (e.g., 416-111-1111).

Community Spotlight: Homes For sale in Your Neighborhood