316 Queensway W, Simcoe, Ontario N3Y 2N1

Listed for:
$1,275,000
0 beds
0 baths
Listed 16 days ago
316 Queensway W, Simcoe, Ontario N3Y 2N1

View all 50 photos

Learn more about this property
Listing provided by:
ROYAL LEPAGE TRIUS REALTY BROKERAGE
MLS® number:
40755346
Agent:
Bill Culver
*Indicates required field
Name is required
Email is required
Please enter a valid phone number (e.g., 416-111-1111).

About

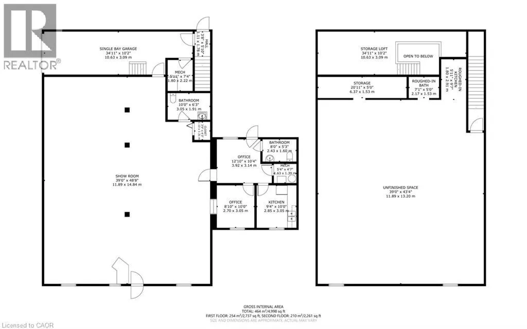
WEST OF QUEEN ST QUEENSWAY W Prime business location situated on a high traffic street ready for its new owner. Property sits on .8 acres and has a frontage of 97feet. This stand alone quality built building totals 5200 sq ft of space offering a variety of professional needs. Featuring two HVAC systems, wheelchair accessibility, generator, and a large paved parking lot. Having its own separate entrance, the upstairs has fire separation from the main floor along with rough in plumbing for a kitchen and bath. A security system completes this property. Zoning allows for numerous uses for flexible business operations. The property is also available for lease (mls#40763980). (id:27476)

Property Highlights

MLS® Number
40755346
Type
Other
Ownership Type
Freehold
Land Size
1/2 - 1.99 acres

Building

Storeys
2.00
Square Footage
5200 sqft
Exterior Finish
Concrete, Vinyl siding
Fireplace Present
No
Basement Type
None
Basement Features
Building Heating Type
Heating Fuel
Building Cooling Type

Utilities

Water
Municipal water
Utility Sewer
Municipal sewage system

Location