109 Talbot Street N, Simcoe, Ontario N3Y 3W6

Listed for:
$699,500
4 beds
3 baths
Listed 41 days ago
Duplex for rent: 109 Talbot Street N, Simcoe, Ontario N3Y 3W6

View all 50 photos

About

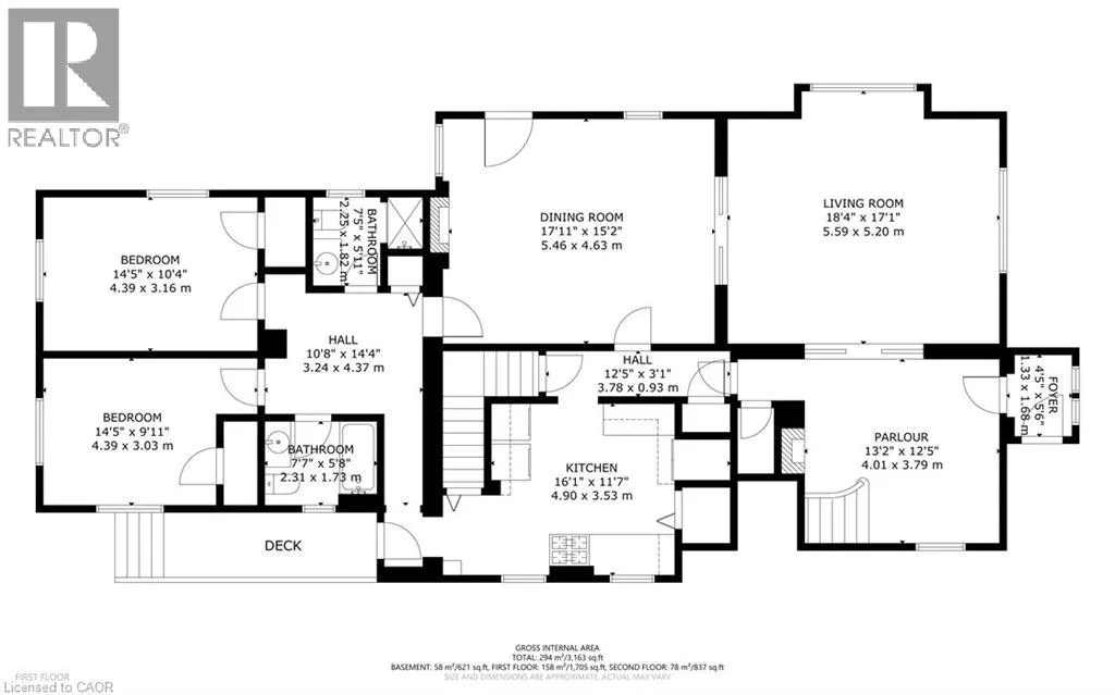
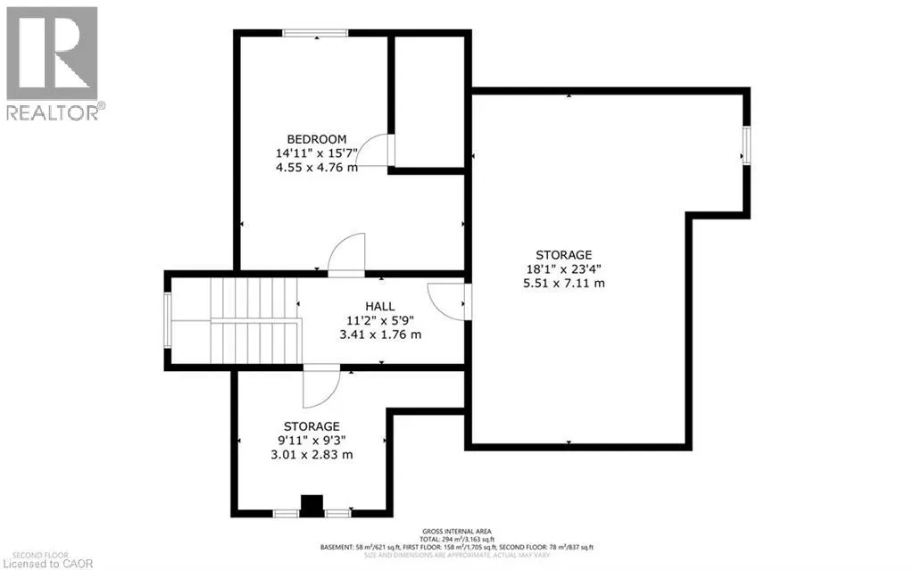
Take Norfolk Street to Union Street. West on Union Street and then south on Talbot Street North. Property on east side of Talbot St North. Gorgeous 2.5 story home in the heart of Simcoe. Pull in the private driveway leading to the manicured front yard and the covered porch. Step indoors to the foyer which leads to the parlor. Tall ceilings and stunning original features surround you in this inviting space. From here enter the spacious living room with pocket doors on either side. Original hardwood floors in both the parlor and living room. Natural light beams in from the large windows throughout the mainfloor with a colourful display of stained glass in the dining room. Next is the dining room with plenty of space for the whole family to gather together. Down the hall is the kitchen featuring granite countertops, a pantry and a laundry space (mainfloor laundry!). Just off the kitchen is a door to the backyard. At the back of the home is the first comfortable bedroom, a four piece bathroom, a three piece bathroom and the primary bedroom. Follow the stairs up in the main unit to loft space with an extra bedroom, storage closet and a large attic space that could be finished into additional living space. The unfinished basement houses the utilities and provides storage space. Looking for more? Head up to the second unit with two bedrooms, an eat-in kitchen, 4 piece bathroom, spacious living room and a walk-out to the sun porch. Outdoors the backyard provides space for relaxing, gardening, barbecuing and entertaining. The garage is perfect for storing all those extras in life. This charming property is perfect for a family or an investor. Located near shopping, library, schools and more. (id:27476)

Property Highlights

MLS® Number
40809679
Type
Multi-family
Ownership Type
Freehold
Land Size
under 1/2 acre
Parking Space Total
4

Building

Building Type
Duplex
Storeys
2.50
Square Footage
2848 sqft
Bathrooms Total
3
Bedrooms Total
4
Amenities
Hospital, Park, Schools, Shopping
Exterior Finish
Brick, Vinyl siding
Fireplace Present
No
Basement Type
Partial (Unfinished)
Basement Features
Building Heating Type
Baseboard heaters, Forced air
Heating Fuel
Electric, Natural gas
Building Cooling Type
Central air conditioning

Utilities

Water
Municipal water
Utility Sewer
Municipal sewage system

Location

Learn more about this property
Listing provided by:
Royal LePage Trius Realty Brokerage
MLS® number:
40809679
Agent:
Bill Culver
*Indicates required field
Name is required
Email is required
Please enter a valid phone number (e.g., 416-111-1111).