43 Judd Drive, Simcoe, Ontario N3Y 4Y8

Listed for:
$749,900
3 beds
3 baths
Listed 21 days ago
House for rent: 43 Judd Drive, Simcoe, Ontario N3Y 4Y8

View all 4 photos

About

Highway 3 to Ireland Road to Judd Drive This modern 1512 sq. ft. TO BE BUILT home in the town of Simcoe offers the perfect combination of convenience and style. Ideally located near shopping, restaurants, schools, and Highway 3 for easy commuting, this home is perfect for busy families and professionals alike. Step inside and experience the spaciousness of 9 ft ceilings throughout, with a grand 10 ft tray ceiling in the living room and raised ceiling in the second bedroom. The main floor features two generous bedrooms, including a primary suite with a luxurious ensuite bath. This home will feature a charming brick and stone exterior, along with a covered front porch and an expansive rear covered concrete porch—perfect for enjoying your outdoor space in comfort. The oversized garage with insulated doors provides direct access to the foyer, offering both convenience and practicality. As a new build, you’ll have the exciting opportunity to personalize your dream home by selecting cabinets, countertops, flooring, ensuite tiles, plumbing fixtures, light fixtures, front door, and paint colors. The unfinished basement provides possibilities for future expansion—whether you choose to create a cozy entertainment area, additional bedrooms, or a home office, the choice is yours. Don’t miss out on this incredible opportunity to own a brand-new home in Simcoe. Book your appointment to start picking out your finishes. (id:27476)

Property Highlights

MLS® Number
40811896
Type
Single Family
Ownership Type
Freehold
Land Size
under 1/2 acre
Parking Space Total
4

Building

Building Type
House
Storeys
1.00
Square Footage
1512 sqft
Bathrooms Total
3
Bedrooms Above Ground
2
Bedrooms Total
3
Amenities
Hospital, Schools, Shopping
Exterior Finish
Brick, Stone
Fireplace Present
No
Basement Type
Full (Unfinished)
Basement Features
Building Heating Type
Forced air
Heating Fuel
Natural gas
Building Cooling Type
Central air conditioning

Utilities

Water
Municipal water
Utility Sewer
Municipal sewage system

Room Layout

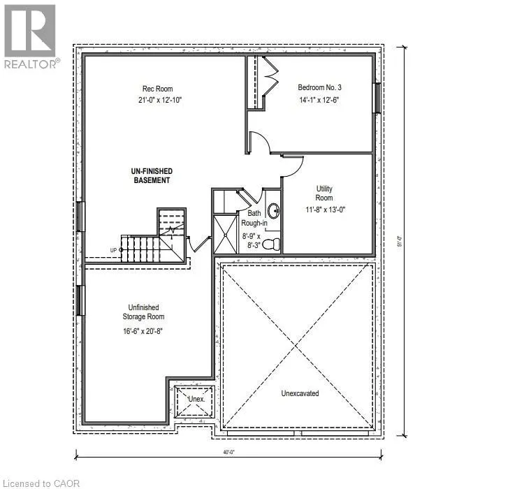
Storage
Basement
16'6'' x 20'8''
3pc Bathroom
Basement
8'9'' x 8'3''
Utility room
Basement
11'8'' x 13'0''
Bedroom
Basement
14'1'' x 12'6''
Recreation room
Basement
21'0'' x 12'10''
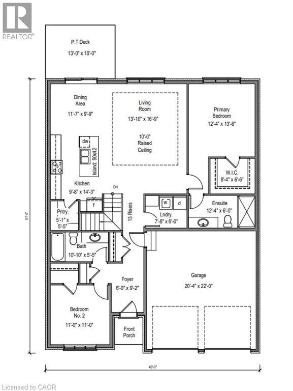
Full bathroom
Main level
12'4'' x 6'0''
Primary Bedroom
Main level
12'4'' x 13'6''
Living room
Main level
13'10'' x 16'9''
Dining room
Main level
11'7'' x 9'9''
Kitchen
Main level
9'8'' x 14'3''
Laundry room
Main level
7'8'' x 6'0''
Pantry
Main level
5'1'' x 5'5''
4pc Bathroom
Main level
10'10'' x 5'5''
Bedroom
Main level
11'0'' x 11'0''
Foyer
Main level
6'0'' x 9'2''

Location

Learn more about this property
Listing provided by:
RE/MAX Erie Shores Realty Inc. Brokerage
MLS® number:
40811896
Agent:
Rod Fess
*Indicates required field
Name is required
Email is required
Please enter a valid phone number (e.g., 416-111-1111).

Street Spotlight - For sale