1904 Lot 1 Turkey Point Road, Simcoe, Ontario N3Y 4J9

Listed for:
$767,600
2 beds
2 baths
Listed 15 days ago
House for rent: 1904 Lot 1 Turkey Point Road, Simcoe, Ontario N3Y 4J9

View all 3 photos

About

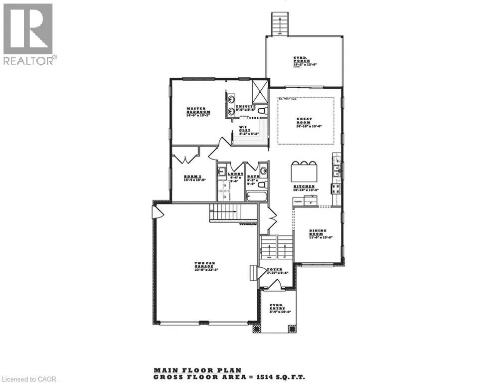
turkey Point Road to Greens Corners - south of McDowell Escape to the Country! Imagine coming home to fresh air, wide-open views, and the peaceful rhythm of country living. This 1-acre lot is ready to make new memories — the perfect setting for your dream home and your family’s next chapter. Choose this thoughtfully designed raised bungalow plan or bring your own vision — the builder will build to suit your needs and style! The featured design offers over 1500 sq. ft. of main floor living space, combining comfort, function, and modern appeal. Step inside to discover a custom kitchen with a large island and handy pantry, a separate dining room for gatherings, and a spacious great room with tray ceiling and walkout to the covered back deck — ideal for relaxing and taking in the view. The primary bedroom features a walk-in closet and private ensuite, while a second bedroom, full bath, and main floor laundry add everyday convenience. The attached two-car garage includes a separate entrance to the bright lower level, offering endless potential for future development — whether it’s extra bedrooms, a rec room, or an in-law suite. Built with high-quality finishes and energy-efficient features, every detail is crafted to create your perfect living space. Country life is calling — come design your dream home today! (existing structures to be removed) (id:27476)

Property Highlights

MLS® Number
40812365
Type
Single Family
Ownership Type
Freehold
Land Size
1/2 - 1.99 acres
Parking Space Total
8

Building

Building Type
House
Storeys
1.00
Square Footage
1514 sqft
Bathrooms Total
2
Bedrooms Above Ground
2
Bedrooms Total
2
Amenities
Hospital, Schools, Shopping
Exterior Finish
Brick Veneer, Stone, Vinyl siding
Fireplace Present
No
Basement Type
Full (Unfinished)
Basement Features
Building Heating Type
Forced air
Heating Fuel
Natural gas
Building Cooling Type
Central air conditioning

Utilities

Water
Well
Utility Sewer
Septic System

Room Layout

Full bathroom
Main level
Measurements not available
4pc Bathroom
Main level
Measurements not available
Laundry room
Main level
6'4'' x 9'0''
Bedroom
Main level
10'4'' x 10'8''
Primary Bedroom
Main level
14'0'' x 15'2''
Great room
Main level
16'10'' x 15'0''
Kitchen
Main level
16'10'' x 12'6''
Dining room
Main level
11'0'' x 13'0''
Foyer
Main level
7'10'' x 6'6''

Location

Learn more about this property
Listing provided by:
COLDWELL BANKER BIG CREEK REALTY LTD. BROKERAGE
MLS® number:
40812365
Agent:
Cindy Crevits
*Indicates required field
Name is required
Email is required
Please enter a valid phone number (e.g., 416-111-1111).