291 Victoria Street, Simcoe, Ontario N3T 4K2

Listed for:
$569,000
0 beds
0 baths
Listed 15 days ago
291 Victoria Street, Simcoe, Ontario N3T 4K2

View all 3 photos

About

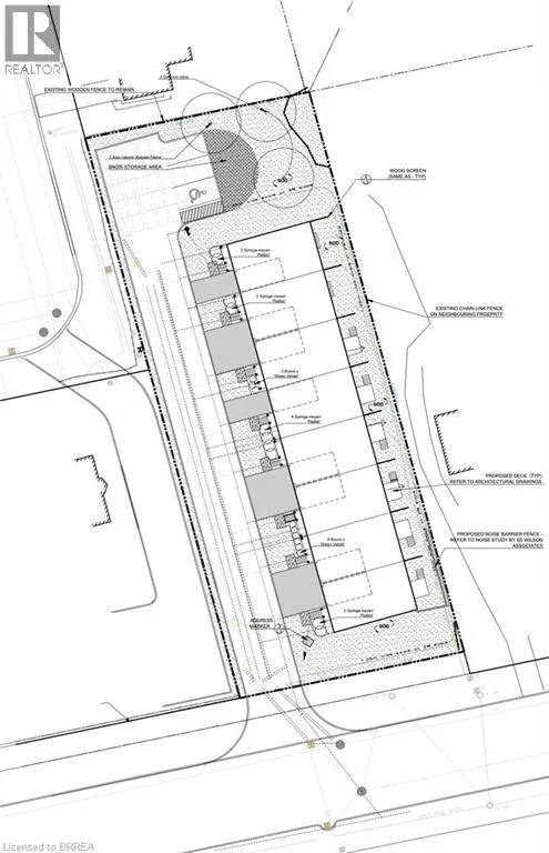
Victoria Street 0.54 Acre Development Property, site plan approved for 8 townhouses. Letter of Credit Posted with sanitary sewers, storm sewers and water infrastructure installed on property (still needs to be connected to municipal services). Close proximity to schools, local restaurants, shopping makes it a great choice to live. Designed for practicality, the site plan includes an opportunity for 19 parking spaces, ensuring residents and guests always find convenient parking. Property being sold “As Is, Where is” under Power of Sale. (id:27476)

Property Highlights

MLS® Number
40816880
Type
Vacant Land
Ownership Type
Freehold
Land Size
1/2 - 1.99 acres

Building

Fireplace Present
No
Basement Type
None
Basement Features
Building Heating Type
Heating Fuel
Building Cooling Type

Location

Learn more about this property
Listing provided by:
Re/Max Twin City Realty Inc
MLS® number:
40816880
Agent:
Ed Doucet
*Indicates required field
Name is required
Email is required
Please enter a valid phone number (e.g., 416-111-1111).