162 Victoria Street, Simcoe, Ontario N3Y 1L8

Listed for:
$544,900
4 beds
1 baths
Listed 8 days ago
House for rent: 162 Victoria Street, Simcoe, Ontario N3Y 1L8

View all 28 photos

About

House located Right side of Victoria Lovely brick bungalow in Simcoe. Welcome home to this 3+1 bedroom, 1 bath home. Main level has a bright living area with hardwood floors, large eat-in kitchen with custom cabinets, ample counter space, quartz countertops, and lots of light. Three nice size bedrooms are on this level along with a three piece bathroom. There is access from this level to the backyard. Lower level offers a recreation room, fourth bedroom and another room perfect for an office/ playroom etc. This home offers beautifully maintained front gardens, attached garage and concrete driveway. Easy living located close to parks, schools, golf, stores, restaurants and amenities. (id:27476)

Property Highlights

MLS® Number
40816100
Type
Single Family
Ownership Type
Freehold
Land Size
under 1/2 acre
Parking Space Total
5

Building

Building Type
House
Storeys
1.00
Square Footage
1080 sqft
Bathrooms Total
1
Bedrooms Above Ground
3
Bedrooms Total
4
Amenities
Golf Nearby, Hospital, Park, Schools
Exterior Finish
Brick
Fireplace Present
No
Basement Type
Full (Finished)
Basement Features
Building Heating Type
Forced air
Heating Fuel
Natural gas
Building Cooling Type
Central air conditioning

Utilities

Water
Municipal water
Utility Sewer
Municipal sewage system

Room Layout

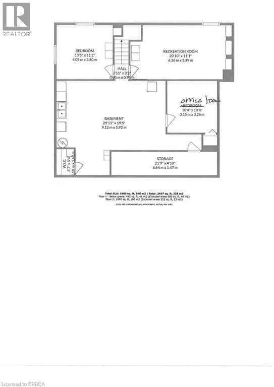
Storage
Basement
21'9'' x 4'10''
Other
Basement
29'11'' x 19'5''
Recreation room
Basement
20'10'' x 11'1''
Office
Basement
10'4'' x 10'8''
Bedroom
Basement
13'5'' x 11'2''
Foyer
Main level
3'6'' x 12'2''
Dining room
Main level
12'4'' x 10'0''
Bedroom
Main level
11'11'' x 8'9''
Bedroom
Main level
8'3'' x 8'11''
Primary Bedroom
Main level
11'7'' x 10'0''
3pc Bathroom
Main level
8'9'' x 5'1''
Kitchen
Main level
10'11'' x 12'0''
Living room
Main level
13'6'' x 15'2''

Location

Learn more about this property
Listing provided by:
Century 21 Heritage House Ltd
MLS® number:
40816100
Agent:
Sandra Rae
*Indicates required field
Name is required
Email is required
Please enter a valid phone number (e.g., 416-111-1111).