78 Rabb Street, Smiths Falls, Ontario K7A 0L6

Listed for:
$629,900
2 beds
2 baths
Listed 24 days ago
House for rent: 78 Rabb Street, Smiths Falls, Ontario K7A 0L6

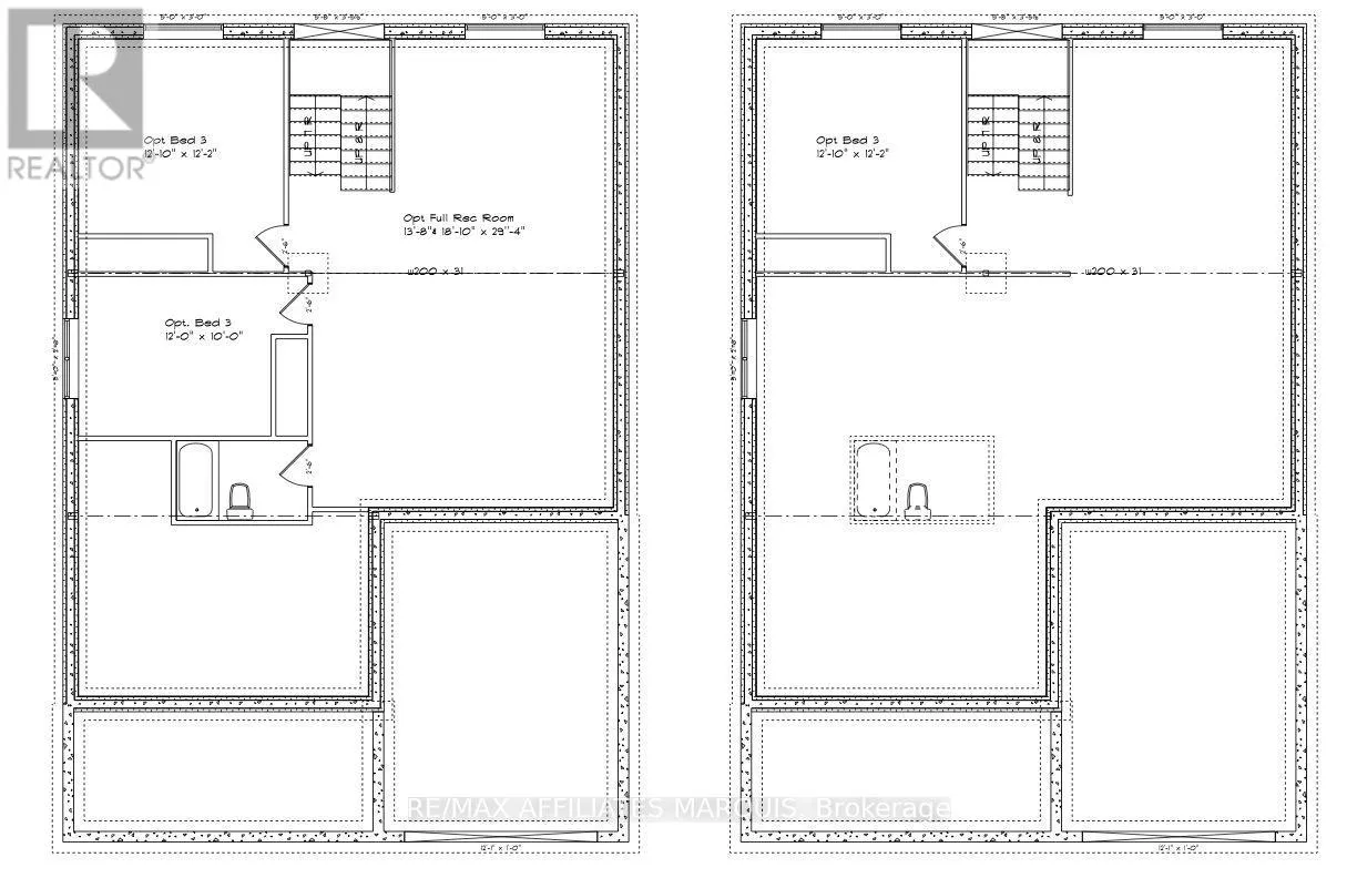
View all 7 photos

About

Cross Streets: Armstrong Drive. ** Directions: From Brockville St in Smiths Falls, across fromt the Settler's Ridge mall, take Armstrong drive to the end, it turns into Rabb St. Welcome to Maple Ridge the newest development in Smiths Falls by Campbell Homes. This to-be-built stunning Hudson model available on lots 32-36, comes above average included finishes that are sure to impress. These homes are built with ICF (Insulated Concrete Form) foundation for the basement and main floor to the base of the roof rafters providing amazing insulation factors and sound barrier. These Energy Star Efficient homes are outfitted with stunning standard finishes including quartz countertops, oversized kitchen cabinets, luxury vinyl plank flooring, and large room brightening windows on both levels. Pictured here is The Hudson Model with a daylight basement on a nice sized lot. The main floor features 1350 sq ft, 2 bedrooms and 2 bathrooms, and a 3rd bath roughed in downstairs. With a large bright open concept living space that features smooth 9" ceilings, a professionally designed kitchen with custom cabinetry, tile backsplash. The switchback stairs allow for ease of access to the backyard from the main floor or the basement. The large front verandah allows you to sit out and enjoy your neighbourhood. The daylight basement is flooded with light. Choose to finish the basement, add additional bedrooms and living space at a reasonable cost or upgrade your main level and add a beautiful kitchen island and or a cozy fireplace to your living room. Come see our models and design your dream with our help, have fun choosing all your finishes from our vast options, you also can choose your exterior from the beautiful stone or brick and siding options. Our sales centre is located on Armstrong Drive, stop by and view the selection of finishes in the sales centre and in our completed models. Call and book your showing today or stop by the Sales Centre on Rabb St (id:27476)

Property Highlights

MLS® Number
X12020139
Type
Single Family
Community Name
901 - Smiths Falls
Ownership Type
Freehold
Land Size
50 x 113 FT
Parking Space Total
3

Building

Building Type
House
Storeys
1.00
Square Footage
1100 - 1500 sqft
Bathrooms Total
2
Bedrooms Above Ground
2
Bedrooms Total
2
Exterior Finish
Stone, Vinyl siding
Fireplace Present
No
Basement Type
Full (Unfinished)
Basement Features
Building Heating Type
Forced air
Heating Fuel
Natural gas
Building Cooling Type
Central air conditioning

Utilities

Water
Municipal water
Utility Sewer
Sanitary sewer

Location

Learn more about this property
Listing provided by:
RE/MAX AFFILIATES MARQUIS
MLS® number:
X12020139
Agent:
Jackie Watkins
*Indicates required field
Name is required
Email is required
Please enter a valid phone number (e.g., 416-111-1111).