28 Beckwith Street N, Smiths Falls, Ontario K7A 2B3

Listed for:
$475,000
0 beds
0 baths
Listed 5 days ago
28 Beckwith Street N, Smiths Falls, Ontario K7A 2B3

View all 3 photos

Learn more about this property
Listing provided by:
RE/MAX AFFILIATES MARQUIS LTD.
MLS® number:
X12538728
Agent:
Katie Bellsmith
*Indicates required field
Name is required
Email is required
Please enter a valid phone number (e.g., 416-111-1111).

About

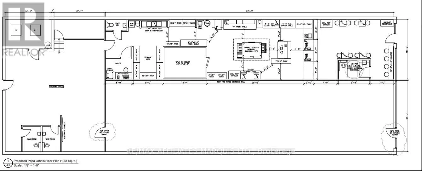
Cross Streets: Russell St & Beckwith St. ** Directions: Beckwith St., between Russell St and William St. Calling all business owners & investors! This versatile, single-level commercial space offers roughly 5,000 sq ft ready to customize for retail, office, or service-oriented operations. The layout can be easily reconfigured into multiple units to suit your vision, offset expenses, create income streams. With expansive storefront windows, high ceiling height, and excellent street exposure, the building benefits from steady foot & vehicle traffic. Ground-level construction ensures smooth, accessible entry for all customers. Positioned in the heart of the downtown district, the property allows for a broad range of permitted uses and sits among successful shops, restaurants, and services. Up to 100k in City grants available if you qualify. Book today and be ready to open in 2026. 24-hour irrevocable on all offers. (id:27476)

Property Highlights

MLS® Number
X12538728
Type
Retail
Community Name
901 - Smiths Falls
Land Size
Bldg=42 x 122 FT

Building

Square Footage
4960 sqft
Fireplace Present
No
Basement Type
Basement Features
Building Heating Type
Forced air
Heating Fuel
Natural gas
Building Cooling Type
Fully air conditioned

Utilities

Water
Municipal water

Location