101 Staples Boulevard, Smiths Falls, Ontario K7A 0B8

Listed for:
$449,900
3 beds
3 baths
Listed 1 day ago
Row / Townhouse for rent: 101 Staples Boulevard, Smiths Falls, Ontario K7A 0B8

View all 48 photos

About

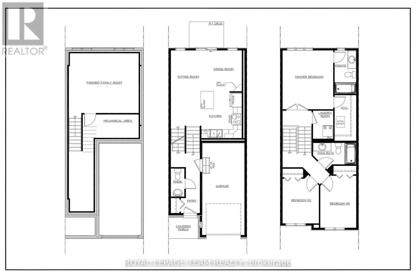
Cross Streets: Broadview Ave. ** Directions: South east on 15S, continue straight onto Brockville street, turn right onto Broadview Ave, turn right onto staples blvd. Move-In Ready - No Rear Neighbours- The ETSON by Park View Homes. Step into homeownership with confidence in The ETSON - a brand-new ENERGY STAR certified 3-bedroom, 2.5-bath townhome designed with first-time buyers in mind. Offering modern finishes, functional space, and peaceful greenspace views, this home blends comfort, value, and efficiency in one smart package. The bright open-concept main floor creates an inviting space to gather with friends and family, featuring laminate flooring, modern trim, flat ceilings, and satin nickel hardware throughout. The kitchen is both stylish and practical with a large island and pendant lighting, soft-close cabinetry, laminate countertops, stainless steel sink, and a full stainless steel appliance package - making it truly move-in ready from day one. Upstairs, the private primary suite includes a walk-in closet and an ensuite with a glass walk-in shower. Two additional bedrooms and a full main bath provide flexibility for guests, a nursery, or a dedicated home office. Convenient upper-level laundry with included washer and dryer makes everyday living easy. The finished lower level offers bonus living space - perfect for a rec room, workout area, or cozy movie nights. Additional features include modern spindles and rails, ceramic tile in bathrooms and laundry, low-flow toilets, and a designer-curated finishing package. Outside, enjoy a rear deck overlooking serene greenspace, plus sodded front and rear yards, an asphalt driveway, and a patio stone walkway for polished curb appeal. Located in a growing, family-friendly community, you'll appreciate nearby parks, schools, everyday shopping, and convenient access to major routes - offering small-town charm with easy connectivity. Built in 2024 and backed by the full Tarion Warranty Program, The ETSON is move-in ready and waiting to welcome you home. (id:27476)

Property Highlights

MLS® Number
X12833076
Type
Single Family
Community Name
901 - Smiths Falls
Ownership Type
Freehold
Land Size
5.5 x 30.5 M
Parking Space Total
2

Building

Building Type
Row / Townhouse
Storeys
2.00
Square Footage
1100 - 1500 sqft
Bathrooms Total
3
Bedrooms Above Ground
3
Bedrooms Total
3
Exterior Finish
Stone, Vinyl siding
Fireplace Present
No
Basement Type
Full (Partially finished)
Basement Features
Building Heating Type
Forced air
Heating Fuel
Natural gas
Building Cooling Type
Central air conditioning

Utilities

Water
Municipal water
Utility Sewer
Sanitary sewer

Room Layout

Laundry room
Second level
1.98 m x 1.42 m
Primary Bedroom
Second level
4.14 m x 3.56 m
Bathroom
Second level
3.05 m x 1.52 m
Other
Second level
3.2 m x 1.52 m
Family room
Lower level
4.85 m x 4.19 m
Utility room
Lower level
Measurements not available
Kitchen
Main level
3.2 m x 2.87 m
Dining room
Main level
2.87 m x 2.49 m
Sitting room
Main level
5.28 m x 2.49 m
Bathroom
Upper Level
3.05 m x 1.52 m
Bedroom 2
Upper Level
3.15 m x 2.57 m
Bedroom 3
Upper Level
3.66 m x 2.54 m
Foyer
Ground level
1.35 m x 1.07 m
Bathroom
Ground level
1.98 m x 0.96 m

Location

Learn more about this property
Listing provided by:
ROYAL LEPAGE TEAM REALTY
MLS® number:
X12833076
Agent:
Diana Delisle
*Indicates required field
Name is required
Email is required
Please enter a valid phone number (e.g., 416-111-1111).