68 Sauble Falls Road, South Bruce Peninsula, Ontario N0H 2G0

Listed for:
$1,295,000
0 beds
2 baths
Listed 179 days ago
68 Sauble Falls Road, South Bruce Peninsula, Ontario N0H 2G0

View all 47 photos

Learn more about this property
Listing provided by:
Sutton-Sound Realty
MLS® number:
X12277250
Agent:
Chris Wynn
*Indicates required field
Name is required
Email is required
Please enter a valid phone number (e.g., 416-111-1111).

About

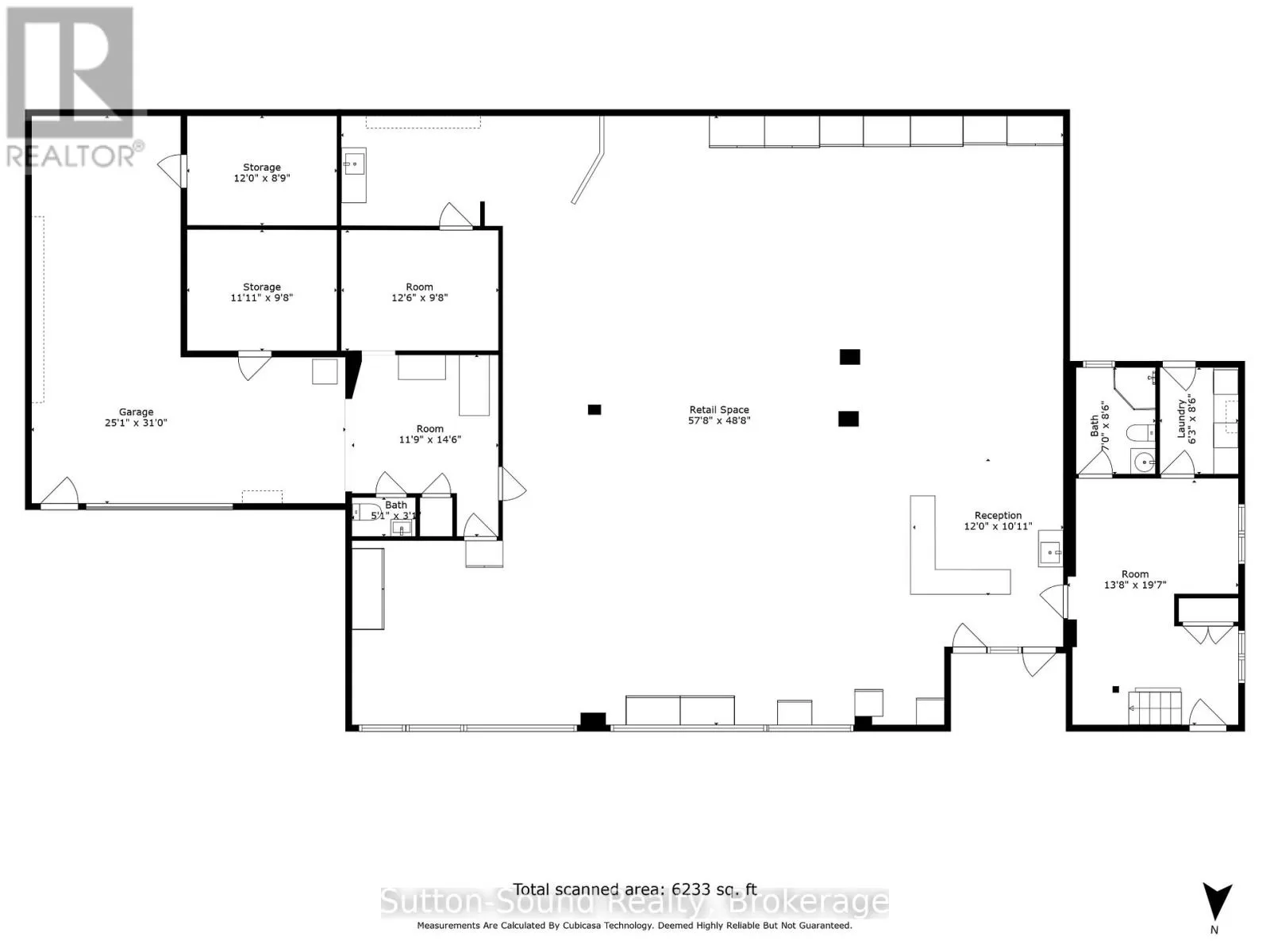
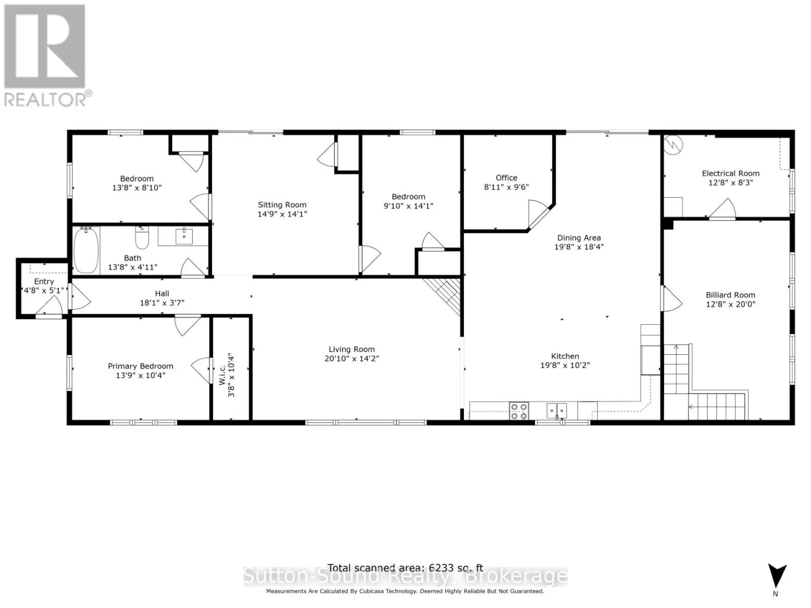
Cross Streets: Sable Falls Rd and King Edward Ave. ** Directions: Bruce Road 13 to Sauble Falls Rd. COMMERCIAL OPPORTUNITY IN POPULAR BEACH DESTINATION! This property offers approx 3000 sq ft commercial space zoned C4 for ample venture opportunities with a beautifully finished residential upper level. After 18yrs operating this thriving business and 38yrs in the business sector, the owners are ready for semi retirement. This store currently offers Meats, Fresh Fish, Local Products, Baking, Wood, Groceries, Scooped Ice Cream and much more and..... now excited to announce they are carrying wine and beer! The residential space, fully renovated in 2015 features 3 bed, 2 bath, open kitchen dining room, living room, family room, office, games room and upper deck. Ideally located at north end of the Beach with view of Sauble River. Only 5 min walk to beach, amongst numerous cottages and campgrounds and 5 min drive to Sauble Falls. (id:27476)

Property Highlights

MLS® Number
X12277250
Type
Retail
Community Name
South Bruce Peninsula
Land Size
Unit=163 x 81 FT
Parking Space Total
20

Building

Square Footage
5200 sqft
Bathrooms Total
2
Amenities
Recreation
Fireplace Present
No
Basement Type
Basement Features
Building Heating Type
Forced air
Heating Fuel
Natural gas
Building Cooling Type
Fully air conditioned

Utilities

Water
Drilled Well
Utility Sewer
Septic System

Location