524 Scott Street, South Bruce Peninsula, Ontario N0H 2T0

Listed for:
$524,000
2 beds
2 baths
Listed 1 day ago
House for rent: 524 Scott Street, South Bruce Peninsula, Ontario N0H 2T0

View all 40 photos

Learn more about this property
Listing provided by:
Royal LePage RCR Realty
MLS® number:
X12391790
Agent:
Alisha Wunderlich
*Indicates required field
Name is required
Email is required
Please enter a valid phone number (e.g., 416-111-1111).

About

Cross Streets: Scott St. & George St. ** Directions: From Hwy 6 heading north, turn right onto George Street. Turn right onto Scott St. House is on right-hand side. Welcome to 524 Scott Street - a beautifully renovated home ideally situated steps from Bluewater Park, the marina, and the vibrant downtown core of Wiarton. This stylish 2-bed, 2-bath home has been thoughtfully updated throughout, offering a fresh aesthetic. Enjoy the convenience of new Samsung appliances in the spacious, recently renovated eat-in kitchen, perfect for entertaining or everyday living. The main floor features gorgeous hardwood flooring, while the upper level offers engineered hardwood and bright, airy spaces. Both bathrooms are equipped with in-floor heating for added comfort and luxury. Set on a rare oversized lot, the home offers generous outdoor space for gardening, recreation, or future potential. The 1-car carport, enclosed on three sides, provides functional covered parking and storage. Spend your evening on the natural stone front porch with partial views of the bay. Whether you are searching for a year-round home, weekend escape, or investment property, this one checks all the boxes. Experience all that Wiarton and the Bruce Peninsula have to offer! (id:27476)

Property Highlights

MLS® Number
X12391790
Type
Single Family
Community Name
South Bruce Peninsula
Ownership Type
Freehold
Land Size
99 x 198 FT
Parking Space Total
7

Building

Building Type
House
Storeys
1.50
Square Footage
1500 - 2000 sqft
Bathrooms Total
2
Bedrooms Above Ground
2
Bedrooms Total
2
Amenities
Beach, Hospital, Marina
Exterior Finish
Brick, Stone
Fireplace Present
No
Basement Type
N/A (Unfinished)
Basement Features
Building Heating Type
Forced air
Heating Fuel
Natural gas
Building Cooling Type
Window air conditioner

Utilities

Water
Municipal water
Utility Sewer
Sanitary sewer

Room Layout

Bedroom
Second level
4.3942 m x 2.7178 m
Bedroom 2
Second level
4.445 m x 4.445 m
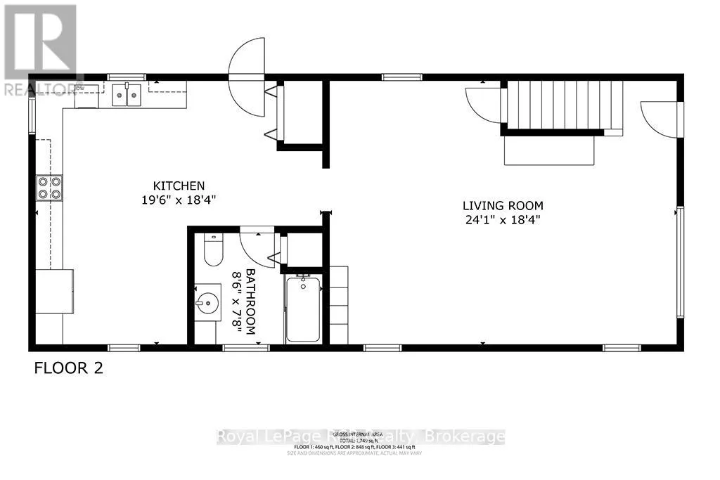
Kitchen
Main level
5.9436 m x 5.588 m
Living room
Main level
7.3406 m x 5.588 m

Location

Community Spotlight: Homes For sale in Your Neighborhood