3 Oriole Avenue, South Bruce Peninsula, Ontario N0H 2T0

Listed for:
$139,000
0 beds
0 baths
Listed 60 days ago
3 Oriole Avenue, South Bruce Peninsula, Ontario N0H 2T0

View all 12 photos

About

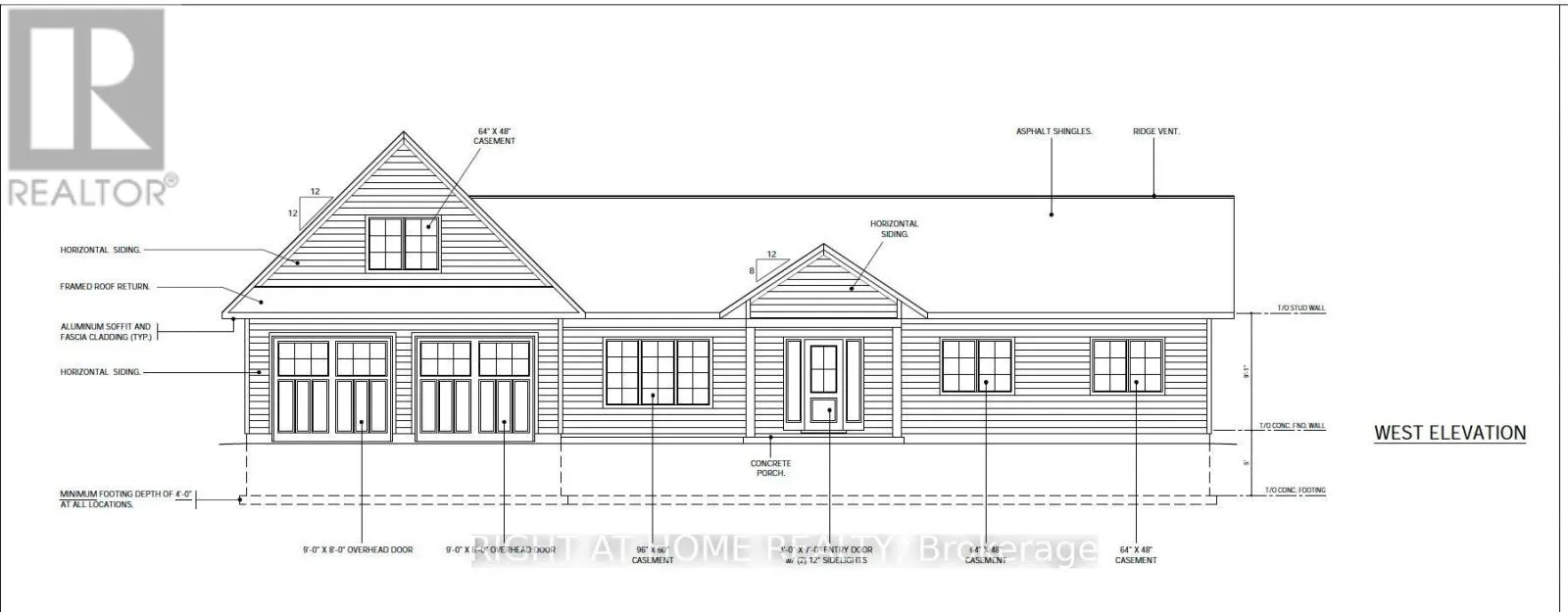
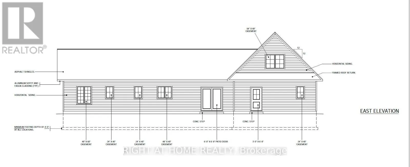
Cross Streets: Bryant St / Spry Lake Rd. ** Directions: Take Bruce Road 13 to Oliphant then north on Bryant Street and left on Spry Lake Road to Oriole Ave. Huge Potential! Zoned R3 with a generous lot size ideal for a variety of building styles permitting multi-residential 3+ units, triplexes, townhouses & more. Huge investment potential!Rare opportunity to own a PREMIUM 100' x 140' building lot in the sought-after lakeside community of Oliphant on the beautiful Bruce Peninsula. Surrounded by mature trees, natural beauty, and established homes and cottages, this property offers the perfect setting for your dream cottage or year-round residence.What truly sets this lot apart it comes with approved architectural drawings and a building permit for a thoughtfully designed 4-bedroom, 3-bathroom bungalow, saving you significant time, money, and months of planning. The seller has already made a substantial investment to have this completed. Simply pull your permit and start building. Just a short walk to the shores of Lake Huron and a 2-minute drive to the popular Oliphant North Beach, renowned for its shallow, crystal-clear waters a premier destination for kiteboarding, windsurfing, sailing, and outdoor adventure. Conveniently located a short drive to Sauble Beach and Wiarton.Priced for a quick sale this is exceptional value in today's market. Don't miss your chance to secure one of the best-valued building lots on the Bruce Peninsula. Come and check yourself (id:27476)

Property Highlights

MLS® Number
X12742132
Type
Vacant Land
Community Name
South Bruce Peninsula
Land Size
100 x 140 FT|under 1/2 acre

Building

Fireplace Present
No
Basement Type
Basement Features
Building Heating Type
Heating Fuel
Building Cooling Type

Location

Learn more about this property
Listing provided by:
RIGHT AT HOME REALTY
MLS® number:
X12742132
Agent:
Oleg Snihur
*Indicates required field
Name is required
Email is required
Please enter a valid phone number (e.g., 416-111-1111).

Community Spotlight: Homes For sale in Your Neighborhood