N/a Land County Rd 2, South Glengarry, Ontario K0C 1N0

Listed for:
$9,999,000
0 beds
0 baths
Listed 50 days ago
N/a Land County Rd 2, South Glengarry, Ontario K0C 1N0

View all 2 photos

Learn more about this property
Listing provided by:
ROYAL LEPAGE FLOWER CITY REALTY
MLS® number:
X12347471
Agent:
Harpal Singh Bhalla
*Indicates required field
Name is required
Email is required
Please enter a valid phone number (e.g., 416-111-1111).

About

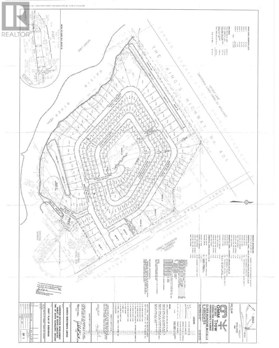
401 & County Rd 2 Property for sale formerly known as Cairnview Estates Development is a 68.82-acre property with an Approved Draft Plan of Subdivision located in South Lancaster, Ontario, in the Township of South Glengarry. The Draft Plan calls for 184 residential lots and 4 other blocks of land that could be commercial or institutional. 26 of the residential lots are waterfront lots backing onto the Raisin River and two private canals. From the Raison River, you have access (650 meters) to the St. Lawrence River. Lancaster is located 21km from the Quebec/Ontario border and 52km from Vaudreuil-Dorion. The Property has access to full services that include: municipal water, municipal sewers, electrical, and natural gas. (id:27476)

Property Highlights

MLS® Number
X12347471
Type
Vacant Land
Community Name
722 - Lancaster
Land Size
68.815 ac

Building

Square Footage
69 ac
Fireplace Present
No
Basement Type
Basement Features
Building Heating Type
Heating Fuel
Building Cooling Type

Location