6261 - 911 - 6259 67th Avenue, South Glengarry, Ontario K0C 1N0

Listed for:
$320,000
3 beds
2 baths
Listed 6 days ago
House for rent: 6261 - 911 - 6259 67th Avenue, South Glengarry, Ontario K0C 1N0

View all 49 photos

Learn more about this property
Listing provided by:
CENTURY 21 SHIELD REALTY LTD.
MLS® number:
X12654794
Agent:
Sophie Goudreau
*Indicates required field
Name is required
Email is required
Please enter a valid phone number (e.g., 416-111-1111).

About

Cross Streets: 67th Ave & 2nd Line Rd. ** Directions: See GPS. Are you looking for a permanent staycation-type property? Here's a unique opportunity for you: This property doesn't just have one home, but two "year-round cottage-style homes" + a boathouse and an attached (reg. door access only) & detached garage! Imagine strolling down to your very own boathouse, hopping on your boat, and cruising into breathtaking sunsets or diving in the majestic St-Lawrence River for a refreshing swim! Live in one, rent the other, or share the property with extended family, this is the perfect setup! You could even live mortgage-free! With a little creativity, you can turn these two cozy retreats into the ultimate affordable riverside retreats. 6261 has 2 bedrooms, a full bathroom, a bright dining space, and a spacious living room, a detached 1 car garage, and an attached garage. 6259 has 1 bedroom, a full bathroom, a functional kitchen + eat-in area, connected to the spacious living-room, a front porch and walkout to back deck also giving access to a right of way allowing you to walk to your very own boathouse. The front steps were just recently redone. If you've been planning to move to a permanent staycation-type of property, with an additional income potential, then why not make 6259, 6261 & 911 - 67th Ave in beautiful Lancaster, your happy place! Please allow 48 business hrs irrevocable with all offers. This property is an estate and is being sold as is where is. (id:27476)

Property Highlights

MLS® Number
X12654794
Type
Single Family
Community Name
722 - Lancaster
Ownership Type
Freehold
Land Size
133.5 x 83.1 FT
Parking Space Total
6

Building

Building Type
House
Storeys
1.00
Square Footage
1500 - 2000 sqft
Bathrooms Total
2
Bedrooms Above Ground
2
Bedrooms Total
3
Amenities
Separate Heating Controls
Exterior Finish
Aluminum siding
Fireplace Present
No
Basement Type
None
Basement Features
Building Heating Type
Forced air
Heating Fuel
Oil
Building Cooling Type
None

Utilities

Water
Drilled Well
Utility Sewer
Holding Tank

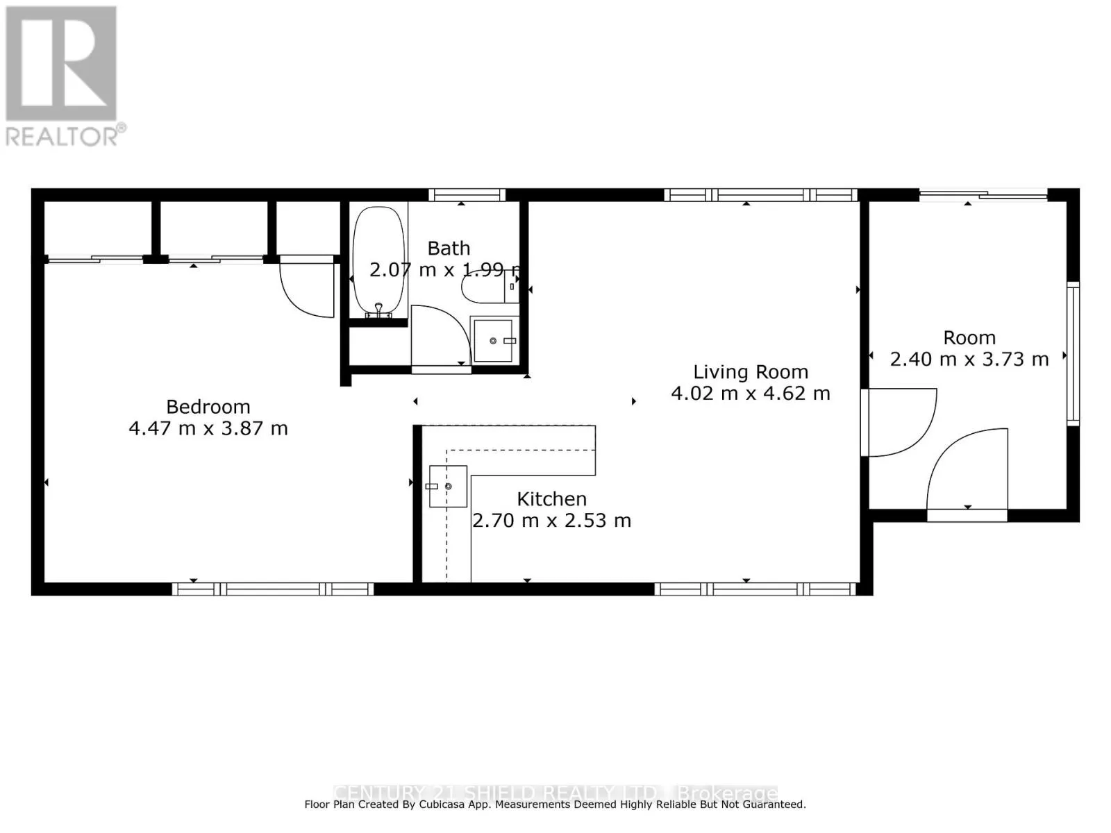
Room Layout

Living room
Main level
4.2 m x 6.4 m
Dining room
Main level
3.22 m x 1.96 m
Bedroom
Main level
4.54 m x 3.93 m
Bathroom
Main level
2.08 m x 2.04 m
Kitchen
Main level
3.46 m x 2.82 m
Dining room
Main level
2.95 m x 3.59 m
Bedroom
Main level
2.84 m x 2.99 m
Bathroom
Main level
2.05 m x 2.07 m
Bedroom 2
Main level
3.65 m x 3.19 m
Other
Main level
6.57 m x 4.99 m
Living room
Main level
2.23 m x 4.07 m
Sunroom
Main level
3.7 m x 2.31 m
Kitchen
Main level
1.96 m x 2.11 m

Location