20276 Maple Road, South Glengarry, Ontario K0C 2J0

Listed for:
$579,500
5 beds
3 baths
Listed 13 days ago
House for rent: 20276 Maple Road, South Glengarry, Ontario K0C 2J0

View all 49 photos

About

Cross Streets: Maple Rd, County Rd 34. ** Directions: North on County Rd 34. West on Maple Rd. Private Country Bungalow on 8 Acres! Set well back from the road on a peaceful 8-acre parcel, this versatile 3+2 bedroom bungalow offers privacy, space, and the kind of natural setting that feels increasingly rare. The partially treed lot is a beautiful mix of white spruce, red pine, and white pine, creating a quiet, secluded backdrop ideal for country living, recreation, or simply enjoying the calm. Inside, the home features a functional oak kitchen with an abundance of cabinetry, flowing seamlessly into the dining area for easy everyday living. Multiple living spaces include both a living room and a family room, offering flexibility for entertaining, relaxing, or multigenerational use. Primary bedroom with a 3pc en-suite bathroom. 4pc guest bathroom with tub/shower. Main floor laundry adds everyday convenience. The lower level expands the living space featuring two additional bedrooms, rec room with bar, 2pc bathroom (potential 3pc), and home office/den. Outdoors, the property is equally well-equipped with a back deck, a detached enclosed temporary garage plus an impressive 20 ft x 40 ft detached garage/workshop, ideal for vehicles, storage, or projects. A private and picturesque parcel with room to grow, work, and unwind-this property delivers the space and freedom of rural living while offering practical features for everyday life. As per Seller direction allow 24 hour irrevocable on offers. (id:27476)

Property Highlights

MLS® Number
X12818766
Type
Single Family
Community Name
723 - South Glengarry (Charlottenburgh) Twp
Ownership Type
Freehold
Land Size
420 x 839.8 FT
Parking Space Total
10

Building

Building Type
House
Storeys
1.00
Square Footage
1500 - 2000 sqft
Bathrooms Total
3
Bedrooms Above Ground
3
Bedrooms Total
5
Exterior Finish
Vinyl siding
Fireplace Present
No
Basement Type
N/A (Finished)
Basement Features
Building Heating Type
Forced air
Heating Fuel
Propane
Building Cooling Type
Central air conditioning

Utilities

Water
Drilled Well
Utility Sewer
Septic System

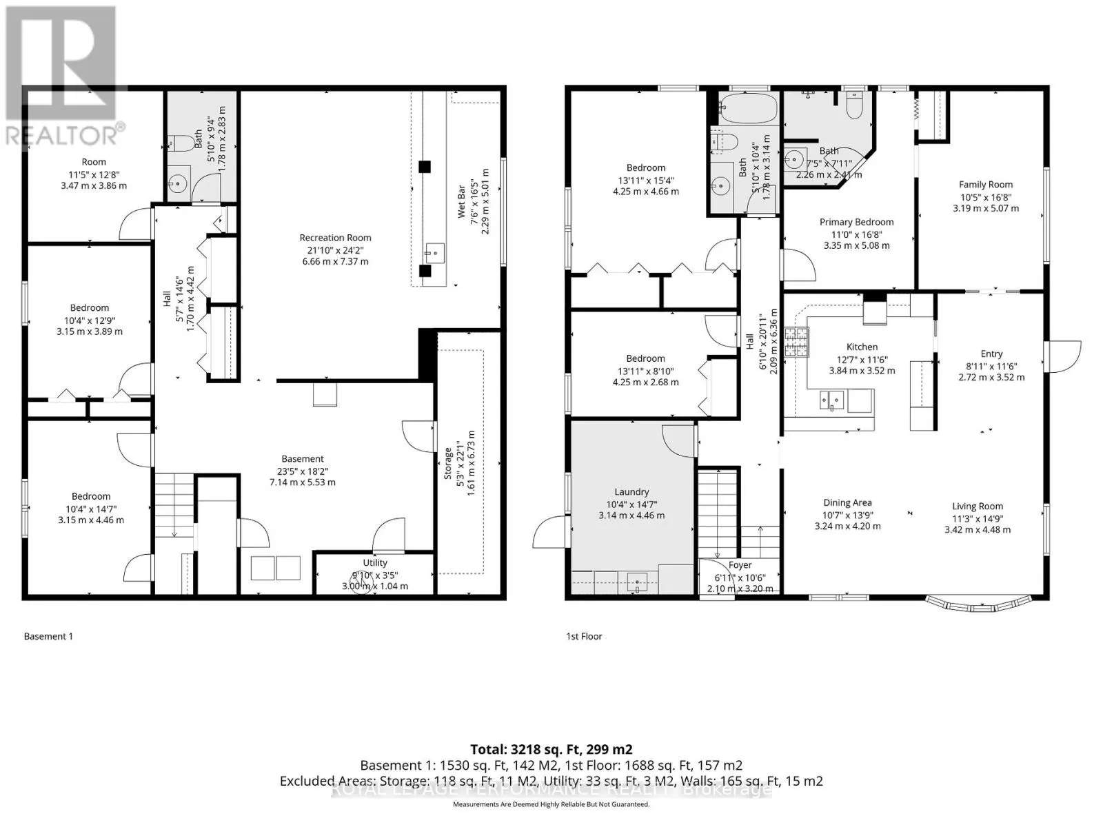
Room Layout

Bedroom 5
Basement
3.89 m x 3.15 m
Den
Basement
3.86 m x 3.47 m
Recreational, Games room
Basement
7.37 m x 6.66 m
Bedroom 4
Basement
4.46 m x 3.15 m
Dining room
Main level
4.2 m x 3.24 m
Living room
Main level
4.48 m x 3.24 m
Family room
Main level
5.07 m x 3.19 m
Kitchen
Main level
3.84 m x 3.52 m
Primary Bedroom
Main level
5.08 m x 3.35 m
Bedroom 2
Main level
4.25 m x 2.68 m
Bedroom 3
Main level
4.25 m x 2.68 m
Laundry room
Main level
4.46 m x 3.14 m

Location

Learn more about this property
Listing provided by:
ROYAL LEPAGE PERFORMANCE REALTY
MLS® number:
X12818766
Agent:
Jen Blair Manley
*Indicates required field
Name is required
Email is required
Please enter a valid phone number (e.g., 416-111-1111).