28 Dearing Drive, South Huron, Ontario N0M 1T0

Listed for:
$625,000
2 beds
2 baths
Listed 68 days ago
Row / Townhouse for rent: 28 Dearing Drive, South Huron, Ontario N0M 1T0

View all 39 photos

About

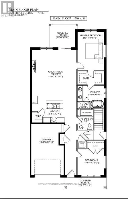
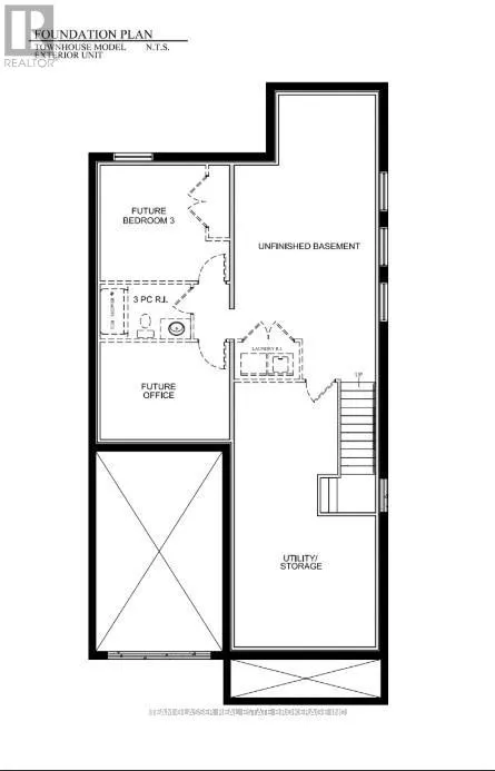
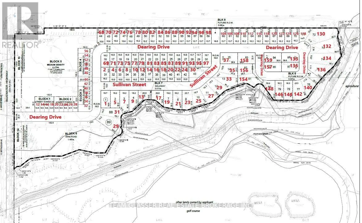
Head to Grand Bend-Turn North on Hwy #21 (Bluewater Hwy),Just past Oakwood on right (east) side of the road (next to the golf course-New Subdivision (no Entry) Flags at road. The townhomes will be immediately on the left as you drive in. PRICE IS INCLUDING NEW HST REBATE FOR AGREEMENTS SIGNED BETWEEN APRIL 1 2026 TO MARCH 31ST 2027 FOR PRINCIPAL RESIDENCE HOMES. Magnus Townhomes at Sol Haven, Grand Bend. Freehold bungalow townhomes - NO condo fees! This site features a pond across the street, and is within walking distance to golf, restaurants, cafes and the Grand Bend Beach. Closings available immediately, move in for Spring/Summer 2026 in Grand bend! This End unit features selections package A, with lighter tones throughout. Offering 1,298 sq. ft. this 2 Bed 2 Bath townhome offers 2 major differences from the interior unit, it adds side door access to the basement, allowing for an in-law suite with its own separate access and a 100 sq. ft covered back deck., which could be finished for an in-law suite. Some standard features include 10' ceilings, quartz countertops, engineered hardwood, electric fireplace and main floor laundry The primary suite can easily fit a king bed, walk through closet to a double vanity bathroom, walk in shower and stand alone tub. Basement can be finished to add an additional bedroom, bathroom, rec room and den. Inquire for more information, available units, selection packages and be sure to check out our virtual tour link or visit us at our model units! *Basement finish extra.Your lakeside lifestyle begins the moment you arrive. Life feels lighter by the water - welcome to Grand Bend. (id:27476)

Property Highlights

MLS® Number
X12725908
Type
Single Family
Community Name
Stephen
Ownership Type
Freehold
Land Size
30 FT
Parking Space Total
3

Building

Building Type
Row / Townhouse
Storeys
1.00
Square Footage
1100 - 1500 sqft
Bathrooms Total
2
Bedrooms Above Ground
2
Bedrooms Total
2
Exterior Finish
Vinyl siding, Stone
Fireplace Present
Yes
Basement Type
Full (Unfinished)
Basement Features
Building Heating Type
Forced air
Heating Fuel
Natural gas
Building Cooling Type
Central air conditioning

Utilities

Water
Municipal water

Room Layout

Recreational, Games room
Basement
8.43 m x 5.64 m
Bedroom
Basement
4.06 m x 3.96 m
Great room
Main level
5.48 m x 5.27 m
Kitchen
Main level
3.84 m x 3.16 m
Foyer
Main level
1.55 m x 6.1 m
Primary Bedroom
Main level
3.16 m x 5.27 m
Bedroom
Main level
3.16 m x 3.04 m
Bathroom
Main level
1.88 m x 2.43 m
Bathroom
Main level
3.16 m x 3.16 m

Location

Learn more about this property
Listing provided by:
TEAM GLASSER REAL ESTATE BROKERAGE INC.
MLS® number:
X12725908
Agent:
Christine Crncich
*Indicates required field
Name is required
Email is required
Please enter a valid phone number (e.g., 416-111-1111).

Street Spotlight - For sale