21298 Springfield Road, Southwest Middlesex, Ontario N0L 1T0

Listed for:
$1,999,999
7 beds
4 baths
Listed 37 days ago
21298 Springfield Road, Southwest Middlesex, Ontario N0L 1T0

View all 50 photos

About

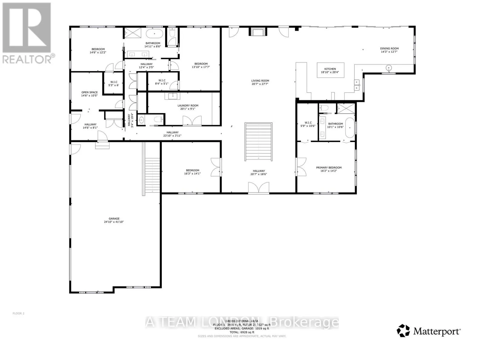
Cross Streets: Springfield Rd & Gentlemen Dr. ** Directions: At the corner of Springfield Rd and Gentleman Dr. Set on 50 acres of private countryside, this exceptional custom modern farmhouse offers a rare combination of scale, craftsmanship, and lifestyle. The estate setting is anchored by a 20x40 in-ground pool, fire pit area, and sweeping views, creating a true outdoor retreat. A large covered porch, accessed directly from the kitchen and living room through oversized glass sliding doors, provides seamless indoor-outdoor living ideal for entertaining. Inside, the home features over 3,500 sf of finished living space on the main floor and close to 7,000 sf of total finished space. Modern finishes are complemented by warm rustic elements including reclaimed beams, barn doors, and expansive windows that flood the home with natural light. The massive kitchen and grand living room form the heart of the home, designed for gatherings both large and small. A walk-out basement adds further flexibility for family living and hosting.The layout includes a spacious primary suite, four additional bedrooms on the main and upper levels, plus two bedrooms in the lower level, along with large bathrooms throughout. A three-car garage and extensive storage enhance everyday functionality.The land offers outstanding versatility, with approximately 30 acres of workable farmland, 17 acres of forest, and 3 acres comprising the private estate grounds surrounding the home. This is a turnkey luxury farmhouse offering privacy, recreation, and agricultural value in one remarkable property. Please note that some of the interior photos have been virtually staged. (id:27476)

Property Highlights

MLS® Number
X12679442
Type
Agriculture
Community Name
Rural Southwest Middlesex
Land Size
2223.4 x 974.1 FT ; 2,252.17 x 1,009.73 x 2,223.37 x 974.14|50 - 100 acres
Parking Space Total
24

Building

Storeys
1.50
Square Footage
3500 - 5000 sqft
Bathrooms Total
4
Bedrooms Above Ground
5
Bedrooms Total
7
Exterior Finish
Wood, Stone
Fireplace Present
Yes
Basement Type
N/A (Finished)
Basement Features
Walk out
Building Heating Type
Not known
Heating Fuel
Propane
Building Cooling Type
Central air conditioning, Ventilation system

Utilities

Utility Sewer
Sanitary sewer

Location

Learn more about this property
Listing provided by:
A TEAM LONDON
MLS® number:
X12679442
Agent:
Nick Jaremko
*Indicates required field
Name is required
Email is required
Please enter a valid phone number (e.g., 416-111-1111).

Community Spotlight: Homes For sale in Your Neighborhood