Lot 50 Stella Street, Southwest Middlesex, Ontario N0L 1M0

Listed for:
$656,700
4 beds
3 baths
Listed 80 days ago
House for rent: Lot 50 Stella Street, Southwest Middlesex, Ontario N0L 1M0

View all 3 photos

About

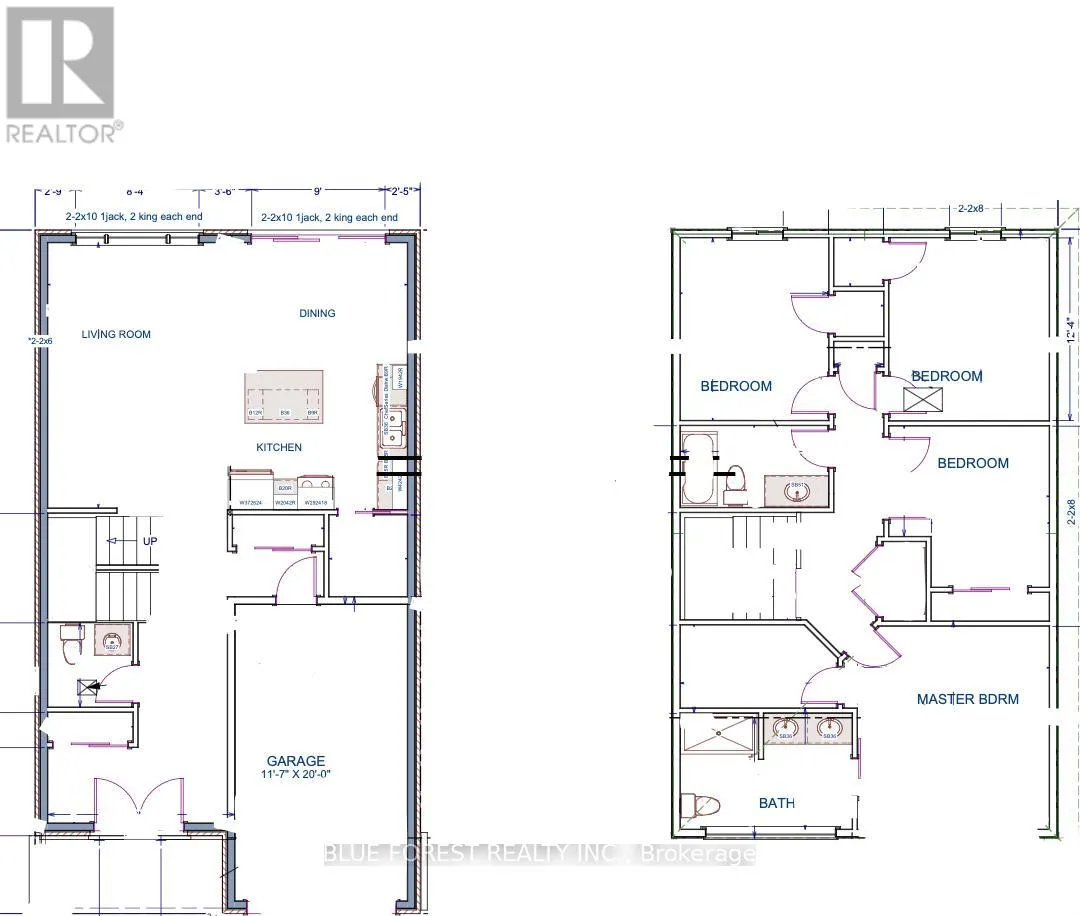
Cross Streets: Stella Ave. ** Directions: Off Stella Ave. Bakker Design & Build Inc. presents "The Abbey". This new build offers 1,946 sqft., and delivers style, space, and versatility across two floors. The open main floor layout features a large living room, a family-friendly dining space, and a kitchen with plenty of counter space and storage. Upstairs, four bedrooms provide flexibility for family, guests, or a home office, while the primary suite offers a private retreat with a 4-pc ensuite bath and walk-in closet. A full bath and dedicated laundry room on this floor add everyday convenience. The basement offers future living space with a rough-in for a three-piece bath, making this home as adaptable as it is inviting. TO BE BUILT! Other lots and designs are available. Price based on base lot, premiums extra. (id:27476)

Property Highlights

MLS® Number
X12824146
Type
Single Family
Community Name
Glencoe
Ownership Type
Freehold
Land Size
38 x 124 FT|under 1/2 acre
Parking Space Total
3

Building

Building Type
House
Storeys
2.00
Square Footage
1500 - 2000 sqft
Bathrooms Total
3
Bedrooms Above Ground
4
Bedrooms Total
4
Exterior Finish
Vinyl siding, Brick
Fireplace Present
No
Basement Type
Full (Unfinished)
Basement Features
Building Heating Type
Forced air
Heating Fuel
Natural gas
Building Cooling Type
Central air conditioning

Utilities

Water
Municipal water
Utility Sewer
Sanitary sewer

Location

Learn more about this property
Listing provided by:
BLUE FOREST REALTY INC.
MLS® number:
X12824146
Agent:
Klaud Czeslawski
*Indicates required field
Name is required
Email is required
Please enter a valid phone number (e.g., 416-111-1111).

Street Spotlight - For sale