285 Elizabeth Street, Southwest Middlesex, Ontario N0L 1M0

Listed for:
$779,900
4 beds
3 baths
Listed 5 days ago
House for rent: 285 Elizabeth Street, Southwest Middlesex, Ontario N0L 1M0

View all 23 photos

About

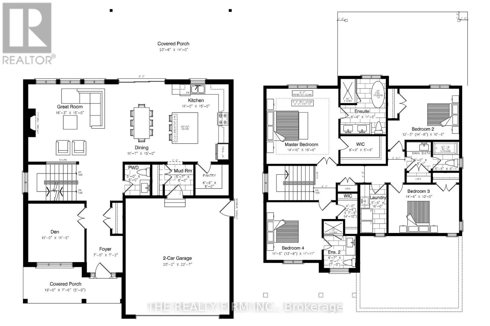
Cross Streets: John St & Elizabeth St. ** Directions: Head southwest on Glendon Dr/County Rd 14 toward Tait's Rd. Turn right onto Elizabeth St. Welcome to Glen Meadows Estates! Located in the heart of Glencoe, a growing family-friendly community just 20 minutes from Strathroy and 40 minutes from London. Developed by Turner Homes, a reputable and seasoned builder with a legacy dating back to 1973, we proudly present 38 distinctive lots, each offering an opportunity to craft your ideal living space. Introducing The Riverview, a signature creation of Turner Homes. This two-storey layout features 2,544 square feet of thoughtfully designed space. With 4 bedrooms and 3 bathrooms, this home offers ample room for family and guests. The exterior showcases a captivating blend of brick, stone, and Hardie board, complete with a covered porch that sets a welcoming tone.Step inside to find ceramic and hardwood flooring throughout, beginning with a den off the foyer. The open-concept main floor boasts a kitchen equipped with stone countertops, plenty of cabinets, a large island, and a walk-in pantry. The kitchen seamlessly flows into the dining room and overlooks the great room, which is highlighted by a fireplace and abundant natural light from numerous windows. A mudroom attached to the garage completes the main floor.Upstairs, discover three generously sized carpeted bedrooms, each with ample closet space, along with a 4-piece bathroom. The primary bedroom is a true retreat, featuring a large walk-in closet and a luxurious 5-piece ensuite bath with a glass-enclosed shower and double sinks.The lower level offers untapped potential with a full unfinished basement, inviting your personal touch to create a space tailored to your preferences and needs. Act now to ensure you don't miss the chance to transform your dreams into reality at Glen Meadows Estates! PLEASE NOTE: Photos are of the same model previously built and are for illustrative purposes only. PUBLIC OPEN HOUSES ARE HOSTED AT 285 KING STREET. (id:27476)

Property Highlights

MLS® Number
X12953830
Type
Single Family
Community Name
Glencoe
Ownership Type
Freehold
Land Size
20.2 x 52.3 M|under 1/2 acre
Parking Space Total
4

Building

Building Type
House
Storeys
2.00
Square Footage
2000 - 2500 sqft
Bathrooms Total
3
Bedrooms Above Ground
4
Bedrooms Total
4
Amenities
Fireplace(s) Park, Place of Worship, Schools
Exterior Finish
Stone, Wood
Fireplace Present
Yes
Basement Type
Full (Unfinished)
Basement Features
Building Heating Type
Forced air
Heating Fuel
Natural gas
Building Cooling Type
Central air conditioning

Utilities

Water
Municipal water
Utility Sewer
Sanitary sewer

Room Layout

Bathroom
Second level
Measurements not available
Laundry room
Second level
3.04 m x 1.67 m
Bedroom
Second level
4.06 m x 3.7 m
Bedroom
Second level
4.26 m x 3.3 m
Bathroom
Second level
Measurements not available
Bedroom
Second level
3.75 m x 3.3 m
Primary Bedroom
Second level
4.72 m x 4.52 m
Den
Main level
3.55 m x 3.35 m
Great room
Main level
5.38 m x 4.57 m
Dining room
Main level
3.17 m x 4.57 m
Kitchen
Main level
3.32 m x 4.57 m
Mud room
Main level
1.82 m x 1.72 m

Location

Learn more about this property
Listing provided by:
THE REALTY FIRM INC.
MLS® number:
X12953830
Agent:
Nick Davies
*Indicates required field
Name is required
Email is required
Please enter a valid phone number (e.g., 416-111-1111).