Lot 61 Woodland Walk, Southwold, Ontario N5P 3T2

Listed for:
$749,900
3 beds
3 baths
Listed Today
House for rent: Lot 61 Woodland Walk, Southwold, Ontario N5P 3T2

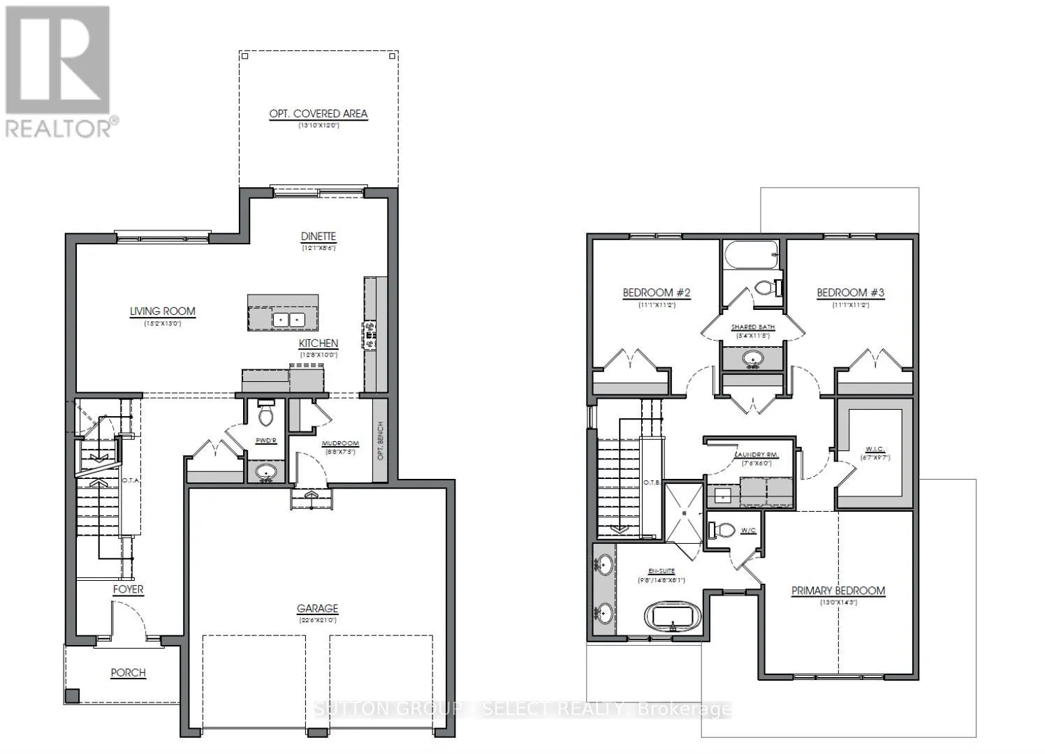
View all 2 photos

About

Cross Streets: WOODLAND WALK AND ROYAL CR. ** Directions: Highway 4 (Sunset Rd) right on Talbotville Gore Road, Right on Optimist Dr, Right on Woodland Walk. NEW INCENTIVE FOR THIS LOT ONLY* 20,000.00 DISCOUNT ( included in list price ) and Now with the Qualifying GST/HST rebate - the closing price is just $749,900 ( not including optional upgrades ). Pricing is subject to terms, conditions, and qualifications for rebates, and may be subject to change without notice. Welcome to the Burley model, offering 1,912 square feet of thoughtfully designed living space that perfectly blends style and functionality. This spacious home features 3 bedrooms and 2.5 bathrooms, including a massive 5-piece ensuite in the primary bedroom, complete with a walk-in closet for ultimate convenience. The two additional bedrooms are connected by a practical semi-ensuite, ideal for family living.The main level is enhanced by elegant oak stairs with spindles, while the kitchen and bathrooms showcase premium fixtures-all included with no upgrade costs. Buyers will also have the opportunity to choose between granite or quartz countertops, allowing for a personalized touch. A custom stone mantle fireplace allowance adds warmth and character to the living space, creating the perfect focal point for relaxing or entertaining. Located in the growing community of Talbotville, this home offers the perfect balance of peaceful living and accessibility-just 15 minutes to Lambeth and 15 minutes to the beautiful beaches of Port Stanley. Enjoy close proximity to everyday amenities while being situated in the highly desirable Southwold Public School catchment. This is modern living, exceptional value, and an unbeatable location-all in one. (id:27476)

Property Highlights

MLS® Number
X13006360
Type
Single Family
Community Name
Rural Southwold
Ownership Type
Freehold
Land Size
50 x 121 FT
Parking Space Total
4

Building

Building Type
House
Storeys
2.00
Square Footage
1500 - 2000 sqft
Bathrooms Total
3
Bedrooms Above Ground
3
Bedrooms Total
3
Amenities
Beach, Park
Exterior Finish
Hardboard, Stone
Fireplace Present
No
Basement Type
Full (Unfinished)
Basement Features
Building Heating Type
Forced air
Heating Fuel
Natural gas
Building Cooling Type
Central air conditioning

Utilities

Water
Municipal water
Utility Sewer
Sanitary sewer

Room Layout

Primary Bedroom
Second level
3.96 m x 4.36 m
Bedroom
Second level
3.38 m x 3.41 m
Bedroom
Second level
3.38 m x 3.41 m
Laundry room
Second level
2.31 m x 1.83 m
Kitchen
Main level
3.9 m x 3.05 m
Mud room
Main level
2.62 m x 2.99 m
Dining room
Main level
3.68 m x 2.62 m
Living room
Main level
4.63 m x 3.96 m

Location

Learn more about this property
Listing provided by:
SUTTON GROUP - SELECT REALTY
MLS® number:
X13006360
Agent:
Jessica Dermo
*Indicates required field
Name is required
Email is required
Please enter a valid phone number (e.g., 416-111-1111).

Street Spotlight - For sale