Unit 2/3/4 - 1285 Bayfield Street N, Springwater, Ontario L9X 0P1

Listed for:
$5,600
0 beds
2 baths
Listed 34 days ago
Unit 2/3/4 - 1285 Bayfield Street N, Springwater, Ontario L9X 0P1

View all 10 photos

Learn more about this property
Listing provided by:
CENTURY 21 B.J. ROTH REALTY LTD.
MLS® number:
S12244462
Agent:
Lauren Tomlinson
*Indicates required field
Name is required
Email is required
Please enter a valid phone number (e.g., 416-111-1111).

About

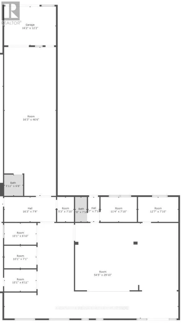
Just South of Highway 26 & 27 Split INCENTIVE: One month gross rent free (based on terms and conditions). Located in the growing municipality of Springwater, 1285 Bayfield Street North offers 2,960 SF of flexible commercial space available for lease. Providing the ability for a variety of business needs, making it ideal for retail, storage, or other general commercial uses. Positioned just minutes from Highway 400 with excellent visibility along Bayfield Street, the property benefits from high traffic and accessibility. Leases will be structured as gross leases, with the Tenant responsible only for their own insurance. This is a great opportunity to establish or expand your business in a high-growth area with strong long-term potential. (id:27476)

Property Highlights

MLS® Number
S12244462
Type
Retail
Community Name
Midhurst
Land Size
197 x 297 FT

Building

Square Footage
2960 sqft
Bathrooms Total
2
Amenities
Highway
Fireplace Present
No
Basement Type
Basement Features
Building Heating Type
Forced air
Heating Fuel
Natural gas
Building Cooling Type
Partially air conditioned

Utilities

Water
Municipal water
Utility Sewer
Septic System

Location

Street Spotlight - For lease