1509 Snow Valley Road, Springwater, Ontario L9X 1K3

Listed for:
$3,950,000
0 beds
4 baths
Listed 118 days ago
Warehouse for rent: 1509 Snow Valley Road, Springwater, Ontario L9X 1K3

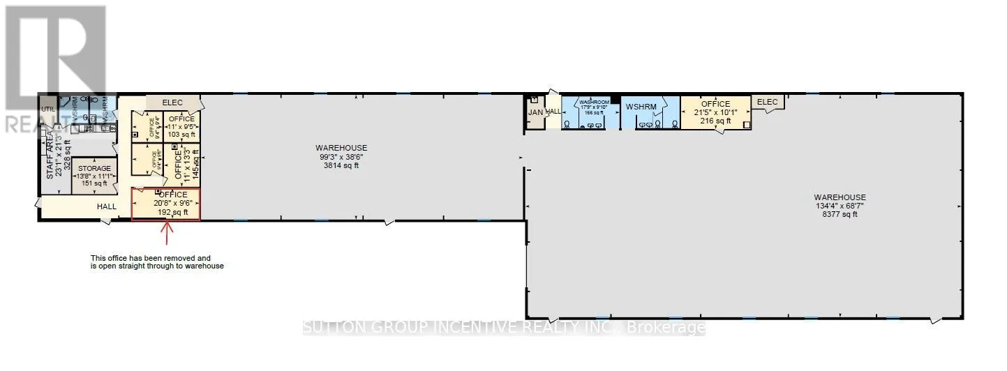
View all 33 photos

Learn more about this property
Listing provided by:
SUTTON GROUP INCENTIVE REALTY INC.
MLS® number:
S12400098
Agent:
Shannon Macintyre
*Indicates required field
Name is required
Email is required
Please enter a valid phone number (e.g., 416-111-1111).

About

Cross Streets: Wilson Road. ** Directions: Located on S/S of Snow Valley Road, just east of Willson Road. Single Tenant Industrial building in Snow Valley / Minesing. 15,450 SF total building (approx. 12,214 SF warehouse + 3,236 SF office) on just over 1 acre. Warehouse has two large bay areas - 99'3"x38'6" and 134'4"x68'7", shipping office, multi-stall washrooms, 3 electrical panels (600/400/200), 10 ceiling fans, natural gas radiant heating, all new LED lighting, 2 drive in doors, 1 dock level door (all 12'x12') and 19.5' clear, 22.1' to pitch. Newly finished office area with 6 private offices, 2 washrooms, and kitchen / lunchroom. Currently has a strong tenant in place (just over one year remaining on 5 year term - 10/31/2026 expiry date - triple net carefree to the landlord). Lease agreement and March 2021 Phase 1 ESA available upon execution of CA and accepted APS. M1-2 zoning allows for most industrial uses including Manufacturing, Assembly, R&D, Warehousing, Storage and other accessory uses. (id:27476)

Property Highlights

MLS® Number
S12400098
Type
Industrial
Community Name
Midhurst
Land Size
1.008 ac
Parking Space Total
15

Building

Building Type
Warehouse
Square Footage
15450 sqft
Bathrooms Total
4
Amenities
Ski hill
Fireplace Present
No
Basement Type
Basement Features
Building Heating Type
Radiant heat
Heating Fuel
Building Cooling Type
None

Utilities

Water
Drilled Well
Utility Sewer
Septic System

Location