1 Morrison Place, Springwater, Ontario L9X 2A6

Listed for:
$2,699,900
5 beds
6 baths
Listed 80 days ago
House for rent: 1 Morrison Place, Springwater, Ontario L9X 2A6

View all 46 photos

About

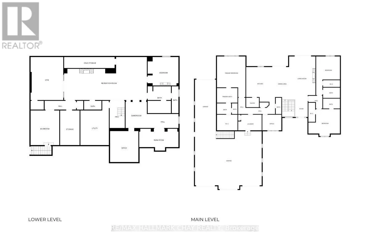
Cross Streets: Wilson to Seadon. ** Directions: Byers to Glenna to Morrison. PRESENTING luxury, lifestyle, privacy, and an exquisite location-all embodied in this stunning custom executive residence in Springwater's prestigious, family centric Cameron Estates. Set on a premium half acre corner lot, this exceptional bungalow offers 5,700+ sq.ft. of finished living space and an oversized 133'x187' private backyard framed by mature cedars and one of the community's largest reclaimed greenspaces. With over $550K in recent updates/upgrades, this home delivers an elevated living experience inside & out. The main level showcases a designer Chef's kitchen with expansive prep space, oversized island with integrated beverage centre, premium Jenn Air 6 burner + griddle range, dual ovens, Dacor fridge/freezer, and walk in pantry with prep sink. Great room impresses with a striking 63" floor to ceiling gas fireplace, vaulted ceilings, and wall to wall views of the private rear yard. Additional main floor features include a dedicated home office, guest 2 pc bath, spacious laundry/mudroom, and three generous bedrooms-each with its own ensuite and walk in closet. The full, finished lower level doubles the living space and continues the home's refined neutral palette. Purpose built for relaxation and entertainment, this level features a spa inspired steam room, home gym with heated padded flooring, guest suite, custom four queen designer bunk room, rec room with linear fireplace and built ins, games room, home bar, office, soundproof gaming room, and additional 2 pc bath. Energy efficient water heated flooring runs throughout. Smart home conveniences include whole home audio (14 zones, 7 Sonos amps, 37 speakers), remote electric blinds, 7 camera security system, wall mounted TVs, and Bell Fibre internet. Car enthusiasts will appreciate the oversized 1,600+ sqft heated 5 vehicle garage, complete with epoxy floors, storage, EV ready wiring, built in audio/TV, pressure washer system, direct basement access with mud room, and rear garage door to the backyard. (id:27476)

Property Highlights

MLS® Number
S12675724
Type
Single Family
Community Name
Snow Valley
Ownership Type
Freehold
Land Size
133.9 x 187 FT
Parking Space Total
11

Building

Building Type
House
Storeys
1.00
Square Footage
2500 - 3000 sqft
Bathrooms Total
6
Bedrooms Above Ground
3
Bedrooms Total
5
Amenities
Fireplace(s) Ski area, Park
Exterior Finish
Brick, Stone
Fireplace Present
Yes
Basement Type
Full (Finished)
Basement Features
Building Heating Type
Forced air
Heating Fuel
Natural gas
Building Cooling Type
Central air conditioning, Air exchanger

Utilities

Water
Municipal water
Utility Sewer
Sanitary sewer

Room Layout

Bedroom 4
Lower level
3.1 m x 5.3 m
Bedroom 5
Lower level
3.6 m x 4.1 m
Bathroom
Lower level
1.2 m x 2.4 m
Bathroom
Lower level
3.7 m x 4.2 m
Recreational, Games room
Lower level
4.2 m x 7.3 m
Recreational, Games room
Lower level
2.2 m x 4.2 m
Exercise room
Lower level
4.6 m x 6 m
Office
Lower level
3.6 m x 4.1 m
Games room
Lower level
3.8 m x 4.4 m
Games room
Lower level
3.1 m x 3.9 m
Other
Lower level
2.6 m x 4.8 m
Other
Lower level
4 m x 4.8 m
Utility room
Lower level
3.9 m x 4.7 m
Cold room
Lower level
1.6 m x 6.8 m
Living room
Main level
4.2 m x 4.5 m
Bedroom 2
Main level
3.9 m x 4.1 m
Dining room
Main level
5.1 m x 2.5 m
Bathroom
Main level
1.6 m x 3 m
Bedroom 3
Main level
4.5 m x 5.4 m
Bathroom
Main level
1.6 m x 2.9 m
Kitchen
Main level
4.1 m x 5.1 m
Pantry
Main level
1.5 m x 1.9 m
Bathroom
Main level
0.9 m x 2.6 m
Office
Main level
2.8 m x 3.3 m
Laundry room
Main level
2.7 m x 3.9 m
Bedroom
Main level
4.8 m x 6.9 m
Bathroom
Main level
3.5 m x 4.2 m
Other
Main level
2.7 m x 3.4 m

Location

Learn more about this property
Listing provided by:
RE/MAX HALLMARK CHAY REALTY
MLS® number:
S12675724
Agent:
Scott Woolsey
*Indicates required field
Name is required
Email is required
Please enter a valid phone number (e.g., 416-111-1111).

Community Spotlight: Homes For sale in Your Neighborhood