Part 3, Plan 51r-45070 Part Of Lot 19 Concession 2 Road, Springwater, Ontario L0L 1X0

Listed for:
$1,470,000
2 beds
2 baths
Listed 15 days ago
House for rent: Part 3, Plan 51r-45070 Part Of Lot 19 Concession 2 Road, Springwater, Ontario L0L 1X0

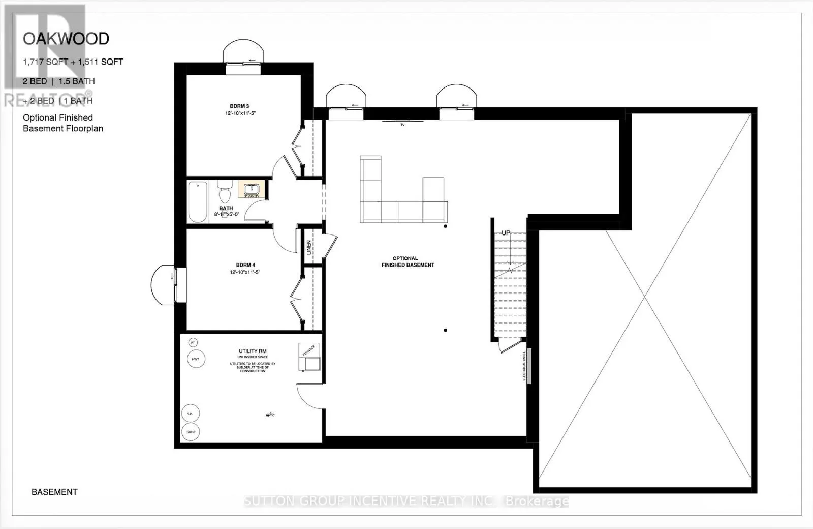
View all 4 photos

About

Cross Streets: Pooles and Old Second Road South. ** Directions: Pooles Road South on Old Second to Sign. Considering a spring build? The planning process starts now...exceptional opportunity to build your custom estate home on one of four premium rural ravine lots in the highly desirable community of Midhurst. Opportunities of this calibre are rare, offering the perfect blend of privacy, space, and proximity to Barrie, schools, and everyday amenities. Lots feature ravine settings backing onto Environmental Protection (EP) lands, providing enhanced privacy and a natural backdrop.These listings are offered as design-build opportunities with a reputable local builder with over 30 years of experience. The builder has been granted written authorization by the landowner to market and advertise proposed homes for sale. Any agreement of purchase and sale will be conditional upon the builder successfully securing the Buyer's selected lot. Conceptual floor plans and renderings are provided for illustrative purposes and have been professionally priced using standard luxury builder finish selections. Renderings may depict optional or upgraded exterior features that are not included in the base price. Buyers may select from the builder's extensive portfolio of thoughtfully designed homes, customize an existing plan, or bring their own plans to be reviewed and priced. The builder offers a fully integrated design experience, including an in-house BCIN-qualified architectural designer and an in-house interior designer, ensuring a seamless process from concept to completion. Model homes are available for viewing, allowing buyers to experience the builder's construction quality, finishes, and craftsmanship first hand. Lots may also be purchased separately, subject to availability. A rare chance to secure a custom home in one of Simcoe County's most coveted communities-where design flexibility, proven craftsmanship, and location come together. Taxes not yet assessed. Municipal address not yet assigned. (id:27476)

Property Highlights

MLS® Number
S12741526
Type
Single Family
Community Name
Midhurst
Ownership Type
Freehold
Land Size
98.4 x 229.7 FT
Parking Space Total
9

Building

Building Type
House
Storeys
1.00
Square Footage
1500 - 2000 sqft
Bathrooms Total
2
Bedrooms Above Ground
2
Bedrooms Total
2
Fireplace Present
No
Basement Type
N/A (Unfinished)
Basement Features
Building Heating Type
Forced air
Heating Fuel
Propane
Building Cooling Type
Central air conditioning

Utilities

Utility Sewer
Septic System

Room Layout

Primary Bedroom
Main level
4.42 m x 3.91 m
Bedroom 2
Main level
3.66 m x 3.51 m
Great room
Main level
6.25 m x 3.81 m
Dining room
Main level
6.25 m x 3.53 m
Kitchen
Main level
5.36 m x 3.96 m
Foyer
Main level
2.13 m x 3.96 m
Other
Main level
2.49 m x 3.81 m

Location

Learn more about this property
Listing provided by:
SUTTON GROUP INCENTIVE REALTY INC.
MLS® number:
S12741526
Agent:
Norm Franks
*Indicates required field
Name is required
Email is required
Please enter a valid phone number (e.g., 416-111-1111).