A - 30 Spence Avenue, Springwater, Ontario L0L 1X1

Listed for:
$18
0 beds
0 baths
Listed 41 days ago
A - 30 Spence Avenue, Springwater, Ontario L0L 1X1

View all 5 photos

About

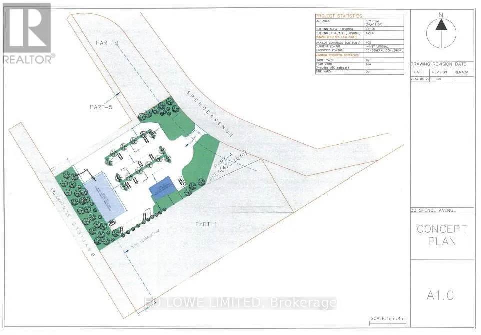
Hwy 26 & Spence Ave 2000 s.f. inside a brand new 8500 sf building to be built for Lease with great exposure to Bayfield St N (Hwy 26) just outside of Barrie before the split of 26/27 to Collingwood or Elmvale/Midhurst. General Commercial CG-37 Zoning permitting retail/commercial/office uses. Ideal for Nursery School/daycare with outdoor play area possible, take-out restaurant, fitness studio or medical clinic, professional office, destination retail store or personal service shop and many more. See linked feature sheet for zoning. Can be demised 1000 s.f. - 8500s.f. $18.00/s.f./yr & est. TMI @ $8.00/s.f./yr. (id:27476)

Property Highlights

MLS® Number
S12801298
Type
Retail
Community Name
Midhurst
Land Size
192 x 387 FT

Building

Square Footage
2000 sqft
Fireplace Present
No
Basement Type
Basement Features
Building Heating Type
Forced air
Heating Fuel
Natural gas
Building Cooling Type
Fully air conditioned

Utilities

Water
Municipal water
Utility Sewer
Septic System

Location

Learn more about this property
Listing provided by:
ED LOWE LIMITED
MLS® number:
S12801298
Agent:
Bill Greenfield
*Indicates required field
Name is required
Email is required
Please enter a valid phone number (e.g., 416-111-1111).