Part 4, Plan 51r-45070 Part Of Lot 19 Concession 2 Road, Springwater, Ontario L0L 1X0

Listed for:
$1,664,998
3 beds
3 baths
Listed 37 days ago
House for rent: Part 4, Plan 51r-45070 Part Of Lot 19 Concession 2 Road, Springwater, Ontario L0L 1X0

View all 25 photos

About

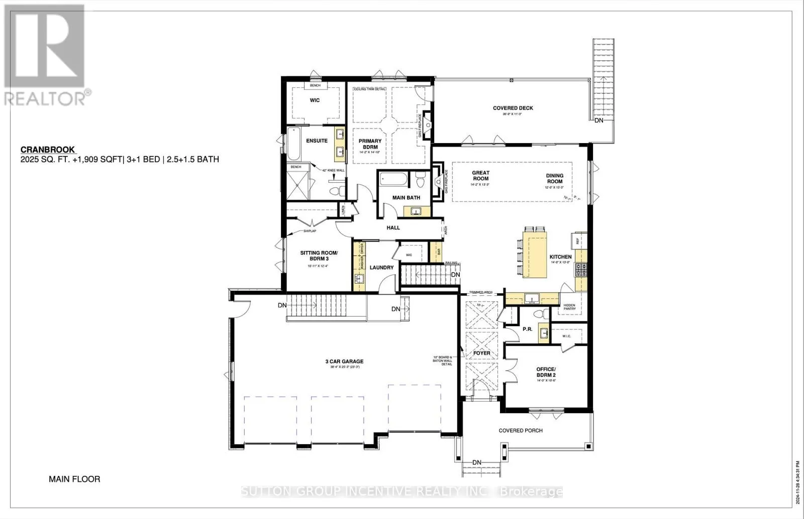
Cross Streets: Pooles and Old Second Road South. ** Directions: Pooles Road, South on Old SecondTo Sign. An exceptional opportunity to build your custom estate home on one of three premium rural ravine lots in the highly desirable community of Midhurst. Opportunities of this calibre are rare, offering the perfect blend of privacy, space, and convenience, just minutes to Barrie, schools, and everyday amenities. Each lot features a ravine setting backing onto Environmental Protection (EP) lands, providing enhanced privacy and a beautiful natural backdrop.These properties are offered as design-build opportunities with a reputable local builder with over 30 years of experience. The builder has written authorization from the landowner to market and advertise proposed homes for sale, and any agreement of purchase and sale will be conditional upon the builder successfully securing the Buyer's selected lot. Conceptual floorplans and renderings are provided for illustrative purposes and have been professionally priced using standard luxury builder finish selections. Renderings may depict optional or upgraded features not included in the base price. Buyers may select from the builder's portfolio of homes, customize an existing plan, or bring their own plans to be reviewed and priced. A fully integrated design process is available, including an in-house BCIN-qualified architectural designer and interior designer, ensuring a seamless experience from concept to completion. Model homes are available for viewing. Lots may also be purchased separately, subject to availability. Taxes not yet assessed. Municipal address not yet assigned.If you've ever considered building, this may be the right time to start the conversation. The custom home process often begins months before construction, and exploring your options now can make all the difference. Whether you're thinking about a spring build, planning for the future, or simply curious what's possible, feel free to reach out to see if a custom build could be the right fit for you - now or sometime down the road. (id:27476)

Property Highlights

MLS® Number
S12878652
Type
Single Family
Community Name
Midhurst
Ownership Type
Freehold
Land Size
98.4 x 229.7 FT
Parking Space Total
9

Building

Building Type
House
Storeys
1.00
Square Footage
2000 - 2500 sqft
Bathrooms Total
3
Bedrooms Above Ground
3
Bedrooms Total
3
Fireplace Present
No
Basement Type
N/A (Unfinished)
Basement Features
Building Heating Type
Forced air
Heating Fuel
Propane
Building Cooling Type
Central air conditioning

Utilities

Utility Sewer
Septic System

Room Layout

Primary Bedroom
Main level
4.32 m x 4.52 m
Bedroom 3
Main level
3.33 m x 3.76 m
Bedroom 2
Main level
4.27 m x 3.2 m
Great room
Main level
4.32 m x 4.04 m
Dining room
Main level
3.66 m x 4.04 m
Kitchen
Main level
4.27 m x 3.96 m

Location

Learn more about this property
Listing provided by:
SUTTON GROUP INCENTIVE REALTY INC.
MLS® number:
S12878652
Agent:
Norm Franks
*Indicates required field
Name is required
Email is required
Please enter a valid phone number (e.g., 416-111-1111).