162 Ontario Street W, St. Catharines, Ontario L2R 5K5

Listed for:
$50,000
0 beds
0 baths
Listed 85 days ago
162 Ontario Street W, St. Catharines, Ontario L2R 5K5

View all 2 photos

About

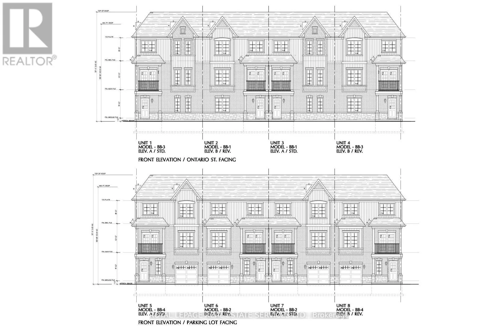
Cross Streets: Ontario St & Welland Ave. ** Directions: Ontario St And Welland Ave. Vacant lot beside this lot(listed) to be sold in conjunction with this lot. Shovel-Ready Development Opportunity for 8 Townhouses! An exceptional investment property with development land in a central location. This offering includes vacant land and is situated directly across the street from a $145 million senior housing development. The lot next door is to be sold in conjunction with this land, providing a combined lot dimension of approximately 107.32 x 131.14. A detailed package is available upon request. Agent and Buyer to verify all measurements themselves. Vacant lot beside this lot(listed) to be sold in conjunction with this lot. The Two Lot's Are Separately Deeded. (id:27476)

Property Highlights

MLS® Number
X12274155
Type
Vacant Land
Community Name
451 - Downtown
Land Size
44.91 x 130.55 FT ; 44.91 x130.55 x 0.21 x 45.49 x 131.42|under 1/2 acre

Building

Fireplace Present
No
Basement Type
Basement Features
Building Heating Type
Heating Fuel
Building Cooling Type

Utilities

Water
Municipal water
Utility Sewer
Sanitary sewer

Location

Learn more about this property
Listing provided by:
ROYAL LEPAGE REAL ESTATE SERVICES LTD.
MLS® number:
X12274155
Agent:
Robert Citrullo
*Indicates required field
Name is required
Email is required
Please enter a valid phone number (e.g., 416-111-1111).