162a Ontario Street, St. Catharines, Ontario L2R 5K6

Listed for:
$1,250,000
0 beds
0 baths
Listed 153 days ago
162a Ontario Street, St. Catharines, Ontario L2R 5K6

View all 2 photos

About

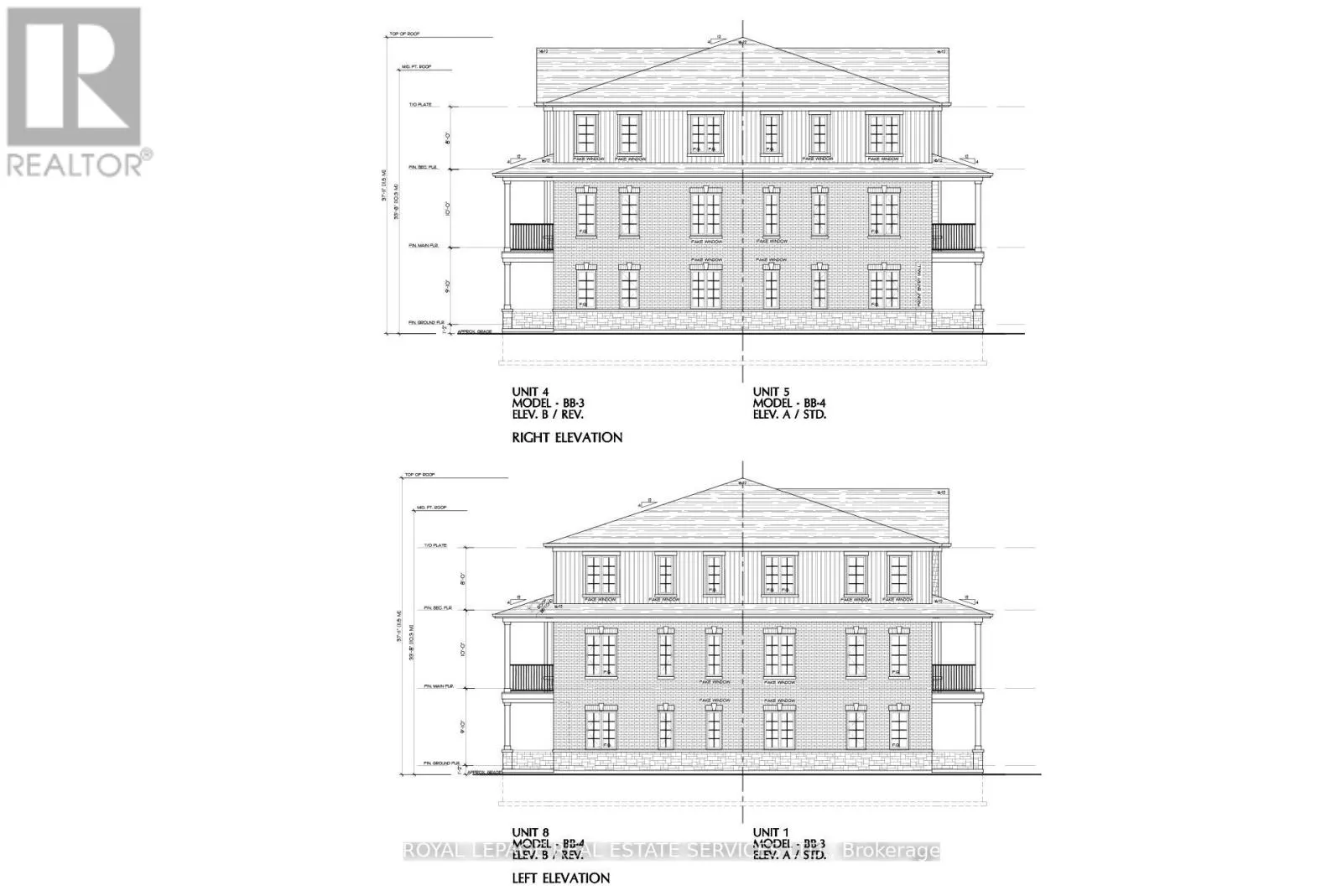
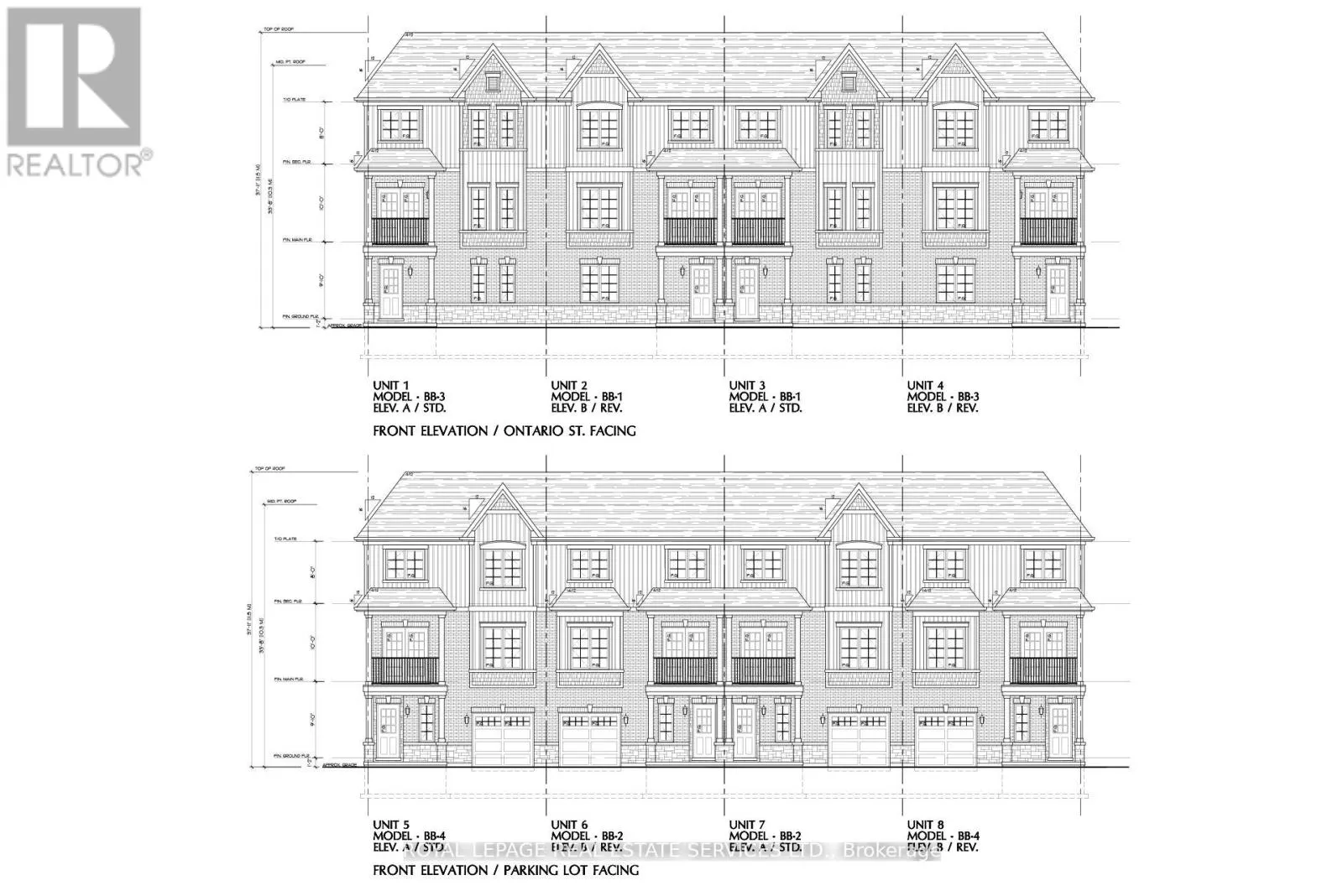
Ontario St And Welland Ave Shovel-Ready Development Opportunity for 8 Townhouses! An exceptional investment property with development land in a central location. This vacant land is situated directly across the street from a $145 million senior housing development. The vacant lot next door is to be sold in conjunction with this property, providing a combined lot dimension of approximately 107.32 x 131.14. A detailed package is available upon request. Agent and Buyer to verify all measurements themselves. All the hard work is done! Vacant lot beside this(listed as well) to be sold in conjunction with this property. The Two Lot's Are Separately Deeded. **EXTRAS** Site plan, servicing plan, floor plans, grade plan, exterior rendering are all available (id:27476)

Property Highlights

MLS® Number
X12274216
Type
Vacant Land
Community Name
451 - Downtown
Land Size
62.42 x 131.42 FT ; 62.42ft x 131.42ft x 58.39ft x 131.80ft|under 1/2 acre
Parking Space Total
4

Building

Fireplace Present
No
Basement Type
Basement Features
Building Heating Type
Heating Fuel
Building Cooling Type

Utilities

Water
Municipal water
Utility Sewer
Sanitary sewer

Location

Learn more about this property
Listing provided by:
ROYAL LEPAGE REAL ESTATE SERVICES LTD.
MLS® number:
X12274216
Agent:
Robert Citrullo
*Indicates required field
Name is required
Email is required
Please enter a valid phone number (e.g., 416-111-1111).