1287 Third Street, St. Catharines, Ontario L2R 6P9

Listed for:
$989,900
3 beds
2 baths
Listed 71 days ago
House for rent: 1287 Third Street, St. Catharines, Ontario L2R 6P9

View all 47 photos

Learn more about this property
Listing provided by:
ROYAL LEPAGE NRC REALTY
MLS® number:
X12316369
Agent:
Carol Lotz
*Indicates required field
Name is required
Email is required
Please enter a valid phone number (e.g., 416-111-1111).

About

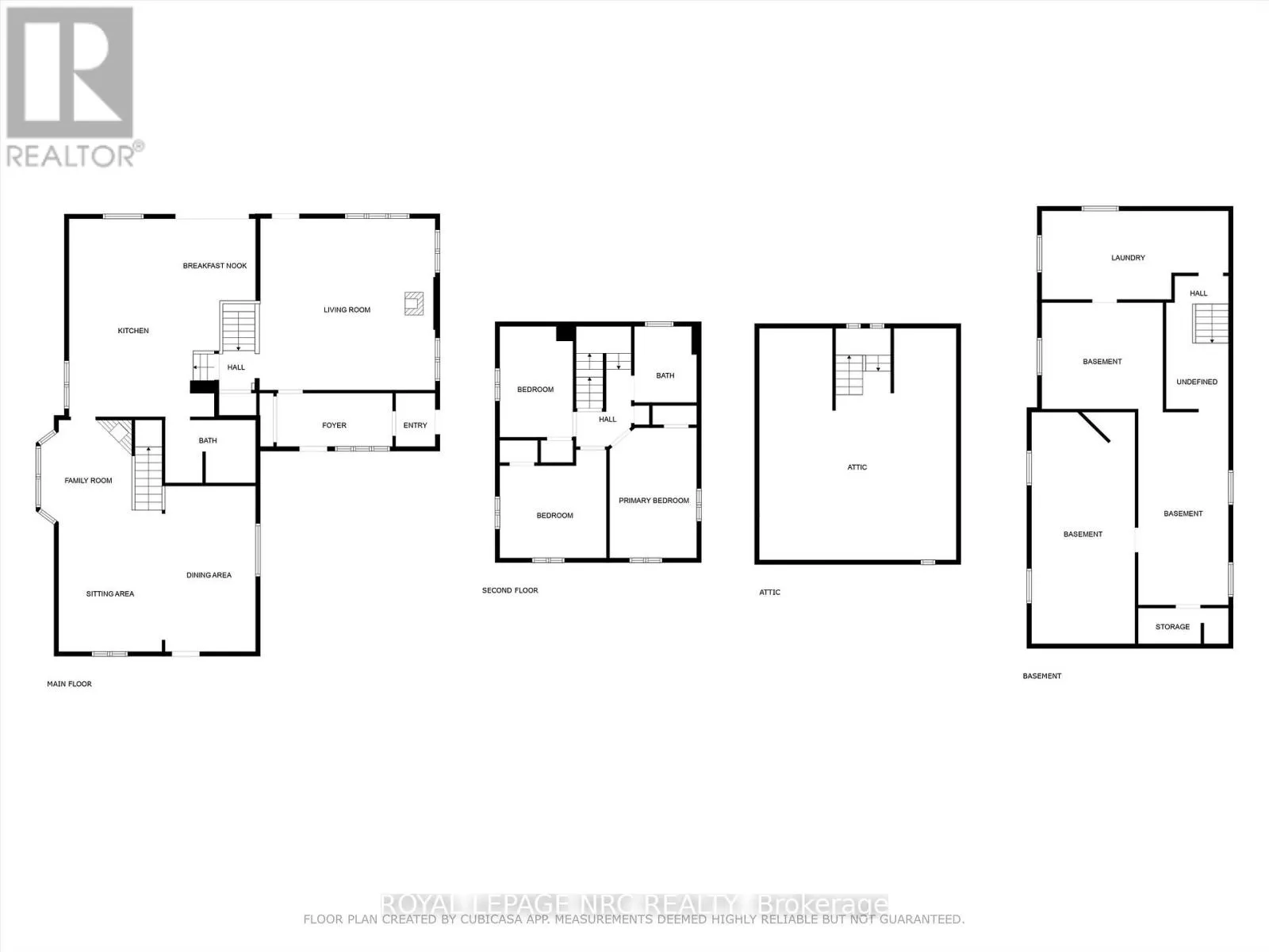
Cross Streets: Main Street. ** Directions: QEW towards Toronto, Take exit 49 for North Service Rd., towards Third Street, Turn right onto Third Street Louth. Country Living but on the Fringe of the City. This attractive century home has the best of both worlds. Situated on a paved road close to amenities yet far enough from the hustle & bustle. This eye catching 2.5 storey home has a lovely front veranda at the front door & a courtyard entry leading to the owners' side entrance which has a large mud room for coats & shoes. Walk in & enter into the rear addition which was built in 1991. This family room/kitchen area is where friends & family choose to relax & relate. The kitchen is quite large & has many features such as an island with a veggie sink, Quartz counters, vaulted ceiling, 4 skylights, built-in china cabinet & 2 gas stoves/ovens. Perfect for the person who loves to cook for big family gatherings. The kitchen overlooks the massive family room designed with vaulted ceiling with 4 skylights, a gas fireplace, wood ceilings & walls for a spacious yet cozy feel. Main floor also offers a 3 piece bathroom, formal dining and living rooms plus a sitting area next to the bay window & another gas fireplace. Upstairs are 3 bedrooms, a bathroom with a jet tub and a walk up staircase to the 3rd level and an undeveloped attic. A future finished room in the attic would measure approximately 16' x 14' and could make a beautiful room for a bedroom or study space. Some notable features of the home are: 8 skylights, 2016 roof shingles (Timberline), backyard garden shed, drywalled garage with high ceiling & interior that measures approx. 23' X 21'. The property is nicely landscaped and measures 100' x 164'. Set back off the road , the concrete driveway offers lots of parking for 6 vehicles. Make this your home and experience life on the edge of the city with the convenience of being a short distance to shopping, hospital, Hwy access, Green Ribbon Trail, Port Dalhousie shops & beach. (id:27476)

Property Highlights

MLS® Number
X12316369
Type
Single Family
Community Name
440 - Rural Port
Ownership Type
Freehold
Land Size
100 x 164 FT|under 1/2 acre
Parking Space Total
8

Building

Building Type
House
Storeys
2.50
Square Footage
2000 - 2500 sqft
Bathrooms Total
2
Bedrooms Above Ground
3
Bedrooms Total
3
Amenities
Fireplace(s) Place of Worship
Exterior Finish
Aluminum siding
Fireplace Present
Yes
Basement Type
Partial (Partially finished)
Basement Features
Building Heating Type
Forced air
Heating Fuel
Natural gas
Building Cooling Type
Central air conditioning

Utilities

Water
Cistern
Utility Sewer
Septic System

Room Layout

Bedroom
Second level
3.655 m x 2.489 m
Bedroom 2
Second level
3.073 m x 3.58 m
Bedroom 3
Second level
2.776 m x 4.358 m
Bathroom
Second level
2.504 m x 1.932 m
Laundry room
Basement
5.842 m x 2.6416 m
Kitchen
Main level
6.562 m x 6.162 m
Sitting room
Main level
3.525 m x 2.968 m
Family room
Main level
5.735 m x 5.709 m
Dining room
Main level
5.455 m x 2.916 m
Living room
Main level
4.556 m x 3.439 m
Bathroom
Main level
2.92 m x 1.947 m
Mud room
Main level
3.886 m x 1.6246 m

Location