1008 - 35 Towering Heights Boulevard, St. Catharines, Ontario L2T 3G8

Listed for:
$369,900
2 beds
1 baths
Listed 63 days ago
Apartment for rent: 1008 - 35 Towering Heights Boulevard, St. Catharines, Ontario L2T 3G8

View all 46 photos

Learn more about this property
Listing provided by:
BOLDT REALTY INC., BROKERAGE
MLS® number:
X12323945
Agent:
Debbie Page
*Indicates required field
Name is required
Email is required
Please enter a valid phone number (e.g., 416-111-1111).

About

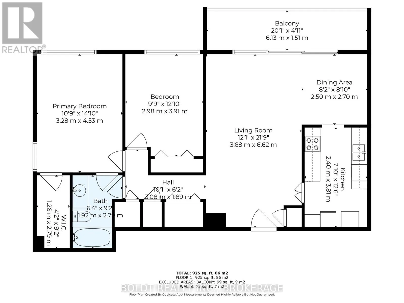
Cross Streets: Glen Morris Drive. ** Directions: Glenridge Ave to Glen Morris Dr to Towering Heights Blvd. Carefree Centennial Tower living awaits at 35 Towering Heights! Perched on the tenth floor, this freshly painted 2 bedroom end unit suite offers a large balcony and the perfect blend of morning sunrises and evening sunsets. With a north-facing view, you'll avoid the harsh midday heat, keeping the unit nice and cool. The updated kitchen includes a large pantry, appliance garage, and a dishwasher. The bright, spacious living and dining areas feature gleaming parquet hardwood floors throughout and has a newer air conditioning unit. The large primary bedroom boasts a walk-in closet and ensuite privilege to a nicely updated bathroom, and the second bedroom is also generously sized. The building offers top-notch amenities: an indoor saltwater pool, sauna, exercise room, party room, sun terrace, BBQ area, and more. Parking is available for $20/month outside and $50/month inside (with a waiting list for assigned spots inside). The maintenance fee covers heat, hydro, water, a storage locker, building maintenance, and insurance. Plus, it's close to public transit, shopping, highway access, and Brock University. Pet friendly & move-in ready building! (id:27476)

Property Highlights

MLS® Number
X12323945
Type
Single Family
Community Name
461 - Glendale/Glenridge
Maintenance Fee
798.65
Ownership Type
Condominium/Strata

Building

Building Type
Apartment
Square Footage
900 - 999 sqft
Bathrooms Total
1
Bedrooms Above Ground
2
Bedrooms Total
2
Amenities
Storage - Locker
Exterior Finish
Stucco
Fireplace Present
No
Basement Type
None
Basement Features
Building Heating Type
Radiant heat
Heating Fuel
Natural gas
Building Cooling Type
Wall unit

Location