33 - 13 Lakeside Drive, St. Catharines, Ontario L2M 1P3

Listed for:
$724,900
2 beds
3 baths
Listed 56 days ago
Row / Townhouse for rent: 33 - 13 Lakeside Drive, St. Catharines, Ontario L2M 1P3

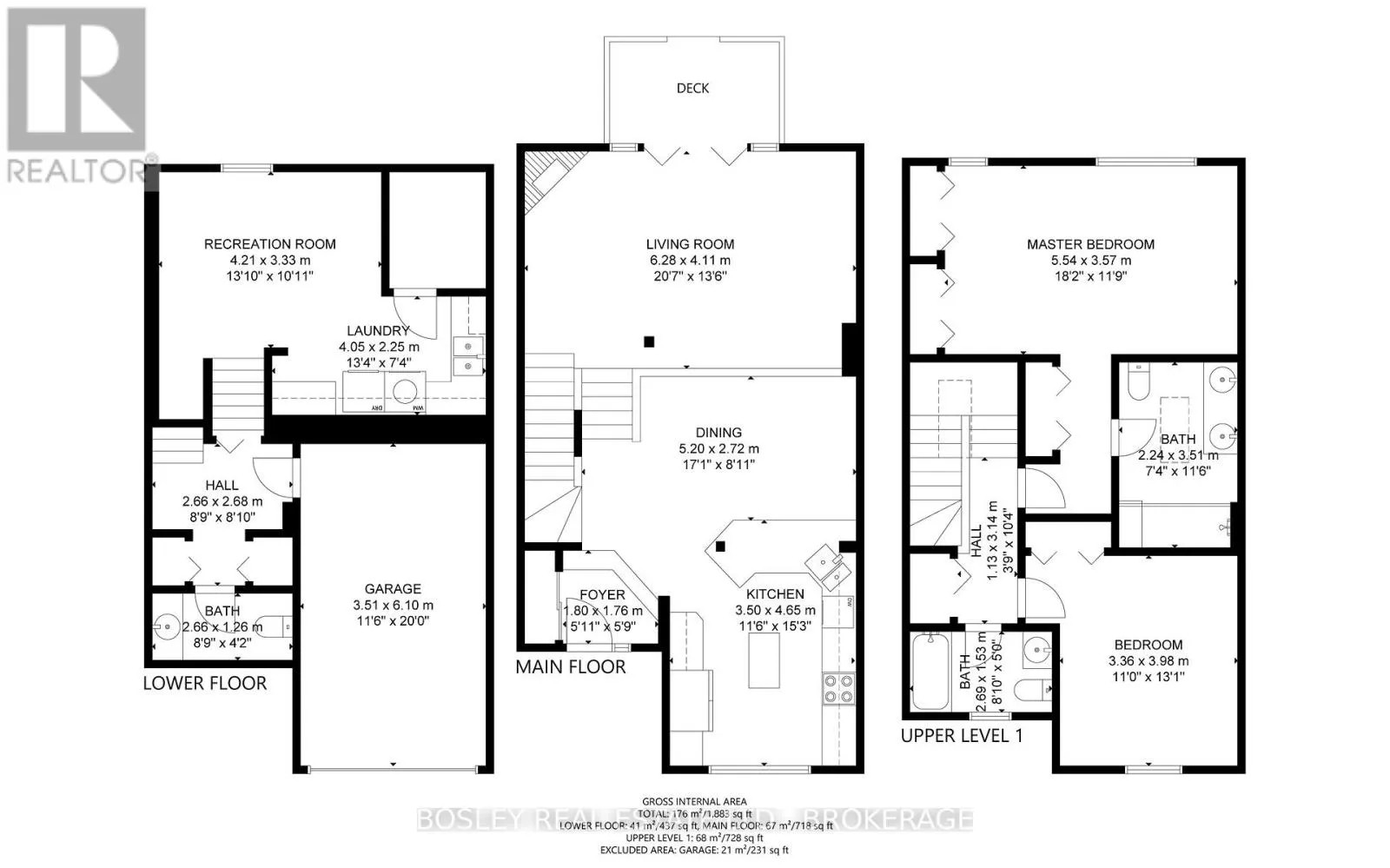
View all 31 photos

Learn more about this property
Listing provided by:
BOSLEY REAL ESTATE LTD., BROKERAGE
MLS® number:
X12390425
Agent:
Claire Burden
*Indicates required field
Name is required
Email is required
Please enter a valid phone number (e.g., 416-111-1111).

About

Cross Streets: Broadway & Lakeside. ** Directions: Lakeshore & Broadway. Live the lakeside resort lifestyle all year round at one of Niagara Region's most desirable townhome enclaves. With your own private walkway to Jones Beach, surrounded by nature & hiking trails, green spaces and the Marina, Newport Quay is sure to impress with its manicured grounds, beach access and close proximity to Port Dalhousie & Niagara On The Lake! This multi-level townhome welcomes you with a new private interlock drive, new concrete steps and tiled front porch. Once inside you are greeted by an abundance of light and a relaxing "life-by-the lake" ambience! The bright dining area, with its beautiful Mediterranean inspired tiles and renovated half wall, overlooks the light filled living room with its gas fireplace, California shutters and large patio doors leading to the updated deck and fabulous views of the beautifully landscaped grounds. From the traditional and light filled kitchen, take in panoramic views of the lake across the street, complete with a suite of stainless steel appliances and custom island. On the upper level, enjoy the sunlight from the new skylight as you make your way to the spacious principle suite with 3 closets and updated ensuite bath with double vanities and large tiled walk-in shower. The generous second bedroom enjoys serene lake views, large windows and vaulted ceilings. The 4 piece main bath is light filled and fashionably updated, rounding out this stylish and put-together townhome! The garage entry into the main house brings you into the tastefully finished lower area, complete with large spacious laundry room, utility room, flex-space and additional bathroom. This is the perfect location for those looking to enjoy the best of all things quintessentially Niagara. A list of all the amazing upgrades can be found in the supplement portion of the listing. (id:27476)

Property Highlights

MLS® Number
X12390425
Type
Single Family
Community Name
436 - Port Weller
Maintenance Fee
770.00
Ownership Type
Condominium/Strata
Parking Space Total
3

Building

Building Type
Row / Townhouse
Storeys
3.00
Square Footage
1400 - 1599 sqft
Bathrooms Total
3
Bedrooms Above Ground
2
Bedrooms Total
2
Amenities
Fireplace(s) Beach, Marina
Exterior Finish
Aluminum siding, Brick
Fireplace Present
Yes
Basement Type
Full (Finished)
Basement Features
Building Heating Type
Forced air
Heating Fuel
Natural gas
Building Cooling Type
Central air conditioning

Location