3 - 88 Lakeport Road, St. Catharines, Ontario L2N 4P8

Listed for:
$929,000
2 beds
3 baths
Listed 159 days ago
Row / Townhouse for rent: 3 - 88 Lakeport Road, St. Catharines, Ontario L2N 4P8

View all 48 photos

About

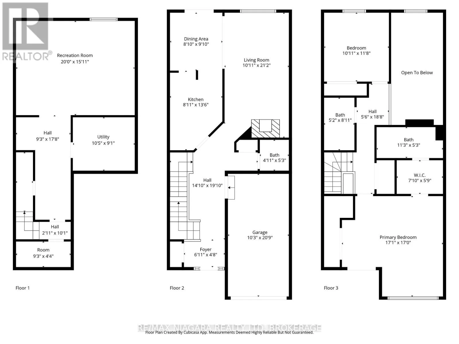
Cross Streets: Lakeshore and Lakeport. ** Directions: Lakeshore to Lakeport, North on Lakeport Road. This exceptional 2-bedroom, 3-bathroom townhouse offers almost 1700 square feet of sophisticated living space in the prestigious "On The Henley" enclave. The home showcases soaring ceilings in the living room, creating an impressive sense of openness and grandeur throughout the main level. Every detail reflects pristine condition and thoughtful maintenance, making this property truly move-in ready.The tranquil primary bedroom suite provides a peaceful retreat, while the fully finished basement adds valuable living space for recreation or home office needs. Step outside to the composite deck accessible through the dining room patio door, where you can enjoy partial views of Martindale Pond, the historic venue for the renowned Henley Regatta.This remarkable neighborhood location places you within walking distance of the beautiful lakefront beach and the famous carousel, offering endless recreational opportunities. Take leisurely strolls along the pier while watching spectacular sunsets over Lake Ontario. The nearby Port Dalhousie Pier Marina provides additional waterfront attractions and activities.The Royal Canadian Henley Rowing Course sits just minutes away, making this an ideal location for rowing enthusiasts or those who appreciate world-class sporting venues. The area's proximity to acclaimed wineries and brewhouses positions residents perfectly to explore the region's celebrated culinary and beverage scene.This townhouse combines comfortable living with an unbeatable location, offering residents the perfect balance of tranquil waterfront living and convenient access to recreational amenities. The combination of quality construction, pristine condition, and exceptional neighborhood features makes this property an outstanding opportunity for discerning buyers seeking this incredible lifestyle living. (id:27476)

Property Highlights

MLS® Number
X12425061
Type
Single Family
Community Name
438 - Port Dalhousie
Maintenance Fee
916.00
Ownership Type
Condominium/Strata
Parking Space Total
2

Building

Building Type
Row / Townhouse
Storeys
2.00
Square Footage
1600 - 1799 sqft
Bathrooms Total
3
Bedrooms Above Ground
2
Bedrooms Total
2
Amenities
Beach, Marina
Exterior Finish
Aluminum siding
Fireplace Present
Yes
Basement Type
Full (Finished)
Basement Features
Building Heating Type
Forced air
Heating Fuel
Natural gas
Building Cooling Type
Central air conditioning

Location

Learn more about this property
Listing provided by:
RE/MAX NIAGARA REALTY LTD, BROKERAGE
MLS® number:
X12425061
Agent:
Angela Mcmillan
*Indicates required field
Name is required
Email is required
Please enter a valid phone number (e.g., 416-111-1111).