18 Cosby Avenue, St. Catharines, Ontario L2M 5R4

Listed for:
$350,000
2 beds
1 baths
Listed Today
House for rent: 18 Cosby Avenue, St. Catharines, Ontario L2M 5R4

View all 11 photos

Learn more about this property
Listing provided by:
ROYAL LEPAGE NRC REALTY
MLS® number:
X12523376
Agent:
Michelle Atherton
*Indicates required field
Name is required
Email is required
Please enter a valid phone number (e.g., 416-111-1111).

About

Cross Streets: Dieppe Rd. ** Directions: Welland to Dieppe to Cosby or Facer to Cosby. (Realtors - please see Realtor remarks) Priced to sell! Why rent when you can own? Excellent opportunity for first-time buyers or those looking to build equity with some updates. This charming 2-bedroom bungalow offers a versatile loft , perfect for additional living space or storage. Enjoy a fully fenced backyard complete with one storage shed. Great value, strong potential, and an affordable price-ready for your personal touch! (Photos were taken prior to the tenants moving in) (id:27476)

Property Highlights

MLS® Number
X12523376
Type
Single Family
Community Name
445 - Facer
Ownership Type
Freehold
Land Size
40 x 95 FT
Parking Space Total
2

Building

Building Type
House
Storeys
1.00
Square Footage
700 - 1100 sqft
Bathrooms Total
1
Bedrooms Above Ground
2
Bedrooms Total
2
Exterior Finish
Vinyl siding
Fireplace Present
No
Basement Type
Crawl space
Basement Features
Building Heating Type
Forced air
Heating Fuel
Natural gas
Building Cooling Type
None

Utilities

Water
Municipal water
Utility Sewer
Sanitary sewer

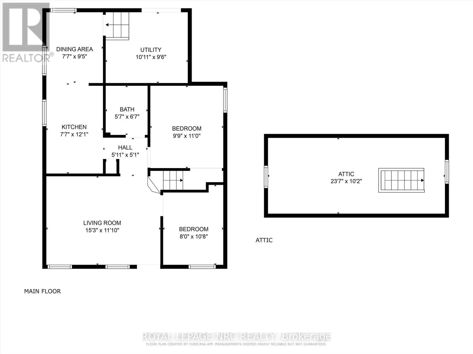
Room Layout

Living room
Main level
4.66 m x 3.38 m
Bedroom
Main level
2.44 m x 3.29 m
Bedroom 2
Main level
3.02 m x 3.35 m
Bathroom
Main level
1.74 m x 2.04 m
Kitchen
Main level
2.35 m x 3.69 m
Dining room
Main level
2.35 m x 2.9 m
Loft
Upper Level
7.22 m x 3.11 m
Utility room
Ground level
3.08 m x 2.93 m

Location