601 - 49 Leaside Drive, St. Catharines, Ontario L2M 4G4

Listed for:
$1,995
3 beds
1 baths
Listed 1 day ago
Apartment for rent: 601 - 49 Leaside Drive, St. Catharines, Ontario L2M 4G4

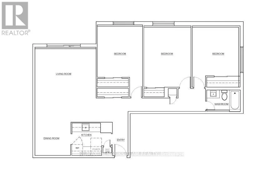
View all 26 photos

Learn more about this property
Listing provided by:
RE/MAX HENDRIKS TEAM REALTY
MLS® number:
X12525562
Agent:
Devyn Portugaise
*Indicates required field
Name is required
Email is required
Please enter a valid phone number (e.g., 416-111-1111).

About

Cross Streets: Carlton St to Bunting Rd. ** Directions: Bunting to Promenade which allows clients to drive straight into our complex on Leaside. St. Lawrence Village is a premium rental community comprised of low-rise and high-rise rental buildings located in the heart of St. Catharines. Packed with amenities there is something for everyone. From the seasonal indoor and outdoor pool, saunas and tennis court to the BBQ patio, community garden or residents event at the community centre. From the friendly on-site staff to the underground or above ground parking you'll find convenience and comfort in this community. This is a beautiful one-bedroom unit located on the 4th floor, overlooking Bermuda Park. this unit offers a great living space, functional, fresh, white kitchen, complete with a 4-piece bath and a good-sized bedroom with a closet. Whether you're looking for a nice walk on the canal, a meal or a quick shopping trip, this location is extremely convenient and close to all major amenities including schools, doctor's offices, public transportation and everything else you can think of. St. Lawrence Village offers it all! (id:27476)

Property Highlights

MLS® Number
X12525562
Type
Single Family
Community Name
444 - Carlton/Bunting
Ownership Type
Condominium/Strata
Parking Space Total
1

Building

Building Type
Apartment
Square Footage
1000 - 1199 sqft
Bathrooms Total
1
Bedrooms Above Ground
3
Bedrooms Total
3
Amenities
Separate Heating Controls
Exterior Finish
Concrete
Fireplace Present
No
Basement Type
None
Basement Features
Building Heating Type
Baseboard heaters, Not known
Heating Fuel
Natural gas, Other
Building Cooling Type
None

Location