1109 - 7 Gale Crescent, St. Catharines, Ontario L2R 7M8

Listed for:
$379,000
2 beds
2 baths
Listed 53 days ago
Apartment for rent: 1109 - 7 Gale Crescent, St. Catharines, Ontario L2R 7M8

View all 43 photos

Learn more about this property
Listing provided by:
ROYAL LEPAGE NRC REALTY
MLS® number:
X12544178
Agent:
Eva Miller
*Indicates required field
Name is required
Email is required
Please enter a valid phone number (e.g., 416-111-1111).

About

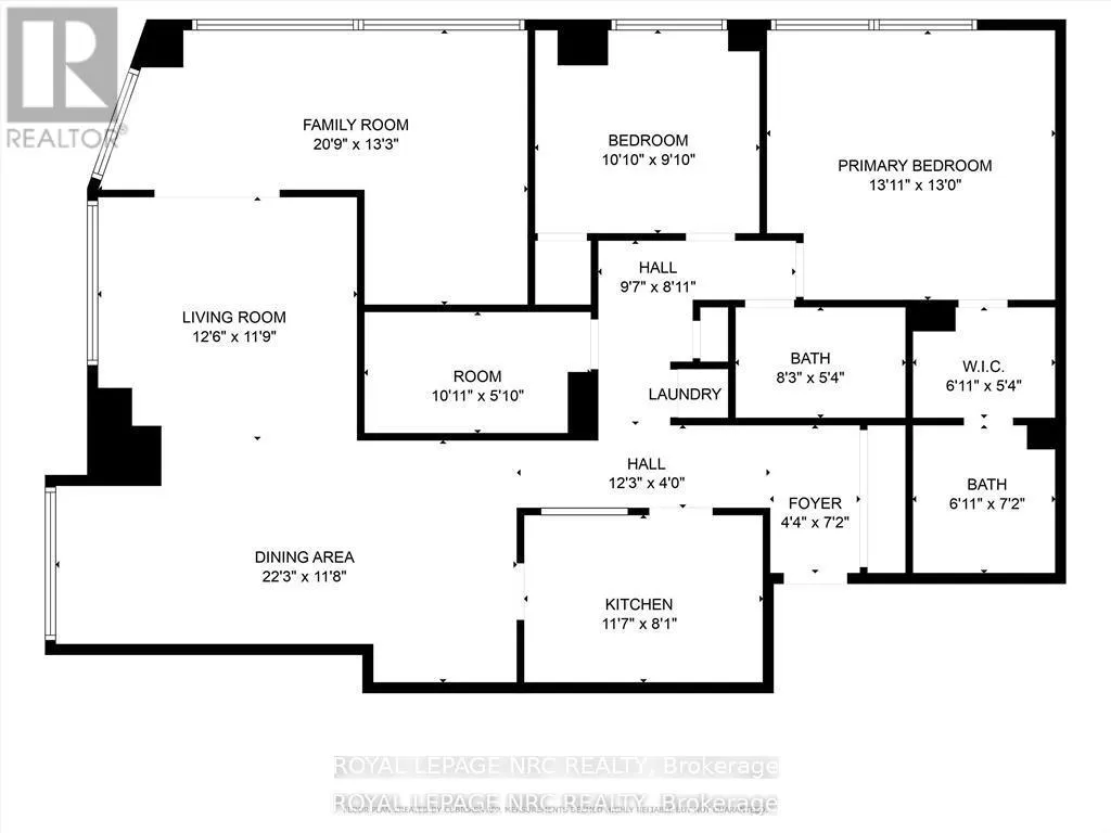
Cross Streets: Geneva. ** Directions: Geneva St/Hwy 406. Welcome to the Condo lifestyle at Mill Run ! Enjoy amazing 180 degree views from this large,1400 sq ft corner unit. Featuring a kitchen (redone in 2010) with mostly new stainless steel appliances. Furnace and air 2025 Presently used as a two bedroom with family room (which could be a third bedroom) master bedroom with walk through closet and 4 piece ensuite bathroom, 2nd bathroom, in-suite laundry, and exclusive 3 deeded underground parking spots of which are currently rented out on month to month willing to stay if needed. Move in ready. This building has many desirable amenities including a heated indoor pool, 2 elevators, secure entry, visitor parking, car wash, a billiards room, a fully equipped workshop, games room, exercise room, his & her saunas & change rooms, party room plus a top floor observatory with amazing views to the Lake and to the Escarpment. The condo fees include all these amenities plus heat, hydro, water, internet, basic cable. Centrally located just off the 406 and walking distance to downtown (id:27476)

Property Highlights

MLS® Number
X12544178
Type
Single Family
Community Name
450 - E. Chester
Maintenance Fee
1386.00
Ownership Type
Condominium/Strata
Parking Space Total
3

Building

Building Type
Apartment
Square Footage
1400 - 1599 sqft
Bathrooms Total
2
Bedrooms Above Ground
2
Bedrooms Total
2
Amenities
Car Wash, Exercise Centre, Party Room, Sauna, Visitor Parking, Storage - Locker Golf Nearby, Public Transit
Exterior Finish
Stucco, Concrete
Fireplace Present
No
Basement Type
None
Basement Features
Building Heating Type
Forced air
Heating Fuel
Other
Building Cooling Type
Central air conditioning

Location