5 Chetwood Street, St. Catharines, Ontario L2S 1J9

Listed for:
$349,900
4 beds
2 baths
Listed 43 days ago
House for rent: 5 Chetwood Street, St. Catharines, Ontario L2S 1J9

View all 32 photos

Learn more about this property
Listing provided by:
ROYAL LEPAGE NRC REALTY
MLS® number:
X12574258
Agent:
Adrian Panchyshyn
*Indicates required field
Name is required
Email is required
Please enter a valid phone number (e.g., 416-111-1111).

About

Cross Streets: Pelham and Chetwood. ** Directions: Pelham Rd to Chetwood. Welcome to 5 Chetwood Street, a home full of potential in a great St. Catharines neighbourhood! Steps to the GO station, close to public transit, minutes away from Brock University, Ridley College, Rotary Park, Sports Centres, and all major amenities!! This property offers 4 bedrooms, 1 Full Bathroom and an additional 1 pc bathroom on the main level. A solid layout ready for your personal renovation touches to truly make it your own. Situated on a good sized lot, the home provides plenty of outdoor space and flexibility for future plans. Featuring bathroom rough-ins on both the main floor and in the unfinished basement, there's excellent opportunity to add value and create additional living space. Whether you're an investor, first-time buyer, or renovator looking for your next project, this home is a fantastic canvas with endless possibilities. (id:27476)

Property Highlights

MLS® Number
X12574258
Type
Single Family
Community Name
458 - Western Hill
Ownership Type
Freehold
Land Size
50 x 105 FT
Parking Space Total
3

Building

Building Type
House
Storeys
1.50
Square Footage
1500 - 2000 sqft
Bathrooms Total
2
Bedrooms Above Ground
4
Bedrooms Total
4
Exterior Finish
Aluminum siding, Wood
Fireplace Present
Yes
Basement Type
N/A (Unfinished)
Basement Features
Building Heating Type
Radiant heat
Heating Fuel
Natural gas
Building Cooling Type
None

Utilities

Water
Municipal water
Utility Sewer
Sanitary sewer

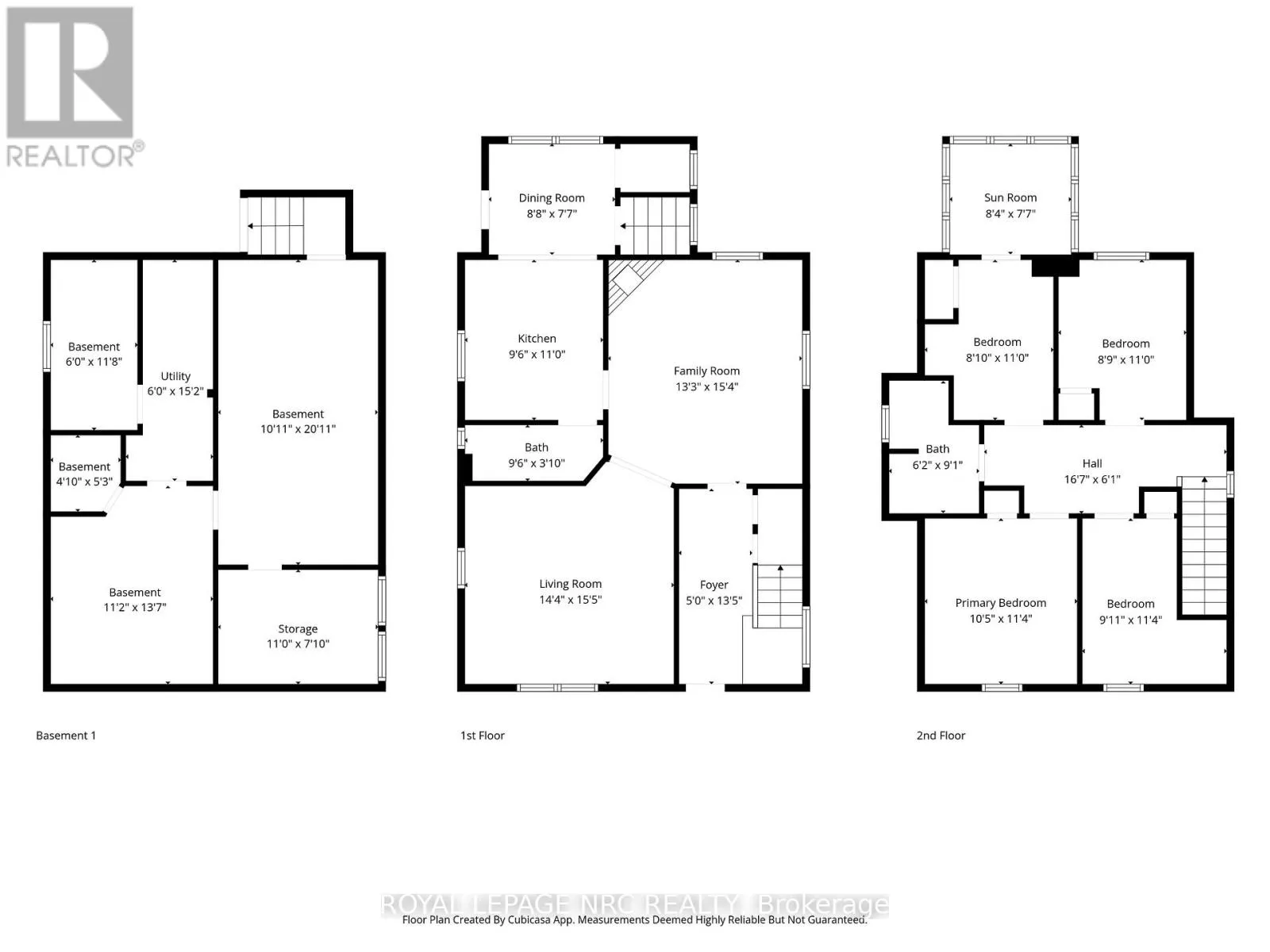
Room Layout

Sunroom
Second level
2.54 m x 2.31 m
Bathroom
Second level
2.77 m x 1.88 m
Primary Bedroom
Second level
3.45 m x 3.17 m
Bedroom 2
Second level
3.02 m x 3.45 m
Bedroom 3
Second level
3.35 m x 2.67 m
Bedroom 4
Second level
3.35 m x 2.69 m
Utility room
Basement
4.62 m x 1.83 m
Other
Basement
3.35 m x 2.13 m
Recreational, Games room
Basement
6.38 m x 3.33 m
Other
Basement
4.14 m x 3.4 m
Other
Basement
3.56 m x 1.83 m
Other
Basement
1.6 m x 1.47 m
Foyer
Main level
3.35 m x 2.67 m
Living room
Main level
4.7 m x 4.37 m
Family room
Main level
4.67 m x 4.04 m
Kitchen
Main level
3.35 m x 2.9 m
Dining room
Main level
2.64 m x 2.31 m
Bathroom
Main level
2.9 m x 1.17 m

Location