101 - 55 Main Street, St. Catharines, Ontario L2N 4T8

Listed for:
$724,900
2 beds
2 baths
Listed 19 days ago
Apartment for rent: 101 - 55 Main Street, St. Catharines, Ontario L2N 4T8

View all 29 photos

About

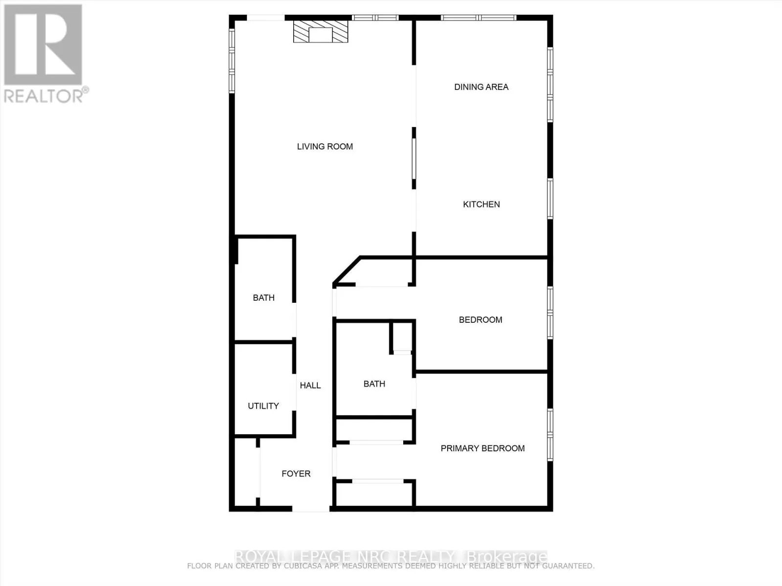
Cross Streets: Main Street and Brock Street. ** Directions: Located on the south side of Main Street between Brock Street and Ann Street. Beautiful condo in the heart of Port Dalhousie! This main floor unit in a boutique three-story building with just nine units offers privacy, convenience, and stunning views of Martindale Pond and the Royal Canadian Henley rowing course. Featuring hardwood floors, a bright open concept living and dining area with a gas fireplace, and a modern kitchen with quartz countertops, white cabinetry, and a breakfast bar. Step outside to a large wrap-around private patio perfect for relaxing and entertaining. The spacious master bedroom includes double closets and a renovated 4-piece ensuite with in-floor heating. A second bedroom and updated 3-piece bathroom complete the home. Additional perks include in-suite laundry and a basement storage unit. Enjoy building amenities such as an exercise room, sauna, and party room. Parking includes one designated spot with visitor parking and the option to rent a second spot. Walk to downtown Port Dalhousie, Lakeside Park, shops, restaurants, and the marina. Experience waterfront living at its best! (id:27476)

Property Highlights

MLS® Number
X12733114
Type
Single Family
Community Name
438 - Port Dalhousie
Maintenance Fee
515.00
Ownership Type
Condominium/Strata
Parking Space Total
1

Building

Building Type
Apartment
Storeys
3.00
Square Footage
1200 - 1399 sqft
Bathrooms Total
2
Bedrooms Above Ground
2
Bedrooms Total
2
Amenities
Party Room, Recreation Centre, Sauna, Fireplace(s), Storage - Locker Beach, Marina, Place of Worship, Schools
Exterior Finish
Brick, Stone
Fireplace Present
Yes
Basement Type
None
Basement Features
Building Heating Type
Forced air
Heating Fuel
Natural gas
Building Cooling Type
Central air conditioning

Location

Learn more about this property
Listing provided by:
ROYAL LEPAGE NRC REALTY
MLS® number:
X12733114
Agent:
Ben Ellens
*Indicates required field
Name is required
Email is required
Please enter a valid phone number (e.g., 416-111-1111).